Рассылка
    Подходящие проекты: 0
    Дом в неринах вер.2
    36 890 UAH

    Проект дома ARCHON+ Дом в неринах вер.2 Вид 1

    - 3500 UAH
    Проект дома ARCHON+ Дом в неринах вер.2 Вид 1 1/21
    Цена проекта:
    33 390 UAH 36 890 UAH
    Проект доступен сразу
    ДО КОНЦА АКЦИИ ОСТАЛОСЬ ЕЩЁ

    Что входит в состав проекта?


    односемейный коттедж одноэтажный
    гараж, 4 комнат, 1 кухня, 1 ванная, кладовая, 1 туалет, 1 котельная, гардеробная


    Полезная
    площадь
    83.23 м2
    Общая
    площадь
    141 м2
    комнат
    4
    кухня
    1
    туалет
    1
    ванная
    1
    гараж
    1

    Внимание! Только оригинальный проект, купленный в компании «Архон Украина» и официальных дилеров, дает Вам гарантию качества и четкое руководство по строительству дома. Также Вы получаете возможность бесплатно консультироваться у наших специалистов на любом этапе строительства. Убедитесь в оригинальности проекта!

    план первого этажа
    Подобрать к своему участку
    Первый этаж 106.99
    1. Тамбур 3.13
    2. Холл 2.10
    3. Кухня 10.13
    4. Кладовая 1.26
    5. Гостиная 24.53
    6. Коридор 4.84
    7. Туалет 1.52
    8. Комната 8.76
    9. Гардероб 3.28
    10. Ванная 5.19
    11. Комната 8.78
    12. Комната 9.71
    13. Котельная 5.86
    14. Гараж 17.90
    Поверхности
    Полезная площадь 83.23 м2
    Поверхность котельной 5.86 м2
    Площадь гаража 17.9 м2
    Площадь строительства 142.88 м2
    Площадь пола 106.99 м2
    Общая площадь 141.0 м2
    Кубатура 720.63 м3
    Высота здания 6.29 м
    Технология и конструкция
    Стены пористый бетон 24 см, пенопласт 20 см, штукатурка.
    Конструкция наружных и внутренних стен может быть выполнена из любого материала (керамических или газобетонных блоков), с техническими параметрами не ниже тех, что указаны в проектных решениях. Изменение материалов должно быть согласовано с архитектором по адаптации.
    Перекрытие Монолитное железобетонное (отливается по месту)
    Крыша 2-скатная, Скат 30° , Стропильная система деревянная, кровля из керамической черепицы
    Котёл на твердом топливе + как вариант, газовый
    Тёплый пол используется во всех жилых помещениях
    Вентиляция гравитационная
    Фасад Дом в неринах вер.2
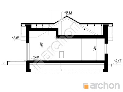
    Разрез
    Проект дома ARCHON+ Дом в неринах вер.2 Розріз будинку
    Контур здания
    Проект дома ARCHON+ Дом в неринах вер.2 Ситуація

    Современный и экономичный проект дома с четким и функциональным разделением на жилую и приватную зоны. Благодаря большим застекленным фасадам и оригинальным архитектурным деталям корпус дома приобретает привлекательный характер. Жилая зона занимает центральную часть дома. Это просторная и прекрасно освещенная гостиная с выходом на террасу. Есть зона отдыха с домашним кинотеатром, семейным столом и камином. Практичная барная стойка соединяет гостиную с кухней, программу которой дополняет удобная кладовая. Приватная зона членов семьи, доступная из отдельного коридора, состоит из трех светлых спален, ванной комнаты и туалета. В спальне родителей есть своя гардеробная. Хозяйственная часть представляет собой гараж и расположенную за ним котельную на твердом топливе, имеющую отдельный выход наружу. В проекте предусмотрено альтернативное решение котельной на газе.

    Реализации проекта Дом в неринах вер.2
    Похожие проекты:

    Подпишитесь на рассылку АРХОН Украина

    Подписаться на рассылку!
    Чат c консультантом