Рассылка
    Подходящие проекты: 0
    Вилла Миранда 5 (Г2)
    46 020 UAH

    Проект дома ARCHON+ Вилла Миранда 5 (Г2) Вид 1

    - 4500 UAH
    Проект дома ARCHON+ Вилла Миранда 5 (Г2) Вид 1 1/27
    Цена проекта:
    41 520 UAH 46 020 UAH
    Проект доступен сразу
    ДО КОНЦА АКЦИИ ОСТАЛОСЬ ЕЩЁ

    Что входит в состав проекта?


    односемейный коттедж одноэтажный с жилой мансардой
    гараж, 5 комнат, 1 кухня, 2 ванных, кладовая, 1 туалет, 1 котельная, прачечная, гардеробная


    Полезная
    площадь
    142.72 м2
    Общая
    площадь
    251.16 м2
    комнат
    5
    кухня
    1
    туалет
    1
    ванных
    2
    гараж
    2

    Внимание! Только оригинальный проект, купленный в компании «Архон Украина» и официальных дилеров, дает Вам гарантию качества и четкое руководство по строительству дома. Также Вы получаете возможность бесплатно консультироваться у наших специалистов на любом этапе строительства. Убедитесь в оригинальности проекта!

    план первого этажа
    Подобрать к своему участку
    Первый этаж 108.55 (110.79)
    1. Тамбур 4.28
    2. Туалет 1.87
    3. Холл 3.97
    4. Кладовая 1.87
    5. Кухня 10.58
    6. Гостиная + столовая 45.79 (48.03)
    7. Котельная 5.27
    8. Гараж 34.92
    план мансарды
    Мансарда 74.36 (81.39)
    1. Лестница 3.63
    2. Коридор 12.48 (12.67)
    3. Ванная 4.26 (5.63)
    4. Комната 10.49 (10.57)
    5. Прачечная 5.25 (5.68)
    6. Ванная 4.86 (5.31)
    7. Гардероб 4.68 (5.42)
    8. Комната 9.96 (11.44)
    9. Комната 9.53 (10.75)
    10. Комната 9.22 (10.29)
    Поверхности
    Полезная площадь 142.72 м2
    Поверхность котельной 5.27 м2
    Площадь гаража 34.92 м2
    Площадь строительства 142.31 м2
    Площадь пола 192.18 м2
    Общая площадь 251.16 м2
    Кубатура 823.33 м3
    Высота здания 7.66 м
    Технология и конструкция
    Стены пустотелый керамический блок 25 см, пенопласт 20 см, штукатурка.
    Конструкция наружных и внутренних стен может быть выполнена из любого материала (керамических или газобетонных блоков), с техническими параметрами не ниже тех, что указаны в проектных решениях. Изменение материалов должно быть согласовано с архитектором по адаптации.
    Перекрытие Монолитное железобетонное (отливается по месту)
    Коленная стенка 180 см
    Крыша 4-скатная, Скат 30° , Стропильная система деревянная, кровля из керамической черепицы
    Котёл газовый, возможность замены котлом на твердом топливе после адаптации
    Тёплый пол используется во всех жилых помещениях
    Вентиляция гравитационная
    Фасад Вилла Миранда 5 (Г2)
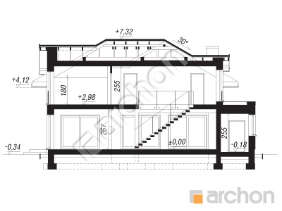
    Разрез
    Проект дома ARCHON+ Вилла Миранда 5 (Г2) Розріз будинку
    Контур здания
    Проект дома ARCHON+ Вилла Миранда 5 (Г2) Ситуація

    Комфортабельный дом с мансардой выполнен в виде современной виллы с шатровой крышей. Благодаря мансардным окнам и высокой коленной стенке чердак очень просторный, а широкие портфенетры обеспечивают отличное освещение. Впечатляющая композиция фасада подчеркивает современный характер дома, использовалась легкая штукатурка в сочетании с деревянной облицовкой, которая добавляетатмосферу и прекрасно сочетает дом с садом. Современная рустикация на фасаде мансарды тоже очень интересна. Гараж, предусмотренный в дизайне дома, был аккуратно вытянут перед главной линией здания и увенчан плоской крышей, продолжение которой также образует крышу над входной зоной. Со стороны сада вилла впечатляет обустроенной террасой, частично покрытой современной беседкой. Терраса была легко соединена с дневной зоной дома, и в столовой, и в гостиной установлены широкие раздвижные стекла. Это удобное и презентабельное пространство, способствующее семейному отдыху и встречам с друзьями. Кухня оборудована высокими шкафами, удобными рабочими поверхностями, барной стойкой и удобной кладовой. Программа первого этажа дополняется туалетом, доступным из зала, а через прихожую и гараж доступна газовая котельная с отдельным входом со стороны сада. В ночной зоне для родителей была спроектирована квартира с ванной комнатой и гардеробом, а также три очень удобных комнаты, а также ванная комната и прачечная. Представленная «Вилла Миранда 5 (Г2)» относится к коллекции: проекты домов с мансардой, проекты современных домов, проекты домов с гаражом на две машины.

    Реализации проекта Вилла Миранда 5 (Г2)
    Похожие проекты:

    Подпишитесь на рассылку АРХОН Украина

    Подписаться на рассылку!
    Чат c консультантом