Рассылка
    Подходящие проекты: 0
    Дом в фиалках 6 (Р2БЕ) вер.3
    56 470 UAH

    Проект дома ARCHON+ Дом в фиалках 6 (Р2БЕ) вер.3 Вид 1

    - 3500 UAH
    Проект дома ARCHON+ Дом в фиалках 6 (Р2БЕ) вер.3 Вид 1 1/14
    Цена проекта:
    52 970 UAH 56 470 UAH
    Проект доступен на заказ
    ДО КОНЦА АКЦИИ ОСТАЛОСЬ ЕЩЁ

    Что входит в состав проекта?


    двухсемейный коттедж для сблокированной застройки двухэтажный
    6 комнат, 2 кухни, 2 ванных


    Полезная
    площадь
    118.62 м2
    Общая
    площадь
    161.07 м2
    комнат
    6
    кухни
    2
    туалет
    0
    ванных
    2

    Внимание! Только оригинальный проект, купленный в компании «Архон Украина» и официальных дилеров, дает Вам гарантию качества и четкое руководство по строительству дома. Также Вы получаете возможность бесплатно консультироваться у наших специалистов на любом этапе строительства. Убедитесь в оригинальности проекта!

    план первого этажа
    Подобрать к своему участку
    Первый этаж 53.89
    1. Тамбур 2.91
    2. Холл 4.73
    3. Ванная 4.37
    4. Комната 8.20
    5. Гостиная 15.63
    6. Кухня 6.19
    7. Комната 11.86
    план второго этажа
    Второй этаж 64.73 (67.16)
    1. Тамбур 5.96 (8.39)
    2. Холл 7.97
    3. Ванная 4.37
    4. Комната 8.20
    5. Гостиная 15.63
    6. Кухня 6.19
    7. Комната 12.06
    8. Лестница 4.35
    Поверхности
    Полезная площадь 118.62 м2
    Площадь строительства 81.6 м2
    Площадь пола 121.05 м2
    Общая площадь 161.07 м2
    Кубатура 601.23 м3
    Высота здания 7.2 м
    Технология и конструкция
    Стены пустотелый керамический блок 25 см, пенопласт 20 см, штукатурка.
    Конструкция наружных и внутренних стен может быть выполнена из любого материала (керамических или газобетонных блоков), с техническими параметрами не ниже тех, что указаны в проектных решениях. Изменение материалов должно быть согласовано с архитектором по адаптации.
    Перекрытие Монолитное железобетонное (отливается по месту)
    Крыша плоская, еврорубероид
    Котёл газовый
    Тёплый пол используется во всех жилых помещениях
    Вентиляция механическая
    Фасад Дом в фиалках 6 (Р2БЕ) вер.3
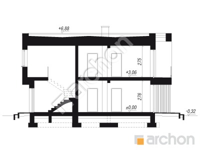
    Разрез
    Проект дома ARCHON+ Дом в фиалках 6 (Р2БЕ) вер.3 Розріз будинку
    Контур здания
    Проект дома ARCHON+ Дом в фиалках 6 (Р2БЕ) вер.3 Ситуація
    Похожие проекты:

    Подпишитесь на рассылку АРХОН Украина

    Подписаться на рассылку!
    Чат c консультантом