Рассылка
    Подходящие проекты: 0
    Дом в сливах 2
    43 030 UAH

    Проект дома ARCHON+ Дом в сливах 2 Вид 1

    - 4500 UAH
    Проект дома ARCHON+ Дом в сливах 2 Вид 1 1/22
    Цена проекта:
    38 530 UAH 43 030 UAH
    Проект доступен сразу
    ДО КОНЦА АКЦИИ ОСТАЛОСЬ ЕЩЁ

    Что входит в состав проекта?


    односемейный коттедж одноэтажный с жилой мансардой
    5 комнат, 1 кухня, 2 ванных, кладовая, 1 котельная, гардеробная


    Полезная
    площадь
    147.94 м2
    Общая
    площадь
    236.88 м2
    комнат
    5
    кухня
    1
    туалет
    0
    ванных
    2

    Внимание! Только оригинальный проект, купленный в компании «Архон Украина» и официальных дилеров, дает Вам гарантию качества и четкое руководство по строительству дома. Также Вы получаете возможность бесплатно консультироваться у наших специалистов на любом этапе строительства. Убедитесь в оригинальности проекта!

    план первого этажа
    Подобрать к своему участку
    Первый этаж 80.55 (84.94)
    1. Тамбур 4.34
    2. Кладовая 1.71
    3. Кухня 11.02
    4. Гостиная + столовая 38.84
    5. Кабинет 11.00
    6. Котельная с прачечной 8.52 (12.91)
    7. Ванная 5.12
    план мансарды
    Мансарда 75.91 (93.78)
    1. Лестница 5.95
    2. Коридор 8.32
    3. Ванная 7.52 (12.04)
    4. Комната 12.83 (14.29)
    5. Гардероб 2.77 (5.52)
    6. Комната 11.80 (12.18)
    7. Гардероб 4.60 (8.25)
    8. Комната 15.95 (17.00)
    9. Гардероб 6.17 (10.23)
    Поверхности
    Полезная площадь 147.94 м2
    Поверхность котельной 8.52 м2
    Площадь строительства 123.41 м2
    Площадь пола 178.72 м2
    Общая площадь 236.88 м2
    Кубатура 809.73 м3
    Высота здания 8.77 м
    Технология и конструкция
    Стены пустотелый керамический блок 25 см, пенопласт 20 см, штукатурка.
    Конструкция наружных и внутренних стен может быть выполнена из любого материала (керамических или газобетонных блоков), с техническими параметрами не ниже тех, что указаны в проектных решениях. Изменение материалов должно быть согласовано с архитектором по адаптации.
    Перекрытие Монолитное железобетонное (отливается по месту)
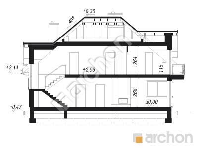
    Коленная стенка 115 см
    Крыша 4-скатная, Скат 40° , Стропильная система деревянная, кровля из керамической черепицы
    Котёл газовый
    Тёплый пол используется в следующих помещениях: Первый этаж: Тамбур (1), Кухня (3), Гостиная + столовая (4), Ванная (7); Мансарда: Ванная (3)
    Вентиляция гравитационная
    Фасад Дом в сливах 2
    Разрез
    Проект дома ARCHON+ Дом в сливах 2 Розріз будинку
    Контур здания
    Проект дома ARCHON+ Дом в сливах 2 Ситуація

    На этот раз мы представляем вам проект из популярной коллекции «Дом в сливах» в версии без гаража. Представительный вид подчеркивает французское окно, спроектированным в передней зоне, в тени которого находится главный вход. На фоне легкой штукатурки красиво смотрится деревянная облицовка, которая привносит естественный акцент и подчеркивает современный характер дома. Привлекательная терраса частично вписывается в арку, поэтому жители могут наслаждаться отдыхом на свежем воздухе в любую погоду. Интерьер был разработан для максимального комфорта в домашнем хозяйстве. Дневная зона с одним пространством сочетает в себе гостиную, впечатляющую застекленную столовую и очень функциональную кухню с барной стойкой и кладовой. Гостиная и столовая имеют прямой выход на террасу. Во второй части первого этажа находится гостиная, которая также может быть кабинетом или домашней библиотекой. Рядом с лестницей находится котельная, в ней можно организовать практичную прачечную. В ванной комнате на первом этаже установлен современный душ, и она хорошо освещена естественным светом. В частной зоне дома на мансарде жители имеют в своем распоряжении три хорошо освещенные спальни, их пространство расширяется слуховыми окнами. Две комнаты, среди которых главная спальня, имеют гардеробные и выходы на балконы. Дополнительное пространство для гардероба гарантирует больше места для хранения. Функциональная планировка мансарды также включает в себя удобную, светлую ванную комнату. Представленный проект «Дом в сливах 2» относится к категории: современные проекты домов, проекты домов с мансардой.

    Реализации проекта Дом в сливах 2
    Похожие проекты:

    Подпишитесь на рассылку АРХОН Украина

    Подписаться на рассылку!
    Чат c консультантом