Рассылка
    Подходящие проекты: 0
    Дом под софорой
    46 020 UAH

    Проект дома ARCHON+ Дом под софорой Вид 1

    - 3500 UAH
    Проект дома ARCHON+ Дом под софорой Вид 1 1/23
    Цена проекта:
    42 520 UAH 46 020 UAH
    Проект доступен сразу
    ДО КОНЦА АКЦИИ ОСТАЛОСЬ ЕЩЁ

    Что входит в состав проекта?


    односемейный коттедж одноэтажный с жилой мансардой
    5 комнат, 1 кухня, 2 ванных, кладовая, столовая, 1 котельная, прачечная, гардеробная, антресоль


    Полезная
    площадь
    173.75 м2
    Общая
    площадь
    274.22 м2
    комнат
    5
    кухня
    1
    туалет
    0
    ванных
    2

    Внимание! Только оригинальный проект, купленный в компании «Архон Украина» и официальных дилеров, дает Вам гарантию качества и четкое руководство по строительству дома. Также Вы получаете возможность бесплатно консультироваться у наших специалистов на любом этапе строительства. Убедитесь в оригинальности проекта!

    план первого этажа
    Подобрать к своему участку
    Первый этаж 95.86 (98.25)
    1. Тамбур 7.71
    2. Котельная 9.63
    3. Прихожая 1.80 (2.40)
    4. Ванная 5.43
    5. Комната 10.86
    6. Гостиная 31.03 (32.82)
    7. Столовая 15.22
    8. Кухня 11.36
    9. Кладовая 2.82
    план мансарды
    Мансарда 87.52 (97.81)
    1. Лестница 5.16
    2. Антресоль 18.37
    3. Комната 13.41 (15.88)
    4. Комната 13.77 (16.23)
    5. Комната 16.44 (16.94)
    6. Гардероб 8.01 (10.48)
    7. Ванная 7.64
    8. Прачечная 4.72 (7.11)
    Поверхности
    Полезная площадь 173.75 м2
    Поверхность котельной 9.63 м2
    Площадь строительства 143.26 м2
    Площадь пола 196.06 м2
    Общая площадь 274.22 м2
    Кубатура 989.47 м3
    Высота здания 8.66 м
    Технология и конструкция
    Стены пустотелый керамический блок 25 см, пенопласт 20 см, штукатурка.
    Конструкция наружных и внутренних стен может быть выполнена из любого материала (керамических или газобетонных блоков), с техническими параметрами не ниже тех, что указаны в проектных решениях. Изменение материалов должно быть согласовано с архитектором по адаптации.
    Перекрытие Монолитное железобетонное (отливается по месту)
    Коленная стенка 130 см
    Крыша 2-скатная, Скат 38° , Стропильная система деревянная, кровля из керамической черепицы
    Котёл на твердом топливе + как вариант, газовый
    Тёплый пол используется в следующих помещениях: Первый этаж: Тамбур (1), Ванная (4), Гостиная (6), Столовая (7), Кухня (8); Мансарда: Гардероб (6), Ванная (7)
    Вентиляция гравитационная
    Фасад Дом под софорой
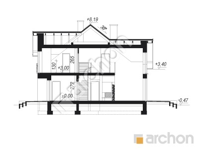
    Разрез
    Проект дома ARCHON+ Дом под софорой Розріз будинку
    Контур здания
    Проект дома ARCHON+ Дом под софорой Ситуація

    Проект дома с жилой мансардой, из коллекции проектов современных домов. Это интересное предложение для инвесторов, которые ищут дома с большим и оригинально оформленным внутренним пространством. Характер здания подчеркивается элегантной композицией фасада, представляющей собой сочетание светлой штукатурки и натуральной облицовки. Отделка деревом была подобрана в соответствии с цветовой гаммой крыши, которая покрыта современной плоской черепицей. Широкий и практически крытый вход ведет через просторный вестибюль в открытую жилую зону. Он выглядит исключительно привлекательно благодаря открытию части гостиной на высоту двух этажей. Здесь размещается удобный мягкий уголок, который обеспечит домочадцам приятный отдых перед домашним кинотеатром и камином. В представительной столовой можно накрыть большой семейный стол, здесь также есть место для хранения посуды. Совместные трапезы сопровождаются видом на сад, который проникает в интерьер дома. Частично крытая терраса, доступная из гостиной и столовой, позволит жителям дома отдыхать на свежем воздухе в любую погоду. Привлекательно оформленная кухня соединена со столовой барной стойкой. Ванная комната находится на первом этаже рядом с дополнительной комнатой, что создает комфортные условия для ночевки гостей. Из вестибюля можно попасть в большую котельную с отдельным выходом наружу. Интересным дизайнерским решением, придающим интерьеру уникальный, просторный характер, является мезонин. Здесь организовано место для домашней библиотеки. Ночная зона состоит из трех светлых и обустроенных комнат, рядом со спальней родителей спроектирован просторный гардероб. В детских комнатах есть выход на общий балкон. В комфортабельной ванной комнате достаточно места для душа, ванны и двух умывальников. Хозяйственная программа мансарды дополнена прачечной. Представленный проект - это сочетание современных тенденций и удобных функциональных решений.

    Реализации проекта Дом под софорой
    Похожие проекты:

    Подпишитесь на рассылку АРХОН Украина

    Подписаться на рассылку!
    Чат c консультантом