Рассылка
    Подходящие проекты: 0
    Дом в амариллисах 3 вер.2
    39 480 UAH

    Проект дома ARCHON+ Дом в амариллисах 3 вер.2 Вид 1

    - 3500 UAH
    Проект дома ARCHON+ Дом в амариллисах 3 вер.2 Вид 1 1/15
    Цена проекта:
    35 980 UAH 39 480 UAH
    Проект доступен на заказ
    ДО КОНЦА АКЦИИ ОСТАЛОСЬ ЕЩЁ

    Что входит в состав проекта?


    односемейный коттедж одноэтажный с жилой мансардой
    гараж, 5 комнат, 1 кухня, 2 ванных, 1 котельная, гардеробная


    Полезная
    площадь
    111.39 м2
    Общая
    площадь
    200.71 м2
    комнат
    5
    кухня
    1
    туалет
    0
    ванных
    2
    гараж
    1

    Внимание! Только оригинальный проект, купленный в компании «Архон Украина» и официальных дилеров, дает Вам гарантию качества и четкое руководство по строительству дома. Также Вы получаете возможность бесплатно консультироваться у наших специалистов на любом этапе строительства. Убедитесь в оригинальности проекта!

    план первого этажа
    Подобрать к своему участку
    Первый этаж 80.57 (83.12)
    1. Тамбур 5.27
    2. Холл 3.06
    3. Кухня и столовая 15.95
    4. Гостиная 21.86 (24.41)
    5. Комната 8.71
    6. Ванная 2.73
    7. Котельная с прачечной 4.15
    8. Гараж 18.84
    план мансарды
    Мансарда 53.81 (66.58)
    1. Холл и лестница 9.59 (9.98)
    2. Комната 12.14 (14.78)
    3. Комната 12.37 (15.51)
    4. Комната 9.99 (13.13)
    5. Гардероб 3.92 (5.32)
    6. Ванная 5.80 (7.86)
    Поверхности
    Полезная площадь 111.39 м2
    Поверхность котельной 4.15 м2
    Площадь гаража 18.84 м2
    Площадь строительства 113.72 м2
    Площадь пола 149.7 м2
    Общая площадь 200.71 м2
    Кубатура 701.3 м3
    Высота здания 8.3 м
    Технология и конструкция
    Стены пустотелый керамический блок 25 см, пенопласт 20 см, штукатурка.
    Конструкция наружных и внутренних стен может быть выполнена из любого материала (керамических или газобетонных блоков), с техническими параметрами не ниже тех, что указаны в проектных решениях. Изменение материалов должно быть согласовано с архитектором по адаптации.
    Перекрытие Монолитное железобетонное (отливается по месту)
    Коленная стенка 102 см
    Крыша 2-скатная, Скат 42° , Стропильная система деревянная, кровля из жести
    Котёл газовый
    Тёплый пол используется в следующих помещениях: Первый этаж: Тамбур (1), Кухня и столовая (3); Мансарда: Ванная (6)
    Вентиляция гравитационная
    Фасад Дом в амариллисах 3 вер.2
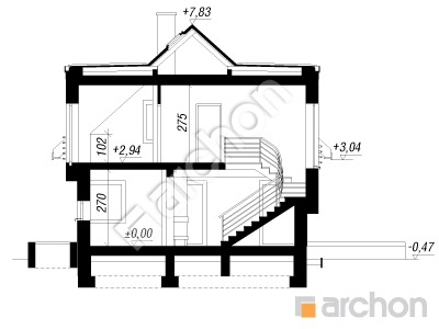
    Разрез
    Проект дома ARCHON+ Дом в амариллисах 3 вер.2 Розріз будинку
    Контур здания
    Проект дома ARCHON+ Дом в амариллисах 3 вер.2 Ситуація

    Привлекательный дом в современном стиле с гаражом. Дневная зона вокруг центрального камина включает в себя гостиную, столовую и кухню, открытую для столовой. Благодаря хорошему освещению в виде угловых окон гостиная приобретает просторность и выглядит чрезвычайно привлекательно. Из холла доступна ванная с душем и дополнительная комната. В зависимости от ваших потребностей, комната может использоваться как кабинет или комната для гостей. Лестница из гостиной ведет на мансарду. Там есть две детские комнаты, большая супружеская спальня - оборудована гардеробной и ванной комнатой с ванной и душем. Комнаты на мансарде удобные и светлые, с дополнительными функциями для отдыха (особенно в хорошую погоду): широкий балкон, доступный из детской комнаты, и просторная терраса рядом с главной спальней родителей. Очень привлекательный дом с интерьером, созданным с мыслью о комфорте и удобстве его жителей. Благодаря остеклению поверхностей, умело подобранной облицовке стен и оригинальным архитектурным деталям, фасад здания приобретает привлекательный, современный характер.

    Реализации проекта Дом в амариллисах 3 вер.2
    Похожие проекты:

    Подпишитесь на рассылку АРХОН Украина

    Подписаться на рассылку!
    Чат c консультантом