Рассылка
    Подходящие проекты: 0
    Дом в табаско вep.2 вер.2
    48 860 UAH

    Проект дома ARCHON+ Дом в табаско вep.2 вер.2 Вид 1

    - 4500 UAH
    Проект дома ARCHON+ Дом в табаско вep.2 вер.2 Вид 1 1/12
    Цена проекта:
    44 360 UAH 48 860 UAH
    Проект доступен на заказ
    ДО КОНЦА АКЦИИ ОСТАЛОСЬ ЕЩЁ

    Что входит в состав проекта?


    односемейный коттедж одноэтажный с жилой мансардой
    гараж, 6 комнат, 1 кухня, 2 ванных, кладовая, 1 котельная, прачечная, гардеробная


    Полезная
    площадь
    195.18 м2
    Общая
    площадь
    303.44 м2
    комнат
    6
    кухня
    1
    туалет
    0
    ванных
    2
    гараж
    1

    Внимание! Только оригинальный проект, купленный в компании «Архон Украина» и официальных дилеров, дает Вам гарантию качества и четкое руководство по строительству дома. Также Вы получаете возможность бесплатно консультироваться у наших специалистов на любом этапе строительства. Убедитесь в оригинальности проекта!

    план первого этажа
    Подобрать к своему участку
    Первый этаж 113.27 (115.87)
    1. Тамбур 4.21
    2. Холл 9.26
    3. Кабинет 14.51
    4. Ванная 4.21
    5. Кухня 12.50
    6. Гостиная + столовая 38.37
    7. Кладовая 4.76 (7.36)
    8. Котельная 5.66
    9. Гараж 19.79
    план мансарды
    Мансарда 107.36 (120.03)
    1. Лестница 6.78 (6.78)
    2. Прихожая 8.07 (8.07)
    3. Прачечная 5.75 (6.86)
    4. Гардероб 4.51 (5.70)
    5. Комната 16.12 (18.46)
    6. Ванная 11.66 (11.66)
    7. Гардероб 3.16 (4.02)
    8. Комната 12.65 (14.56)
    9. Комната 12.65 (14.56)
    10. Гардероб 3.60 (4.02)
    11. Гардероб 6.11 (7.57)
    12. Комната 16.30 (17.77)
    Поверхности
    Полезная площадь 195.18 м2
    Поверхность котельной 5.66 м2
    Площадь гаража 19.79 м2
    Площадь строительства 154.41 м2
    Площадь пола 235.9 м2
    Общая площадь 303.44 м2
    Кубатура 1106.69 м3
    Высота здания 8.9 м
    Технология и конструкция
    Стены пустотелый керамический блок 25 см, пенопласт 20 см, штукатурка.
    Конструкция наружных и внутренних стен может быть выполнена из любого материала (керамических или газобетонных блоков), с техническими параметрами не ниже тех, что указаны в проектных решениях. Изменение материалов должно быть согласовано с архитектором по адаптации.
    Перекрытие Монолитное железобетонное (отливается по месту)
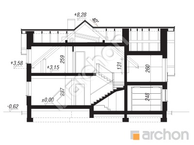
    Коленная стенка 131 см
    Крыша 2-скатная, Скат 40° , Стропильная система деревянная, кровля из керамической черепицы
    Котёл газовый, возможность замены котлом на твердом топливе после адаптации
    Тёплый пол используется во всех жилых помещениях
    Вентиляция гравитационная
    Фасад Дом в табаско вep.2 вер.2
    Разрез
    Проект дома ARCHON+ Дом в табаско вep.2 вер.2 Розріз будинку
    Контур здания
    Проект дома ARCHON+ Дом в табаско вep.2 вер.2 Ситуація

    Проект современного дома с жилой мансардой, тело которого эффектно предстает в обрамлении светлой штукатурки с природными акцентами. Привлекательный цветовой контраст вносит антрацитовая плитка. На первом этаже находится просторная гостиная, эстетическая ценность которой подчеркивается многочисленными остеклениями, привносящими в интерьер много естественного света. Терраса, доступная отсюда, увеличивает пространство для отдыха в доме. Балкон, спроектированный на верхнем этаже, создает частичную крышу над террасой. Кухня включает в себя большой полуостров с барной стойкой и просторную рабочую поверхность для приготовления пищи. На первом этаже, рядом с входной зоной, есть дополнительная комната, спроектированная как кабинет, по ее оси расположена ванная комната с современной душевой кабиной. Подсобные помещения дома включают гараж, доступный через практичную кладовую, и котельную с отдельным выходом на улицу. В мансарде мы расположили уютное приватное пространство дома, которое включает в себя четыре спальни, каждая из которых имеет свой собственный гардероб. Представленный проект относится к категории: проекты современных домов, проекты домов с жилой мансардой, проекты домов с офисом на первом этаже.

    Подпишитесь на рассылку АРХОН Украина

    Подписаться на рассылку!
    Чат c консультантом