Рассылка
    Подходящие проекты: 0
    Дом в мускатах 2 (Б)
    39 480 UAH

    Проект дома ARCHON+ Дом в мускатах 2 (Б) Вид 1

    - 4200 UAH
    Проект дома ARCHON+ Дом в мускатах 2 (Б) Вид 1 1/31
    Цена проекта:
    35 280 UAH 39 480 UAH
    Проект доступен на заказ
    ДО КОНЦА АКЦИИ ОСТАЛОСЬ ЕЩЁ

    Что входит в состав проекта?


    коттедж для сблокированной застройки одноэтажный с жилой мансардой
    гараж, 5 комнат, 2 ванных, кладовая, 1 туалет, 1 котельная


    Полезная
    площадь
    101.83 м2
    Общая
    площадь
    186.96 м2
    комнат
    5
    туалет
    1
    ванных
    2
    гараж
    1

    Внимание! Только оригинальный проект, купленный в компании «Архон Украина» и официальных дилеров, дает Вам гарантию качества и четкое руководство по строительству дома. Также Вы получаете возможность бесплатно консультироваться у наших специалистов на любом этапе строительства. Убедитесь в оригинальности проекта!

    план первого этажа
    Подобрать к своему участку
    Первый этаж 66.14 (68.42)
    1. Тамбур 3.72
    2. Холл 4.03
    3. Котельная с прачечной 7.42
    4. Туалет 1.23
    5. Кладовая 1.47 (3.75)
    6. Гостиная с кухонной пристройкой 28.05
    7. Гараж 20.22
    план мансарды
    Мансарда 63.33 (75.10)
    1. Лестница 4.07 (4.16)
    2. Холл 8.29 (8.50)
    3. Ванная 6.07 (6.76)
    4. Комната 15.46 (17.54)
    5. Комната 10.84 (14.37)
    6. Ванная 3.65 (6.33)
    7. Комната 7.53 (8.97)
    8. Комната 7.42 (8.47)
    Поверхности
    Полезная площадь 101.83 м2
    Поверхность котельной 7.42 м2
    Площадь гаража 20.22 м2
    Площадь строительства 97.14 м2
    Площадь пола 143.52 м2
    Общая площадь 186.96 м2
    Кубатура 624.91 м3
    Высота здания 7.91 м
    Технология и конструкция
    Стены пористый бетон 24 см, пенопласт 20 см, штукатурка.
    Конструкция наружных и внутренних стен может быть выполнена из любого материала (керамических или газобетонных блоков), с техническими параметрами не ниже тех, что указаны в проектных решениях. Изменение материалов должно быть согласовано с архитектором по адаптации.
    Перекрытие Монолитное железобетонное (отливается по месту)
    Коленная стенка 163 см
    Крыша 2-скатная, Скат 42° , 35° , Стропильная система деревянная, кровля из жести
    Котёл газовый
    Тёплый пол используется во всех жилых помещениях
    Вентиляция гравитационная
    Фасад Дом в мускатах 2 (Б)
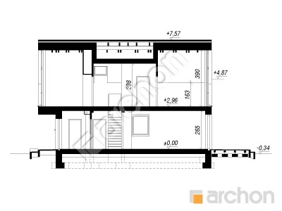
    Разрез
    Проект дома ARCHON+ Дом в мускатах 2 (Б) Розріз будинку
    Контур здания
    Проект дома ARCHON+ Дом в мускатах 2 (Б) Ситуація
    Похожие проекты:

    Подпишитесь на рассылку АРХОН Украина

    Подписаться на рассылку!
    Чат c консультантом