Рассылка
    Подходящие проекты: 0
    Дом в резедах вер. 3
    39 480 UAH

    Проект дома ARCHON+ Дом в резедах вер. 3 Вид 1

    - 4500 UAH
    Проект дома ARCHON+ Дом в резедах вер. 3 Вид 1 1/14
    Цена проекта:
    34 980 UAH 39 480 UAH
    Проект доступен на заказ
    ДО КОНЦА АКЦИИ ОСТАЛОСЬ ЕЩЁ

    Что входит в состав проекта?


    односемейный коттедж одноэтажный с жилой мансардой
    гараж, 5 комнат, 1 кухня, 2 ванных, 1 котельная, прачечная


    Полезная
    площадь
    105.51 м2
    Общая
    площадь
    192.99 м2
    комнат
    5
    кухня
    1
    туалет
    0
    ванных
    2
    гараж
    1

    Внимание! Только оригинальный проект, купленный в компании «Архон Украина» и официальных дилеров, дает Вам гарантию качества и четкое руководство по строительству дома. Также Вы получаете возможность бесплатно консультироваться у наших специалистов на любом этапе строительства. Убедитесь в оригинальности проекта!

    план первого этажа
    Подобрать к своему участку
    Первый этаж 82.86 (84.96)
    1. Тамбур 2.90
    2. Холл 4.21
    3. Кухня 9.52
    4. Гостиная 24.14
    5. Комната 9.27
    6. Лестница 3.23
    7. Ванная 3.16
    8. Котельная 6.03 (8.13)
    9. Гараж 20.40
    план мансарды
    Мансарда 49.08 (60.49)
    1. Прачечная 2.41 (2.99)
    2. Холл и лестница 6.19 (6.19)
    3. Комната 9.85 (13.38)
    4. Комната 14.40 (17.92)
    5. Комната 11.73 (14.37)
    6. Ванная 4.50 (5.64)
    Поверхности
    Полезная площадь 105.51 м2
    Поверхность котельной 6.03 м2
    Площадь гаража 20.4 м2
    Площадь строительства 110.44 м2
    Площадь пола 145.45 м2
    Общая площадь 192.99 м2
    Кубатура 659.95 м3
    Высота здания 8.39 м
    Технология и конструкция
    Стены пустотелый керамический блок 25 см, пенопласт 20 см, штукатурка.
    Конструкция наружных и внутренних стен может быть выполнена из любого материала (керамических или газобетонных блоков), с техническими параметрами не ниже тех, что указаны в проектных решениях. Изменение материалов должно быть согласовано с архитектором по адаптации.
    Перекрытие Монолитное железобетонное (отливается по месту)
    Коленная стенка 108 см
    Крыша 2-скатная, Скат 42° , 25° , Стропильная система деревянная, кровля из керамической черепицы
    Котёл газовый
    Тёплый пол используется в следующих помещениях: Первый этаж: Холл (2), Кухня (3), Гостиная (4), Комната (5), Ванная (7); Мансарда: Ванная (6)
    Вентиляция гравитационная
    Фасад Дом в резедах вер. 3
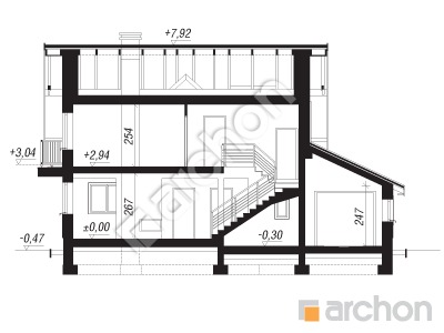
    Разрез
    Проект дома ARCHON+ Дом в резедах вер. 3 Розріз будинку
    Контур здания
    Проект дома ARCHON+ Дом в резедах вер. 3 Ситуація

    Проект дома с пропорциональным корпусом и функциональным интерьером. Вход в дом подчеркнут колоннами с каменной облицовкой. Жилая зона первого этажа представляет собой просторную гостиную с расположенным по центру камином, обеденную зону и открытую кухню с большим количеством рабочих поверхностей. Крытая терраса обеспечивает отдых на свежем воздухе в любую погоду. Дополнительной особенностью является комната, доступная из гостиной, которая может быть использована в качестве кабинета или библиотеки. Подсобное помещение состоит из котельной и гаража. Мансарда - это уголок отдыха хозяев дома. Это возможно благодаря трем удачно расположенным спальням, общей ванной комнате и расположенной рядом с ней прачечной. Данный проект относится к категории: проекты небольших домов.

    Похожие проекты:

    Подпишитесь на рассылку АРХОН Украина

    Подписаться на рассылку!
    Чат c консультантом