Рассылка
    Подходящие проекты: 0
    Дом в эхинацеях вер.2
    43 030 UAH

    Проект дома ARCHON+ Дом в эхинацеях вер.2 Вид 1

    - 4500 UAH
    Проект дома ARCHON+ Дом в эхинацеях вер.2 Вид 1 1/11
    Цена проекта:
    38 530 UAH 43 030 UAH
    Проект доступен на заказ
    ДО КОНЦА АКЦИИ ОСТАЛОСЬ ЕЩЁ

    Что входит в состав проекта?


    односемейный коттедж одноэтажный с жилой мансардой
    7 комнат, 1 кухня, 2 ванных, кладовая, 1 котельная, гардеробная


    Полезная
    площадь
    148.52 м2
    Общая
    площадь
    247.72 м2
    комнат
    7
    кухня
    1
    туалет
    0
    ванных
    2

    Внимание! Только оригинальный проект, купленный в компании «Архон Украина» и официальных дилеров, дает Вам гарантию качества и четкое руководство по строительству дома. Также Вы получаете возможность бесплатно консультироваться у наших специалистов на любом этапе строительства. Убедитесь в оригинальности проекта!

    план первого этажа
    Подобрать к своему участку
    Первый этаж 94.09 (96.39)
    1. Тамбур 3.40
    2. Холл 12.96
    3. Кабинет 10.38
    4. Котельная с прачечной 5.22
    5. Ванная 3.49
    6. Комната 9.25
    7. Хранилище 2.70 (5.00)
    8. Лестница 5.41
    9. Гостиная 29.17
    10. Кухня 10.55
    11. Кладовая 1.56
    план мансарды
    Мансарда 59.65 (93.23)
    1. Холл 8.81 (8.81)
    2. Гардероб 3.42 (5.60)
    3. Комната 9.92 (16.61)
    4. Комната 9.63 (16.32)
    5. Комната 11.90 (13.08)
    6. Комната 8.50 (17.53)
    7. Ванная 7.47 (15.28)
    Поверхности
    Полезная площадь 148.52 м2
    Поверхность котельной 5.22 м2
    Площадь строительства 128.14 м2
    Площадь пола 189.62 м2
    Общая площадь 247.72 м2
    Кубатура 741.2 м3
    Высота здания 7.87 м
    Технология и конструкция
    Стены пустотелый керамический блок 25 см, пенопласт 20 см, штукатурка.
    Конструкция наружных и внутренних стен может быть выполнена из любого материала (керамических или газобетонных блоков), с техническими параметрами не ниже тех, что указаны в проектных решениях. Изменение материалов должно быть согласовано с архитектором по адаптации.
    Перекрытие Монолитное железобетонное (отливается по месту)
    Коленная стенка 86 см
    Крыша 4-скатная, Скат 35° , Стропильная система деревянная, кровля из керамической черепицы
    Котёл газовый
    Тёплый пол используется в следующих помещениях: Первый этаж: Тамбур (1), Ванная (5), Кухня (10); Мансарда: Ванная (7)
    Вентиляция гравитационная
    Фасад Дом в эхинацеях вер.2
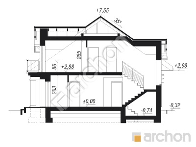
    Разрез
    Проект дома ARCHON+ Дом в эхинацеях вер.2 Розріз будинку
    Контур здания
    Проект дома ARCHON+ Дом в эхинацеях вер.2 Ситуація
    Реализации проекта Дом в эхинацеях вер.2
    Похожие проекты:

    Подпишитесь на рассылку АРХОН Украина

    Подписаться на рассылку!
    Чат c консультантом