Рассылка
    Подходящие проекты: 0
    Дом в вербене вер. 2
    39 480 UAH

    Проект дома ARCHON+ Дом в вербене вер. 2 Вид 1

    - 4500 UAH
    Проект дома ARCHON+ Дом в вербене вер. 2 Вид 1 1/11
    Цена проекта:
    34 980 UAH 39 480 UAH
    Проект доступен на заказ
    ДО КОНЦА АКЦИИ ОСТАЛОСЬ ЕЩЁ

    Что входит в состав проекта?


    односемейный коттедж одноэтажный с жилой мансардой
    гараж, 6 комнат, 1 кухня, 2 ванных, 1 котельная, гардеробная


    Полезная
    площадь
    123.46 м2
    Общая
    площадь
    232.52 м2
    комнат
    6
    кухня
    1
    туалет
    0
    ванных
    2
    гараж
    1

    Внимание! Только оригинальный проект, купленный в компании «Архон Украина» и официальных дилеров, дает Вам гарантию качества и четкое руководство по строительству дома. Также Вы получаете возможность бесплатно консультироваться у наших специалистов на любом этапе строительства. Убедитесь в оригинальности проекта!

    план первого этажа
    Подобрать к своему участку
    Первый этаж 87.24 (88.18)
    1. Тамбур 3.21
    2. Холл 7.36
    3. Гостиная + столовая 25.67
    4. Кухня 7.72
    5. Ванная 2.57
    6. Котельная с прачечной 4.20
    7. Гараж 21.83
    8. Коридор 3.72 (4.66)
    9. Лестница 2.28
    10. Комната 8.68
    план мансарды
    Мансарда 62.25 (84.46)
    1. Холл и лестница 7.46 (7.46)
    2. Комната 9.33 (11.17)
    3. Комната 10.56 (14.39)
    4. Комната 13.92 (17.72)
    5. Ванная 5.13 (8.94)
    6. Комната 14.89 (21.94)
    7. Гардероб 0.96 (2.84)
    Поверхности
    Полезная площадь 123.46 м2
    Поверхность котельной 4.2 м2
    Площадь гаража 21.83 м2
    Площадь строительства 116.26 м2
    Площадь пола 172.64 м2
    Общая площадь 232.52 м2
    Кубатура 724.11 м3
    Высота здания 8.51 м
    Технология и конструкция
    Стены пустотелый керамический блок 25 см, пенопласт 20 см, штукатурка.
    Конструкция наружных и внутренних стен может быть выполнена из любого материала (керамических или газобетонных блоков), с техническими параметрами не ниже тех, что указаны в проектных решениях. Изменение материалов должно быть согласовано с архитектором по адаптации.
    Перекрытие Монолитное железобетонное (отливается по месту)
    Коленная стенка 106 см
    Крыша 4-скатная, Скат 42° , Стропильная система деревянная, кровля из керамической черепицы
    Котёл газовый, возможность замены котлом на твердом топливе после адаптации
    Тёплый пол используется в следующих помещениях: Первый этаж: Тамбур (1), Кухня (4); Мансарда: Ванная (5)
    Вентиляция гравитационная
    Фасад Дом в вербене вер. 2
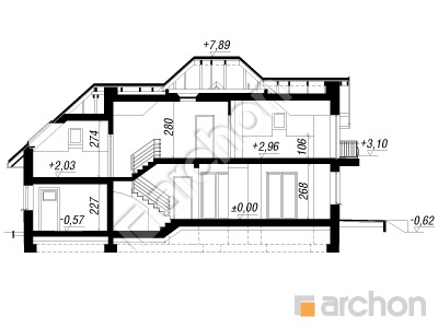
    Разрез
    Проект дома ARCHON+ Дом в вербене вер. 2 Розріз будинку
    Контур здания
    Проект дома ARCHON+ Дом в вербене вер. 2 Ситуація
    Похожие проекты:

    Подпишитесь на рассылку АРХОН Украина

    Подписаться на рассылку!
    Чат c консультантом