Рассылка
    Подходящие проекты: 0
    Дом в айдаредах вер.2
    43 030 UAH

    Проект дома ARCHON+ Дом в айдаредах вер.2 Вид 1

    - 4500 UAH
    Проект дома ARCHON+ Дом в айдаредах вер.2 Вид 1 1/31
    Цена проекта:
    38 530 UAH 43 030 UAH
    Проект доступен на заказ
    ДО КОНЦА АКЦИИ ОСТАЛОСЬ ЕЩЁ

    Что входит в состав проекта?


    односемейный коттедж одноэтажный с жилой мансардой
    гараж, 5 комнат, 1 кухня, 2 ванных, 1 котельная, прачечная, гардеробная


    Полезная
    площадь
    125.56 м2
    Общая
    площадь
    226.70 м2
    комнат
    5
    кухня
    1
    туалет
    0
    ванных
    2
    гараж
    1

    Внимание! Только оригинальный проект, купленный в компании «Архон Украина» и официальных дилеров, дает Вам гарантию качества и четкое руководство по строительству дома. Также Вы получаете возможность бесплатно консультироваться у наших специалистов на любом этапе строительства. Убедитесь в оригинальности проекта!

    план первого этажа
    Подобрать к своему участку
    Первый этаж 82.22 (83.36)
    1. Тамбур 2.82
    2. Холл 5.85
    3. Гостиная + столовая 31.49
    4. Кухня 10.60
    5. Ванная 3.52
    6. Коридор 0.90 (1.71)
    7. Котельная 8.63
    8. Гараж 18.41 (18.74)
    план мансарды
    Мансарда 70.38 (84.66)
    1. Лестница 6.22 (6.22)
    2. Комната 9.89 (10.65)
    3. Комната 9.13 (13.28)
    4. Холл 5.73 (5.73)
    5. Прачечная 2.72 (3.81)
    6. Гардероб 2.72 (3.78)
    7. Комната 11.72 (14.22)
    8. Комната 13.86 (16.36)
    9. Ванная 8.39 (10.61)
    Поверхности
    Полезная площадь 125.56 м2
    Поверхность котельной 8.63 м2
    Площадь гаража 18.41 м2
    Площадь строительства 113.35 м2
    Площадь пола 168.02 м2
    Общая площадь 226.7 м2
    Кубатура 757.62 м3
    Высота здания 8.57 м
    Технология и конструкция
    Стены пустотелый керамический блок 25 см, пенопласт 20 см, штукатурка.
    Конструкция наружных и внутренних стен может быть выполнена из любого материала (керамических или газобетонных блоков), с техническими параметрами не ниже тех, что указаны в проектных решениях. Изменение материалов должно быть согласовано с архитектором по адаптации.
    Перекрытие Монолитное железобетонное (отливается по месту)
    Коленная стенка 128 см
    Крыша 2-скатная, Скат 40° , Стропильная система деревянная, кровля из керамической черепицы
    Котёл на твердом топливе + как вариант, газовый
    Тёплый пол используется в следующих помещениях: Первый этаж: Тамбур (1), Кухня (4); Мансарда: Ванная (9)
    Вентиляция гравитационная
    Фасад Дом в айдаредах вер.2
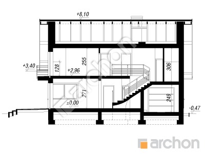
    Разрез
    Проект дома ARCHON+ Дом в айдаредах вер.2 Розріз будинку
    Контур здания
    Проект дома ARCHON+ Дом в айдаредах вер.2 Ситуація

    Проект дома, сочетающего экономичные решения с современными архитектурными деталями, - доказательство того, что простой корпус может успешно сочетаться с привлекательной архитектурой. Открытая L-образная жилая зона занимает почти весь первый этаж: представительная гостиная с камином и ТВ-зоной, просторная кухня с большим количеством места для работы и столовая. В летние дни крытая терраса может также служить в качестве столовой. Мансарда с высокой коленной стеной отлично использует пространство. В доме четыре комфортабельных комнаты и ванная комната, прачечная и гардероб. Благодаря боковому расположению гостиной и освещению ее с трех сторон, проект дома позволяет дольше наслаждаться солнцем.

    Похожие проекты:

    Подпишитесь на рассылку АРХОН Украина

    Подписаться на рассылку!
    Чат c консультантом