Рассылка
    Подходящие проекты: 0
    Дом в лаванде вер. 2
    43 030 UAH

    Проект дома ARCHON+ Дом в лаванде вер. 2 Вид 1

    - 4000 UAH
    Проект дома ARCHON+ Дом в лаванде вер. 2 Вид 1 1/10
    Цена проекта:
    39 030 UAH 43 030 UAH
    Проект доступен на заказ
    ДО КОНЦА АКЦИИ ОСТАЛОСЬ ЕЩЁ

    Что входит в состав проекта?


    односемейный коттедж одноэтажный с жилой мансардой
    гараж, чердак, 5 комнат, 1 кухня, 2 ванных, 1 котельная, гардеробная, антресоль


    Полезная
    площадь
    121.89 м2
    Общая
    площадь
    257.86 м2
    комнат
    5
    кухня
    1
    туалет
    0
    ванных
    2
    гараж
    1

    Внимание! Только оригинальный проект, купленный в компании «Архон Украина» и официальных дилеров, дает Вам гарантию качества и четкое руководство по строительству дома. Также Вы получаете возможность бесплатно консультироваться у наших специалистов на любом этапе строительства. Убедитесь в оригинальности проекта!

    план первого этажа
    Подобрать к своему участку
    Первый этаж 95.49 (98.14)
    1. Тамбур 3.29
    2. Холл 9.95 (12.60)
    3. Кухня 8.58
    4. Гостиная + столовая 32.86
    5. Комната 11.04
    6. Гардероб 2.45
    7. Ванная 2.82
    8. Котельная с прачечной 5.23
    9. Гараж 19.27
    план мансарды
    Мансарда 58.23 (89.44)
    1. Холл и лестница 12.15 (12.35)
    2. Антресоль 3.30 (5.27)
    3. Комната 11.28 (18.31)
    4. Комната 9.25 (10.62)
    5. Ванная 7.73 (11.93)
    6. Комната 7.19 (11.38)
    7. Утеплённый чердак 7.33 (19.58)
    Поверхности
    Полезная площадь 121.89 м2
    Поверхность котельной 5.23 м2
    Площадь гаража 19.27 м2
    Площадь чердака 7.33 м2
    Площадь строительства 128.93 м2
    Площадь пола 187.58 м2
    Общая площадь 257.86 м2
    Кубатура 762.71 м3
    Высота здания 7.77 м
    Технология и конструкция
    Стены пористый бетон 24 см, пенопласт 15 см, штукатурка.
    Конструкция наружных и внутренних стен может быть выполнена из любого материала (керамических или газобетонных блоков), с техническими параметрами не ниже тех, что указаны в проектных решениях. Изменение материалов должно быть согласовано с архитектором по адаптации.
    Перекрытие Монолитное железобетонное (отливается по месту)
    Коленная стенка 103 см
    Крыша 4-скатная, Скат 40° , Стропильная система деревянная, кровля из керамической черепицы
    Котёл газовый
    Тёплый пол используется в следующих помещениях: Первый этаж: Тамбур (1), Холл (2), Кухня (3), Гостиная + столовая (4), Комната (5), Гардероб (6), Ванная (7), Котельная с прачечной (8); Мансарда: Ванная (5)
    Вентиляция гравитационная
    Фасад Дом в лаванде вер. 2
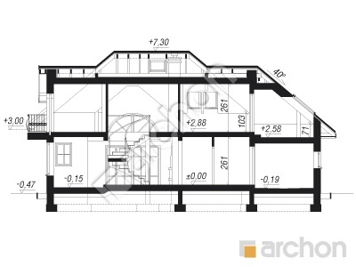
    Разрез
    Проект дома ARCHON+ Дом в лаванде вер. 2 Розріз будинку
    Контур здания
    Проект дома ARCHON+ Дом в лаванде вер. 2 Ситуація

    Проект красивого и функционального дома с классическим корпусом и традиционной отделкой фасада. Представительный вход с балконом, поддерживаемым двумя колоннами, и эффектный садовый ризалит придают всему зданию элегантный характер. Жилая зона выглядит исключительно привлекательно благодаря антресоли с двухэтажной гостиной, разным уровням пола и расположенной по центру лестнице эффектной формы. Открытая кухня соединяется со столовой через практичную барную стойку, а гостиная располагает к отдыху перед камином и домашним кинотеатром. Дополнительная комната идеально подойдет в качестве спальни для гостей. Из прихожей мы переходим в хозяйственную часть дома - гардеробную, котельную на твердом топливе и гараж. Приватная зона жильцов расположена в мансарде и включает три спальни, удобную ванную комнату и гардеробную. Просторный холл был расширен за счет общей зоны отдыха на антресоли - с видом на гостиную и далее на сад. Представленный проект относится к категории: проекты небольших домов и проекты частных домов.

    Реализации проекта Дом в лаванде вер. 2

    Подпишитесь на рассылку АРХОН Украина

    Подписаться на рассылку!
    Чат c консультантом