Розсилка
    Відповідні проєкти: 0
    Будинок у лаванді вер. 2
    43 030 UAH

    Проєкт будинку ARCHON+ Будинок у лаванді вер. 2 Вид 1

    - 3000 UAH
    Проєкт будинку ARCHON+ Будинок у лаванді вер. 2 Вид 1 1/10
    Ціна проєкту:
    40 030 UAH 43 030 UAH
    Проєкт доступний на замовлення
    ДО КІНЦЯ АКЦІЇ ЗАЛИШИЛОСЯ ЩЕ

    Що входить до складу проєкту?


    односімейний котедж одноповерховий з житловою мансардою
    гараж, горище, 5 кімнат, 1 кухня, 2 ванни, 1 котельня, гардеробна, антресоль


    Корисна
    площа
    121.89 м2
    Загальна
    площа
    257.86 м2
    кімнат
    5
    кухня
    1
    туалет
    0
    ванни
    2
    гараж
    1

    Увага! Тільки оригінальний проєкт, куплений в компанії «Архон Україна» і у офіційних дилерів, дає Вам гарантію якості і чітке керівництво над будівництвом будинку. Також Ви отримуєте можливість безкоштовно консультуватися у наших фахівців на будь-якому етапі будівництва. Переконайтеся в оригінальності проєкту!

    План першого поверху
    Допасуйте до своєї ділянки
    Перший поверх 95.49 (98.14)
    1. Тамбур 3.29
    2. Хол 9.95 (12.60)
    3. Кухня 8.58
    4. Вітальня + їдальня 32.86
    5. Кімната 11.04
    6. Гардероб 2.45
    7. Ванна кімната 2.82
    8. Котельня з пральнею 5.23
    9. Гараж 19.27
    План мансарди
    Мансарда 58.23 (89.44)
    1. Хол і сходи 12.15 (12.35)
    2. Антресоль 3.30 (5.27)
    3. Кімната 11.28 (18.31)
    4. Кімната 9.25 (10.62)
    5. Ванна кімната 7.73 (11.93)
    6. Кімната 7.19 (11.38)
    7. Утеплене горище 7.33 (19.58)
    Поверхні
    Корисна площа 121.89 м2
    Поверхня котельні 5.23 м2
    Площа гаража 19.27 м2
    Площа горища 7.33 м2
    Площа будівництва 128.93 м2
    Площа підлоги 187.58 м2
    Загальна площа 257.86 м2
    Кубатура 762.71 м3
    Висота будинку 7.77 м
    Технологія і конструкція
    Стіни комірчастий бетон 24 см, пінопласт 15 см, штукатурка.
    Конструкція зовнішніх і внутрішніх стін може бути виконана з будь-якого матеріалу (керамічних або газобетонних блоків), з технічними параметрами не нижчими за ті, що зазначені в проєктних рішеннях. Зміна матеріалів має бути узгоджена з адаптаційним архітектором.
    Перекриття Монолітне залізобетонне (відливається за місцем)
    Колінна стінка 103 см
    Дах 4-скатний, Схил 40° , Кроквяна система дерев'яна, покрівля з керамічної черепиці
    Котел газовий
    Тепла підлога використовується в таких приміщеннях: Перший поверх: Тамбур (1), Хол (2), Кухня (3), Вітальня + їдальня (4), Кімната (5), Гардероб (6), Ванна кімната (7), Котельня з пральнею (8); Мансарда: Ванна кімната (5)
    Вентиляція гравітаційна
    Фасад Будинок у лаванді вер. 2
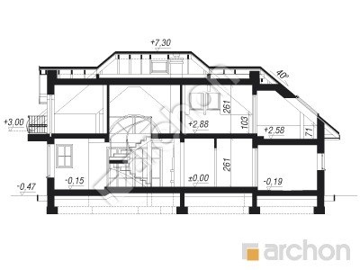
    Розріз
    Проєкт будинку ARCHON+ Будинок у лаванді вер. 2 Розріз будинку
    Контур будівлі
    Проєкт будинку ARCHON+ Будинок у лаванді вер. 2 Ситуація

    Проєкт красивого та функціонального будинку з класичним корпусом та традиційним оздобленням фасаду. Представницький вхід з балконом, що підтримується двома колонами, та ефектний садовий ризаліт надають всій будівлі елегантного характеру. Житлова зона виглядає виключно привабливо завдяки антресолі з двоповерховою вітальнею, різним рівнем підлоги та розташованими по центру сходами ефектної форми. Відкрита кухня з'єднується із їдальнею через практичну барну стійку, а вітальня сприяє відпочинку перед каміном і домашнім кінотеатром. Додаткова кімната ідеально підійде як спальня для гостей. З передпокою ми переходимо в господарську частину будинку - вбиральню, котельню на твердому паливі та гараж. Приватна зона мешканців розташована в мансарді і включає три спальні, зручну ванну кімнату та вбиральню. Просторий хол був розширений за рахунок загальної зони відпочинку на антресолі – з видом на вітальню і далі на сад. Представлений проєкт відноситься до категорії: проєкти невеликих будинків та проєкти приватних будинків.

    Реалізації проєкту Будинок у лаванді вер. 2

    Підпишіться на розсилку АРХОН Україна

    Підписатися на розсилку!
    Чат з консультантом