Рассылка
    Подходящие проекты: 0
    Дом в филодендронах (Мп)
    43 030 UAH

    Проект дома ARCHON+ Дом в филодендронах (Мп) Вид 1

    - 3500 UAH
    Проект дома ARCHON+ Дом в филодендронах (Мп) Вид 1 1/18
    Цена проекта:
    39 530 UAH 43 030 UAH
    Проект доступен на заказ
    ДО КОНЦА АКЦИИ ОСТАЛОСЬ ЕЩЁ

    Что входит в состав проекта?


    односемейный коттедж одноэтажный с жилой мансардой
    гараж, 6 комнат, 1 кухня, 2 ванных, 1 котельная, прачечная, гардеробная


    Полезная
    площадь
    126.88 м2
    Общая
    площадь
    237.16 м2
    комнат
    6
    кухня
    1
    туалет
    0
    ванных
    2
    гараж
    1

    Внимание! Только оригинальный проект, купленный в компании «Архон Украина» и официальных дилеров, дает Вам гарантию качества и четкое руководство по строительству дома. Также Вы получаете возможность бесплатно консультироваться у наших специалистов на любом этапе строительства. Убедитесь в оригинальности проекта!

    план первого этажа
    Подобрать к своему участку
    Первый этаж 91.58 (92.09)
    1. Тамбур 3.83
    2. Холл 2.21
    3. Кухня 9.59
    4. Гостиная 24.23
    5. Комната 10.58
    6. Лестница 4.77
    7. Ванная 4.50 (5.01)
    8. Прачечная 4.01
    9. Гараж 18.70
    10. Котельная 9.16
    план мансарды
    Мансарда 63.16 (86.29)
    1. Холл 3.76
    2. Гардероб 4.18 (8.17)
    3. Комната 14.48 (20.12)
    4. Ванная 5.82 (8.37)
    5. Комната 11.58 (15.78)
    6. Комната 14.70 (17.96)
    7. Комната 8.64 (12.13)
    Поверхности
    Полезная площадь 126.88 м2
    Поверхность котельной 9.16 м2
    Площадь гаража 18.7 м2
    Площадь строительства 118.56 м2
    Площадь пола 178.38 м2
    Общая площадь 237.16 м2
    Кубатура 771.63 м3
    Высота здания 8.81 м
    Технология и конструкция
    Стены пористый бетон 24 см, пенопласт 20 см, штукатурка.
    Конструкция наружных и внутренних стен может быть выполнена из любого материала (керамических или газобетонных блоков), с техническими параметрами не ниже тех, что указаны в проектных решениях. Изменение материалов должно быть согласовано с архитектором по адаптации.
    Перекрытие Монолитное железобетонное (отливается по месту)
    Коленная стенка 108 см
    Крыша 2-скатная, Скат 40° , Стропильная система деревянная, кровля из керамической черепицы
    Котёл на твердом топливе + как вариант, газовый
    Тёплый пол используется в следующих помещениях: Первый этаж: Тамбур (1), Кухня (3); Мансарда: Ванная (4)
    Вентиляция гравитационная
    Фасад Дом в филодендронах (Мп)
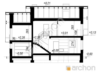
    Разрез
    Проект дома ARCHON+ Дом в филодендронах (Мп) Розріз будинку
    Контур здания
    Проект дома ARCHON+ Дом в филодендронах (Мп) Ситуація

    Современный и экономичный проект дома, современный стиль отделки которого подчеркивается элегантной облицовкой и архитектурными деталями. Жилая зона представляет собой уютную гостиную с обеденной зоной и открытой кухней. Расположенный в центре камин и выход на крытую террасу являются главными достоинствами этой зоны дома. Дополнительная комната может служить в качестве кабинета или библиотеки. В хозяйственную зону - прачечную, гараж и котельную на твердом топливе - можно попасть из тамбура. В мансарде была спроектирована приватная зона жильцов - четыре светлые спальни, гардеробная и удобная ванная комната. Этот проект может быть реализован в два этапа, он также относится к популярным категориям: проекты домов дешевых в строительстве, проекты небольших домов и проекты современных домов.

    Похожие проекты:

    Подпишитесь на рассылку АРХОН Украина

    Подписаться на рассылку!
    Чат c консультантом