Рассылка
    Подходящие проекты: 0
    Дом в рукколе (Г2H)
    43 030 UAH

    Проект дома ARCHON+ Дом в рукколе (Г2H) Вид 1

    - 3500 UAH
    Проект дома ARCHON+ Дом в рукколе (Г2H) Вид 1 1/19
    Цена проекта:
    39 530 UAH 43 030 UAH
    Проект доступен сразу
    ДО КОНЦА АКЦИИ ОСТАЛОСЬ ЕЩЁ

    Что входит в состав проекта?


    односемейный коттедж одноэтажный с жилой мансардой
    гараж, 5 комнат, 1 кухня, 2 ванных, 1 котельная, гардеробная, хозяйственное помещение


    Полезная
    площадь
    122.27 м2
    Общая
    площадь
    277.86 м2
    комнат
    5
    кухня
    1
    туалет
    0
    ванных
    2
    гараж
    2

    Внимание! Только оригинальный проект, купленный в компании «Архон Украина» и официальных дилеров, дает Вам гарантию качества и четкое руководство по строительству дома. Также Вы получаете возможность бесплатно консультироваться у наших специалистов на любом этапе строительства. Убедитесь в оригинальности проекта!

    план первого этажа
    Подобрать к своему участку
    Первый этаж 104.14 (104.79)
    1. Тамбур 4.82
    2. Кухня 8.41
    3. Гостиная + столовая 30.08
    4. Комната 10.71
    5. Ванная 3.41 (4.06)
    6. Коридор 3.49
    7. Гараж 35.52
    8. Котельная 7.70
    план мансарды
    Мансарда 61.35 (104.42)
    1. Лестница 3.89 (3.89)
    2. Холл 5.16 (5.16)
    3. Комната 10.79 (13.31)
    4. Комната 9.63 (13.55)
    5. Комната 10.24 (14.51)
    6. Гардероб 3.72 (5.22)
    7. Ванная 6.75 (11.87)
    8. Хозяйственное помещение 11.17 (36.91)
    Поверхности
    Полезная площадь 122.27 м2
    Поверхность котельной 7.7 м2
    Площадь гаража 35.52 м2
    Площадь строительства 141.39 м2
    Площадь пола 209.21 м2
    Общая площадь 277.86 м2
    Кубатура 823.96 м3
    Высота здания 8.38 м
    Технология и конструкция
    Стены пустотелый керамический блок 25 см, пенопласт 20 см, штукатурка.
    Конструкция наружных и внутренних стен может быть выполнена из любого материала (керамических или газобетонных блоков), с техническими параметрами не ниже тех, что указаны в проектных решениях. Изменение материалов должно быть согласовано с архитектором по адаптации.
    Перекрытие Монолитное железобетонное (отливается по месту)
    Коленная стенка 107 см
    Крыша 4-скатная, Скат 40° , Стропильная система деревянная, кровля из керамической черепицы
    Котёл на твердом топливе + как вариант, газовый
    Тёплый пол используется в следующих помещениях: Первый этаж: Тамбур (1), Кухня (2), Гостиная + столовая (3); Мансарда: Ванная (7)
    Вентиляция гравитационная
    Фасад Дом в рукколе (Г2H)
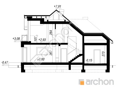
    Разрез
    Проект дома ARCHON+ Дом в рукколе (Г2H) Розріз будинку
    Контур здания
    Проект дома ARCHON+ Дом в рукколе (Г2H) Ситуація

    Красивый, современный проект односемейного дома с гаражом и жилой мансардой. Первый этаж включает просторную гостиную зону с центрально расположенным камином и проходом на террасу и открытую кухню. На первом этаже также есть дополнительная комната и подсобное помещение с гаражом на две машины и котельной за ним. Отдельные комнаты в мансарде включают три комнаты с гардеробной и ванной комнатой с естественным освещением. Удобный, функционально спланированный дом. Входная зона, подчеркнутая мансардным окном, выделена облицованной камнем стеной. Благодаря характерному обрамлению входа и повторению фактуры в формально важных местах, здание приобретает индивидуальный характер.

    Похожие проекты:

    Подпишитесь на рассылку АРХОН Украина

    Подписаться на рассылку!
    Чат c консультантом