Рассылка
    Подходящие проекты: 0
    Дом в тамарисках 8 (П)
    56 790 UAH

    Проект дома ARCHON+ Дом в тамарисках 8 (П) Вид 1

    - 3500 UAH
    Проект дома ARCHON+ Дом в тамарисках 8 (П) Вид 1 1/11
    Цена проекта:
    53 290 UAH 56 790 UAH
    Проект доступен сразу
    ДО КОНЦА АКЦИИ ОСТАЛОСЬ ЕЩЁ

    Что входит в состав проекта?


    односемейный коттедж одноэтажный с жилой мансардой
    гараж, подвал, 6 комнат, 1 кухня, 2 ванных, кладовая, 1 котельная, прачечная, гардеробная, хозяйственное помещение


    Полезная
    площадь
    172.27 м2
    Общая
    площадь
    406.49 м2
    комнат
    6
    кухня
    1
    туалет
    0
    ванных
    2
    гараж
    1

    Внимание! Только оригинальный проект, купленный в компании «Архон Украина» и официальных дилеров, дает Вам гарантию качества и четкое руководство по строительству дома. Также Вы получаете возможность бесплатно консультироваться у наших специалистов на любом этапе строительства. Убедитесь в оригинальности проекта!

    план подвала
    Подвал 79.09 (81.97)
    1. Коридор 5.63
    2. Лестница 2.66
    3. Хранилище 0.85 (3.73)
    4. Хозяйственное помещение 11.62
    5. Хозяйственное помещение 34.71
    6. Прачечная 23.62
    план первого этажа
    Подобрать к своему участку
    Первый этаж 115.57
    1. Тамбур 2.80
    2. Холл 8.36
    3. Ванная 4.31
    4. Гараж 27.26
    5. Котельная 11.23
    6. Лестница 1.72
    7. Комната 12.45
    8. Гостиная 35.19
    9. Кухня 10.47
    10. Кладовая 1.78
    план мансарды
    Мансарда 95.19 (115.18)
    1. Лестница 5.12 (5.12)
    2. Гардероб 4.35 (6.62)
    3. Комната 20.51 (25.48)
    4. Гардероб 4.05 (6.60)
    5. Коридор 6.08 (6.08)
    6. Комната 12.57 (14.99)
    7. Комната 16.92 (20.37)
    8. Комната 15.11 (18.18)
    9. Ванная 10.48 (11.74)
    Поверхности
    Полезная площадь 172.27 м2
    Поверхность котельной 11.23 м2
    Площадь гаража 27.26 м2
    Площадь строительства 152.53 м2
    Площадь пола 312.72 м2
    Общая площадь 406.49 м2
    Кубатура 1297.05 м3
    Высота здания 9.12 м
    Технология и конструкция
    Стены пустотелый керамический блок 25 см, пенопласт 20 см, штукатурка.
    Конструкция наружных и внутренних стен может быть выполнена из любого материала (керамических или газобетонных блоков), с техническими параметрами не ниже тех, что указаны в проектных решениях. Изменение материалов должно быть согласовано с архитектором по адаптации.
    Перекрытие Монолитное железобетонное (отливается по месту)
    Коленная стенка 120 см
    Крыша 2-скатная, Скат 42° , 35° , Стропильная система деревянная, кровля из керамической черепицы
    Котёл на твердом топливе + как вариант, газовый
    Тёплый пол используется в следующих помещениях: Подвал: Коридор (1), Хозяйственное помещение (4), Хозяйственное помещение (5), Прачечная (6); Первый этаж: Тамбур (1), Холл (2), Ванная (3), Комната (7), Гостиная (8), Кухня (9); Мансарда: Ванная (9)
    Вентиляция гравитационная
    Фасад Дом в тамарисках 8 (П)
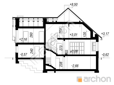
    Разрез
    Проект дома ARCHON+ Дом в тамарисках 8 (П) Розріз будинку
    Контур здания
    Проект дома ARCHON+ Дом в тамарисках 8 (П) Ситуація

    Комфортабельный дом с простым корпусом, который отличается практичным входным навесом в виде расширенного карниза, поддерживаемого колонной. Дневная зона - это просторная и светлая гостиная, соединенная со столовой, расположенной в стеклянном эркере. Терраса, доступная из гостиной, может служить летней столовой в теплые дни. Открытая кухня соединена с гостиной через стол для завтрака, рядом с ней расположена удобная кладовая. На первом этаже есть дополнительное помещение, предназначенное для гостевой комнаты или кабинета. В хозяйственной части расположены гараж и удобная котельная на твердом топливе с отдельным выходом. Комнаты в подвале расположены интересным образом. Здесь сочетаются как хозяйственная функция с прачечной, так и функция отдыха с местом для бильярда или релаксации с домашним кинотеатром. Мансарда включает в себя четыре уютные, хорошо освещенные комнаты и функциональную, светлую ванную комнату. Спальня родителей имеет собственный гардероб и отделена от остальной части мансарды.

    Похожие проекты:

    Подпишитесь на рассылку АРХОН Украина

    Подписаться на рассылку!
    Чат c консультантом