Розсилка
    Відповідні проєкти: 0
    Будинок в тамариску 8 (П)
    56 790 UAH

    Проєкт будинку ARCHON+ Будинок в тамариску 8 (П) Вид 1

    - 3500 UAH
    Проєкт будинку ARCHON+ Будинок в тамариску 8 (П) Вид 1 1/11
    Ціна проєкту:
    53 290 UAH 56 790 UAH
    Проєкт доступний відразу
    ДО КІНЦЯ АКЦІЇ ЗАЛИШИЛОСЯ ЩЕ

    Що входить до складу проєкту?


    односімейний котедж одноповерховий з житловою мансардою
    гараж, підвал, 6 кімнат, 1 кухня, 2 ванни, комора, 1 котельня, пральня, гардеробна, господарське приміщення


    Корисна
    площа
    172.27 м2
    Загальна
    площа
    406.49 м2
    кімнат
    6
    кухня
    1
    туалет
    0
    ванни
    2
    гараж
    1

    Увага! Тільки оригінальний проєкт, куплений в компанії «Архон Україна» і у офіційних дилерів, дає Вам гарантію якості і чітке керівництво над будівництвом будинку. Також Ви отримуєте можливість безкоштовно консультуватися у наших фахівців на будь-якому етапі будівництва. Переконайтеся в оригінальності проєкту!

    План підвалу
    Підвал 79.09 (81.97)
    1. Коридор 5.63
    2. Сходи 2.66
    3. Сховище 0.85 (3.73)
    4. Господарське приміщення 11.62
    5. Господарське приміщення 34.71
    6. Пральня 23.62
    План першого поверху
    Допасуйте до своєї ділянки
    Перший поверх 115.57
    1. Тамбур 2.80
    2. Хол 8.36
    3. Ванна кімната 4.31
    4. Гараж 27.26
    5. Котельня 11.23
    6. Сходи 1.72
    7. Кімната 12.45
    8. Вітальня 35.19
    9. Кухня 10.47
    10. Комора 1.78
    План мансарди
    Мансарда 95.19 (115.18)
    1. Сходи 5.12 (5.12)
    2. Гардероб 4.35 (6.62)
    3. Кімната 20.51 (25.48)
    4. Гардероб 4.05 (6.60)
    5. Коридор 6.08 (6.08)
    6. Кімната 12.57 (14.99)
    7. Кімната 16.92 (20.37)
    8. Кімната 15.11 (18.18)
    9. Ванна кімната 10.48 (11.74)
    Поверхні
    Корисна площа 172.27 м2
    Поверхня котельні 11.23 м2
    Площа гаража 27.26 м2
    Площа будівництва 152.53 м2
    Площа підлоги 312.72 м2
    Загальна площа 406.49 м2
    Кубатура 1297.05 м3
    Висота будинку 9.12 м
    Технологія і конструкція
    Стіни пустотілий керамічний блок 25 см, пінопласт 20 см, штукатурка.
    Конструкція зовнішніх і внутрішніх стін може бути виконана з будь-якого матеріалу (керамічних або газобетонних блоків), з технічними параметрами не нижчими за ті, що зазначені в проєктних рішеннях. Зміна матеріалів має бути узгоджена з адаптаційним архітектором.
    Перекриття Монолітне залізобетонне (відливається за місцем)
    Колінна стінка 120 см
    Дах 2-скатний, Схил 42° , 35° , Кроквяна система дерев'яна, покрівля з керамічної черепиці
    Котел на твердому паливі + як варіант, газовий
    Тепла підлога використовується в таких приміщеннях: Підвал: Коридор (1), Господарське приміщення (4), Господарське приміщення (5), Пральня (6); Перший поверх: Тамбур (1), Хол (2), Ванна кімната (3), Кімната (7), Вітальня (8), Кухня (9); Мансарда: Ванна кімната (9)
    Вентиляція гравітаційна
    Фасад Будинок в тамариску 8 (П)
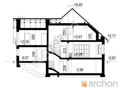
    Розріз
    Проєкт будинку ARCHON+ Будинок в тамариску 8 (П) Розріз будинку
    Контур будівлі
    Проєкт будинку ARCHON+ Будинок в тамариску 8 (П) Ситуація

    Комфортабельний будинок із простим корпусом, який відрізняється практичним вхідним навісом у вигляді розширеного карниза, що підтримується колоною. Денна зона - це простора та світла вітальня, з'єднана із їдальнею, розташованою у скляному еркері. Тераса, доступна з вітальні, може бути літньою їдальнею в теплі дні. Відкрита кухня з'єднана з вітальнею через стіл для сніданку, поруч із нею розташована зручна комора. На першому поверсі є додаткове приміщення для гостьової кімнати або кабінету. У господарській частині розташовані гараж та зручна котельня на твердому паливі з окремим виходом. Кімнати у підвалі розташовані цікавим чином. Тут поєднуються як господарська функція з пральною, так і відпочинкова функція з місцем для більярду або релаксації з домашнім кінотеатром. Мансарда включає чотири затишні, добре освітлені кімнати і функціональну, світлу ванну кімнату. Спальня батьків має власний гардероб і відокремлена від решти мансарди.

    Подібні проєкти:

    Підпишіться на розсилку АРХОН Україна

    Підписатися на розсилку!
    Чат з консультантом