Рассылка
    Подходящие проекты: 0
    Дом в клеверках 3 вер.2
    39 480 UAH

    Проект дома ARCHON+ Дом в клеверках 3 вер.2 Вид 1

    - 3500 UAH
    Проект дома ARCHON+ Дом в клеверках 3 вер.2 Вид 1 1/11
    Цена проекта:
    35 980 UAH 39 480 UAH
    Проект доступен сразу
    ДО КОНЦА АКЦИИ ОСТАЛОСЬ ЕЩЁ

    Что входит в состав проекта?


    односемейный коттедж одноэтажный с жилой мансардой
    гараж, 4 комнат, 1 кухня, 1 ванная, кладовая, 1 туалет, 1 котельная, гардеробная


    Полезная
    площадь
    113.64 м2
    Общая
    площадь
    211.84 м2
    комнат
    4
    кухня
    1
    туалет
    1
    ванная
    1
    гараж
    1

    Внимание! Только оригинальный проект, купленный в компании «Архон Украина» и официальных дилеров, дает Вам гарантию качества и четкое руководство по строительству дома. Также Вы получаете возможность бесплатно консультироваться у наших специалистов на любом этапе строительства. Убедитесь в оригинальности проекта!

    план первого этажа
    Подобрать к своему участку
    Первый этаж 81.48 (85.07)
    1. Тамбур 4.68
    2. Холл 4.58
    3. Туалет 1.87 (5.46)
    4. Лестница 6.03
    5. Гостиная 29.07
    6. Кухня 8.82
    7. Кладовая 1.60
    8. Гараж 18.66
    9. Котельная 6.17
    план мансарды
    Мансарда 56.99 (75.24)
    1. Холл 5.35
    2. Комната 14.18 (19.10)
    3. Комната 12.48 (16.59)
    4. Ванная 6.80 (8.27)
    5. Комната 14.73 (19.08)
    6. Гардероб 3.45 (6.85)
    Поверхности
    Полезная площадь 113.64 м2
    Поверхность котельной 6.17 м2
    Площадь гаража 18.66 м2
    Площадь строительства 109.0 м2
    Площадь пола 160.31 м2
    Общая площадь 211.84 м2
    Кубатура 698.21 м3
    Высота здания 8.87 м
    Технология и конструкция
    Стены пустотелый керамический блок 25 см, пенопласт 20 см, штукатурка.
    Конструкция наружных и внутренних стен может быть выполнена из любого материала (керамических или газобетонных блоков), с техническими параметрами не ниже тех, что указаны в проектных решениях. Изменение материалов должно быть согласовано с архитектором по адаптации.
    Перекрытие Монолитное железобетонное (отливается по месту)
    Коленная стенка 110 см
    Крыша 4-скатная, Скат 42° , Стропильная система деревянная, кровля из керамической черепицы
    Котёл газовый, возможность замены котлом на твердом топливе после адаптации
    Тёплый пол используется во всех жилых помещениях
    Вентиляция гравитационная
    Фасад Дом в клеверках 3 вер.2
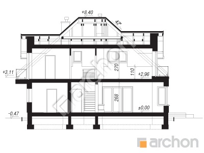
    Разрез
    Проект дома ARCHON+ Дом в клеверках 3 вер.2 Розріз будинку
    Контур здания
    Проект дома ARCHON+ Дом в клеверках 3 вер.2 Ситуація

    Проект дома с гармоничной архитектурой и функционально оформленным внутренним пространством. Расположенный в центре вход в дом был подчеркнут красивой аркадой. Преимущество открытой и просторной дневной зоны, соединяющей гостиную со столовой и кухней, заключается в возможности разнообразного расположения. Функциональную программу первого этажа дополняют туалет, спрятанный под лестницей, кладовая, гараж со входом из вестибюля и котельная. Двухмаршевая лестница ведет на мансарду к приватной зоне. Там есть три светлые и удобные спальни с балконами и ванной комнатой.

    Реализации проекта Дом в клеверках 3 вер.2
    Похожие проекты:

    Подпишитесь на рассылку АРХОН Украина

    Подписаться на рассылку!
    Чат c консультантом