Розсилка
    Відповідні проєкти: 0
    Будинок в конюшинках 3 вер.2
    39 480 UAH

    Проєкт будинку ARCHON+ Будинок в конюшинках 3 вер.2 Вид 1

    - 3500 UAH
    Проєкт будинку ARCHON+ Будинок в конюшинках 3 вер.2 Вид 1 1/11
    Ціна проєкту:
    35 980 UAH 39 480 UAH
    Проєкт доступний відразу
    ДО КІНЦЯ АКЦІЇ ЗАЛИШИЛОСЯ ЩЕ

    Що входить до складу проєкту?


    односімейний котедж одноповерховий з житловою мансардою
    гараж, 4 кімнат, 1 кухня, 1 ванна, комора, 1 туалет, 1 котельня, гардеробна


    Корисна
    площа
    113.64 м2
    Загальна
    площа
    211.84 м2
    кімнат
    4
    кухня
    1
    туалет
    1
    ванна
    1
    гараж
    1

    Увага! Тільки оригінальний проєкт, куплений в компанії «Архон Україна» і у офіційних дилерів, дає Вам гарантію якості і чітке керівництво над будівництвом будинку. Також Ви отримуєте можливість безкоштовно консультуватися у наших фахівців на будь-якому етапі будівництва. Переконайтеся в оригінальності проєкту!

    План першого поверху
    Допасуйте до своєї ділянки
    Перший поверх 81.48 (85.07)
    1. Тамбур 4.68
    2. Хол 4.58
    3. Туалет 1.87 (5.46)
    4. Сходи 6.03
    5. Вітальня 29.07
    6. Кухня 8.82
    7. Комора 1.60
    8. Гараж 18.66
    9. Котельня 6.17
    План мансарди
    Мансарда 56.99 (75.24)
    1. Хол 5.35
    2. Кімната 14.18 (19.10)
    3. Кімната 12.48 (16.59)
    4. Ванна кімната 6.80 (8.27)
    5. Кімната 14.73 (19.08)
    6. Гардероб 3.45 (6.85)
    Поверхні
    Корисна площа 113.64 м2
    Поверхня котельні 6.17 м2
    Площа гаража 18.66 м2
    Площа будівництва 109.0 м2
    Площа підлоги 160.31 м2
    Загальна площа 211.84 м2
    Кубатура 698.21 м3
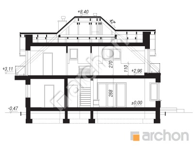
    Висота будинку 8.87 м
    Технологія і конструкція
    Стіни пустотілий керамічний блок 25 см, пінопласт 20 см, штукатурка.
    Конструкція зовнішніх і внутрішніх стін може бути виконана з будь-якого матеріалу (керамічних або газобетонних блоків), з технічними параметрами не нижчими за ті, що зазначені в проєктних рішеннях. Зміна матеріалів має бути узгоджена з адаптаційним архітектором.
    Перекриття Монолітне залізобетонне (відливається за місцем)
    Колінна стінка 110 см
    Дах 4-скатний, Схил 42° , Кроквяна система дерев'яна, покрівля з керамічної черепиці
    Котел газовий, можливість заміни котлом на твердому паливі після адаптації
    Тепла підлога застосовано у всіх житлових приміщеннях
    Вентиляція гравітаційна
    Фасад Будинок в конюшинках 3 вер.2
    Розріз
    Проєкт будинку ARCHON+ Будинок в конюшинках 3 вер.2 Розріз будинку
    Контур будівлі
    Проєкт будинку ARCHON+ Будинок в конюшинках 3 вер.2 Ситуація

    Проєкт будинку з гармонійною архітектурою і функціонально оформленим внутрішнім простором. Розташований в центрі вхід в будинок був підкреслений красивою аркадою. Перевага відкритої і просторої денної зони, що з'єднує вітальню з їдальнею і кухнею, полягає в можливості різноманітного розташування. Функціональну програму першого поверху доповнюють туалет, захований під сходами, комора, гараж з входом з вестибюля і котельня. Двухмаршеві сходи ведуть на мансарду до приватної зоні. Там є три світлі і зручні спальні з балконами та ванною кімнатою.

    Реалізації проєкту Будинок в конюшинках 3 вер.2
    Подібні проєкти:

    Підпишіться на розсилку АРХОН Україна

    Підписатися на розсилку!
    Чат з консультантом