Рассылка
    Подходящие проекты: 0
    Дом в бугунвилиях (Г2П)
    56 790 UAH

    Проект дома ARCHON+ Дом в бугунвилиях (Г2П) Вид 1

    - 3500 UAH
    Проект дома ARCHON+ Дом в бугунвилиях (Г2П) Вид 1 1/14
    Цена проекта:
    53 290 UAH 56 790 UAH
    Проект доступен на заказ
    ДО КОНЦА АКЦИИ ОСТАЛОСЬ ЕЩЁ

    Что входит в состав проекта?


    односемейный коттедж одноэтажный с жилой мансардой
    гараж, подвал, 6 комнат, 1 кухня, 2 ванных, 1 котельная, прачечная, гардеробная, хозяйственное помещение


    Полезная
    площадь
    169.86 м2
    Общая
    площадь
    405.34 м2
    комнат
    6
    кухня
    1
    туалет
    0
    ванных
    2
    гараж
    2

    Внимание! Только оригинальный проект, купленный в компании «Архон Украина» и официальных дилеров, дает Вам гарантию качества и четкое руководство по строительству дома. Также Вы получаете возможность бесплатно консультироваться у наших специалистов на любом этапе строительства. Убедитесь в оригинальности проекта!

    план подвала
    Подвал 71.80 (74.52)
    1. Лестница 2.78
    2. Коридор 7.23 (9.95)
    3. Хозяйственное помещение 15.34
    4. Хозяйственное помещение 30.20
    5. Котельная 16.25
    план первого этажа
    Подобрать к своему участку
    Первый этаж 115.77
    1. Тамбур 2.95
    2. Холл 6.81
    3. Гостиная + столовая 31.26
    4. Кухня 10.77
    5. Ванная 4.79
    6. Комната 10.32
    7. Лестница 1.86
    8. Хозяйственное помещение 6.16
    9. Гараж 40.85
    план мансарды
    Мансарда 94.94 (119.69)
    1. Холл и лестница 15.04
    2. Комната 19.19 (24.29)
    3. Гардероб 7.24 (7.58)
    4. Ванная 10.56 (11.18)
    5. Прачечная 3.66 (5.51)
    6. Гардероб 3.04 (8.07)
    7. Комната 13.47 (16.32)
    8. Комната 13.41 (16.45)
    9. Комната 9.33 (15.25)
    Поверхности
    Полезная площадь 169.86 м2
    Площадь гаража 40.85 м2
    Площадь строительства 154.63 м2
    Площадь пола 309.98 м2
    Общая площадь 405.34 м2
    Кубатура 1208.25 м3
    Высота здания 8.41 м
    Технология и конструкция
    Стены пустотелый керамический блок 25 см, пенопласт 20 см, штукатурка.
    Конструкция наружных и внутренних стен может быть выполнена из любого материала (керамических или газобетонных блоков), с техническими параметрами не ниже тех, что указаны в проектных решениях. Изменение материалов должно быть согласовано с архитектором по адаптации.
    Перекрытие Монолитное железобетонное (отливается по месту)
    Коленная стенка 128 см
    Крыша 2-скатная, Скат 40° , Стропильная система деревянная, кровля из керамической черепицы
    Котёл на твердом топливе + как вариант, газовый
    Тёплый пол используется в следующих помещениях: Первый этаж: Тамбур (1), Холл (2), Гостиная + столовая (3), Кухня (4), Ванная (5), Комната (6); Мансарда: Ванная (4)
    Вентиляция гравитационная
    Фасад Дом в бугунвилиях (Г2П)
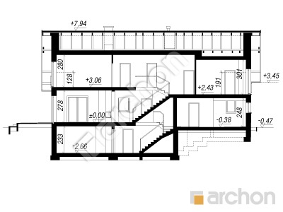
    Разрез
    Проект дома ARCHON+ Дом в бугунвилиях (Г2П) Розріз будинку
    Контур здания
    Проект дома ARCHON+ Дом в бугунвилиях (Г2П) Ситуація

    Чрезвычайно впечатляющий проект дома с жилой мансардой, просторным гаражом на две машины и подвалом, который является отличным предложением для инвесторов, владеющих участками с уклоном. Компактный корпус дома предлагает просторный и очень функциональный интерьер, обеспечивающий домовладельцу максимальный комфорт. Сдержанные цвета фасада, украшенного натуральной облицовкой, прекрасно вписываются в актуальные тенденции и современный дизайн. Покрытая расширенным карнизом, входная зона ведет во внутреннюю часть дома, где функциональные зоны расположены очень практично и четко. Представительная жилая зона - это общее пространство гостиной и столовой, а также кухни. Широкое остекление террасы с раздвижной системой открывания органично соединяет интерьер дома с садом и, вместе с панорамным окном в гостиной, впускает много естественного света. Размер столовой позволяет организовать вечеринку для большой компании, а крытая часть террасы подойдет в качестве уединенного кофейного уголка. Очень функционально оформленная, просторная кухня - удобное место для приготовления пищи. На первом этаже также есть ванная комната и дополнительная комната, которую можно использовать как удобный кабинет. Жильцы также имеют прямой доступ к гаражу и отдельному подсобному помещению. Ночная зона в мансарде включает четыре уютные и прекрасно освещенные комнаты, среди которых большая спальня родителей с гардеробной. Программа мансарды дополнена дополнительной гардеробной, удобной ванной комнатой и прачечной. В подвале находится котельная и два подсобных помещения. Представленный проект относится к категории: проекты современных домов.

    Похожие проекты:

    Подпишитесь на рассылку АРХОН Украина

    Подписаться на рассылку!
    Чат c консультантом