Рассылка
    Подходящие проекты: 0
    Дом в бугенвилиях (П)
    51 510 UAH

    Проект дома ARCHON+ Дом в бугенвилиях (П) Вид 1

    - 4500 UAH
    Проект дома ARCHON+ Дом в бугенвилиях (П) Вид 1 1/15
    Цена проекта:
    47 010 UAH 51 510 UAH
    Проект доступен на заказ
    ДО КОНЦА АКЦИИ ОСТАЛОСЬ ЕЩЁ

    Что входит в состав проекта?


    односемейный коттедж одноэтажный с жилой мансардой
    гараж, подвал, 6 комнат, 1 кухня, 2 ванных, кладовая, 1 котельная, прачечная, гардеробная, хозяйственное помещение


    Полезная
    площадь
    152.02 м2
    Общая
    площадь
    354.72 м2
    комнат
    6
    кухня
    1
    туалет
    0
    ванных
    2
    гараж
    1

    Внимание! Только оригинальный проект, купленный в компании «Архон Украина» и официальных дилеров, дает Вам гарантию качества и четкое руководство по строительству дома. Также Вы получаете возможность бесплатно консультироваться у наших специалистов на любом этапе строительства. Убедитесь в оригинальности проекта!

    план подвала
    Подвал 71.64 (74.73)
    1. Лестница 2.78
    2. Коридор 6.87 (9.96)
    3. Хозяйственное помещение 15.34
    4. Хозяйственное помещение 30.19
    5. Котельная 16.46
    план первого этажа
    Подобрать к своему участку
    Первый этаж 93.82
    1. Тамбур 2.95
    2. Холл 6.81
    3. Гостиная + столовая 31.26
    4. Кухня 10.77
    5. Ванная 4.97
    6. Комната 10.32
    7. Лестница 1.86
    8. Кладовая 6.55
    9. Гараж 18.33
    план мансарды
    Мансарда 76.53 (98.41)
    1. Холл и лестница 14.23 (14.23)
    2. Комната 10.12 (12.84)
    3. Ванная 9.27 (9.82)
    4. Прачечная 3.65 (5.43)
    5. Гардероб 3.05 (8.07)
    6. Комната 13.47 (16.32)
    7. Комната 13.41 (16.45)
    8. Комната 9.33 (15.25)
    Поверхности
    Полезная площадь 152.02 м2
    Площадь гаража 18.33 м2
    Площадь строительства 129.32 м2
    Площадь пола 266.96 м2
    Общая площадь 354.72 м2
    Кубатура 1032.78 м3
    Высота здания 8.41 м
    Технология и конструкция
    Стены пустотелый керамический блок 25 см, пенопласт 20 см, штукатурка.
    Конструкция наружных и внутренних стен может быть выполнена из любого материала (керамических или газобетонных блоков), с техническими параметрами не ниже тех, что указаны в проектных решениях. Изменение материалов должно быть согласовано с архитектором по адаптации.
    Перекрытие Монолитное железобетонное (отливается по месту)
    Коленная стенка 128 см
    Крыша 2-скатная, Скат 40° , Стропильная система деревянная, кровля из керамической черепицы
    Котёл на твердом топливе + как вариант, газовый
    Тёплый пол используется в следующих помещениях: Первый этаж: Тамбур (1), Кухня (4), Ванная (5); Мансарда: Ванная (3)
    Вентиляция гравитационная
    Фасад Дом в бугенвилиях (П)
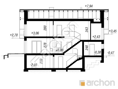
    Разрез
    Проект дома ARCHON+ Дом в бугенвилиях (П) Розріз будинку
    Контур здания
    Проект дома ARCHON+ Дом в бугенвилиях (П) Ситуація

    Если вы ищете современный, просторный дом с жилой мансардой, который можно построить как на участках с входом с юга, так и на участках на склоне, то проект "Дом в бугенвилиях (П)" определенно заслуживает внимания. Современный характер здания подчеркивается правильно подобранными деталями и способом отделки фасада. Навес над входной зоной образует расширенный карниз. Уютная гостиная, свободно соединяющаяся со столовой, и многочисленные остекления вносят в интерьер много естественного света. Отдохнуть на свежем воздухе предлагает угловая, частично крытая терраса, на которую можно попасть как из гостиной, так и из столовой. Планировка кухни, соответствующее расположение отдельных функций, большое окно гарантируют комфорт во время ежедневной работы. На кухне также много места для хранения, а дополнительное пространство предлагает кладовая, расположенная в прохладной части дома. Учитывая максимальный уровень комфорта жильцов, программа первого этажа включает в себя ванную комнату с душем и дополнительную комнату, которая идеально подходит в качестве домашнего офиса, кабинета или комнаты для гостей. Рядом с лестницей есть проход из жилой зоны в одноместный гараж. Исключительный комфорт предлагает прекрасно освещенная мансардная зона, включающая четыре комнаты, гардеробную, прачечную и большую ванную комнату. В подвале "Дома в бугенвилиях (П)" есть два подсобных помещения и просторная котельная для твердого топлива. Этот уникальный проект расширяет коллекцию: проекты современных домов, проекты домов с жилой мансардой и проекты домов с подвалом, а также проекты домов для участков с входом с юга.

    Похожие проекты:

    Подпишитесь на рассылку АРХОН Украина

    Подписаться на рассылку!
    Чат c консультантом