Рассылка
    Подходящие проекты: 0
    Дом в орегано вер.2
    51 510 UAH

    Проект дома ARCHON+ Дом в орегано вер.2 Вид 1

    - 4500 UAH
    Проект дома ARCHON+ Дом в орегано вер.2 Вид 1 1/14
    Цена проекта:
    47 010 UAH 51 510 UAH
    Проект доступен на заказ
    ДО КОНЦА АКЦИИ ОСТАЛОСЬ ЕЩЁ

    Что входит в состав проекта?


    односемейный коттедж одноэтажный с жилой мансардой
    гараж, чердак, 5 комнат, 1 кухня, 2 ванных, кладовая, 1 туалет, 1 котельная, прачечная, гардеробная


    Полезная
    площадь
    167.21 м2
    Общая
    площадь
    346.70 м2
    комнат
    5
    кухня
    1
    туалет
    1
    ванных
    2
    гараж
    2

    Внимание! Только оригинальный проект, купленный в компании «Архон Украина» и официальных дилеров, дает Вам гарантию качества и четкое руководство по строительству дома. Также Вы получаете возможность бесплатно консультироваться у наших специалистов на любом этапе строительства. Убедитесь в оригинальности проекта!

    план первого этажа
    Подобрать к своему участку
    Первый этаж 133.61 (136.40)
    1. Тамбур 4.29
    2. Холл 11.19
    3. Кухня 10.33
    4. Кладовая 1.47
    5. Гостиная + столовая 32.58
    6. Комната 13.19
    7. Ванная 4.62 (5.38)
    8. Туалет 2.62
    9. Прачечная 4.95
    10. Гараж 41.60 (43.63)
    11. Котельная 6.77
    план мансарды
    Мансарда 113.94 (133.94)
    1. Лестница 5.26 (5.26)
    2. Холл 4.26 (4.26)
    3. Хранилище 2.09 (3.29)
    4. Гардероб 4.83 (6.42)
    5. Гардероб 4.26 (5.75)
    6. Комната 16.86 (19.64)
    7. Холл 7.62 (7.62)
    8. Комната 13.76 (13.76)
    9. Комната 15.43 (18.20)
    10. Ванная 7.60 (10.05)
    11. Утеплённый чердак 17.41 (21.93)
    12. Утеплённый чердак 14.56 (17.76)
    Поверхности
    Полезная площадь 167.21 м2
    Поверхность котельной 6.77 м2
    Площадь гаража 41.6 м2
    Площадь чердака 31.97 м2
    Площадь строительства 175.42 м2
    Площадь пола 270.34 м2
    Общая площадь 346.7 м2
    Кубатура 1202.4 м3
    Высота здания 8.98 м
    Технология и конструкция
    Стены пустотелый керамический блок 25 см, пенопласт 20 см, штукатурка.
    Конструкция наружных и внутренних стен может быть выполнена из любого материала (керамических или газобетонных блоков), с техническими параметрами не ниже тех, что указаны в проектных решениях. Изменение материалов должно быть согласовано с архитектором по адаптации.
    Перекрытие Монолитное железобетонное (отливается по месту)
    Коленная стенка 116 см
    Крыша 2-скатная, Скат 40° , Стропильная система деревянная, кровля из керамической черепицы
    Котёл газовый, возможность замены котлом на твердом топливе после адаптации
    Тёплый пол используется в следующих помещениях: Первый этаж: Тамбур (1), Кухня (3), Ванная (7); Мансарда: Ванная (10)
    Вентиляция гравитационная
    Фасад Дом в орегано вер.2
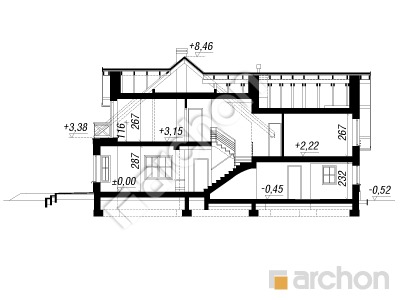
    Разрез
    Проект дома ARCHON+ Дом в орегано вер.2 Розріз будинку
    Контур здания
    Проект дома ARCHON+ Дом в орегано вер.2 Ситуація

    Впечатляющий дом на одну семью, из коллекции: проекты домов с жилой мансардой, со стильно скомпонованными фасадами и функциональным, но привлекательным пространственным решением интерьера. Через просторный вестибюль мы попадаем в холл, из которого открывается вид на открытую жилую зону. Зона отдыха в гостиной плавно соединяется с террасой и садом, а благодаря многочисленным остеклениям весь интерьер эффективно освещается естественным светом, здесь царит приятная, солнечная атмосфера. Эркер, предусмотренный в проекте, привлекательно увеличивает пространство столовой, с которой соседствует кухня. Дополнительная комната может служить спальней для гостей или пожилого человека, тем более что непосредственно рядом с ней расположена ванная комната. Просторная хозяйственная зона доступна из тамбура. Имеется прачечная, большой гараж с подсобным помещением и котельная на твердом топливе. Лестница, видимая из столовой, ведет в удобную приватную зону в мансарде. Здесь были спроектированы три просторные и прекрасно освещенные спальни, каждая из которых имеет балкон, а в спальне родителей есть своя гардеробная. В мансарде есть также общый гардероб, кладовая и чердак, который можно приспособить под жилые цели и устроить здесь две дополнительные спальни или зону отдыха, например: домашний спортзал или игровую комнату для детей. Это удобный дом для большой семьи, где открытое пространство и хорошее освещение комнат делают его привлекательным. Данный проект относится к категории: проекты домов с гаражом на две машины.

    Похожие проекты:

    Подпишитесь на рассылку АРХОН Украина

    Подписаться на рассылку!
    Чат c консультантом