Розсилка
    Відповідні проєкти: 0
    Будинок в орегано вер.2
    51 510 UAH

    Проєкт будинку ARCHON+ Будинок в орегано вер.2 Вид 1

    - 4500 UAH
    Проєкт будинку ARCHON+ Будинок в орегано вер.2 Вид 1 1/14
    Ціна проєкту:
    47 010 UAH 51 510 UAH
    Проєкт доступний на замовлення
    ДО КІНЦЯ АКЦІЇ ЗАЛИШИЛОСЯ ЩЕ

    Що входить до складу проєкту?


    односімейний котедж одноповерховий з житловою мансардою
    гараж, горище, 5 кімнат, 1 кухня, 2 ванни, комора, 1 туалет, 1 котельня, пральня, гардеробна


    Корисна
    площа
    167.21 м2
    Загальна
    площа
    346.70 м2
    кімнат
    5
    кухня
    1
    туалет
    1
    ванни
    2
    гараж
    2

    Увага! Тільки оригінальний проєкт, куплений в компанії «Архон Україна» і у офіційних дилерів, дає Вам гарантію якості і чітке керівництво над будівництвом будинку. Також Ви отримуєте можливість безкоштовно консультуватися у наших фахівців на будь-якому етапі будівництва. Переконайтеся в оригінальності проєкту!

    План першого поверху
    Допасуйте до своєї ділянки
    Перший поверх 133.61 (136.40)
    1. Тамбур 4.29
    2. Хол 11.19
    3. Кухня 10.33
    4. Комора 1.47
    5. Вітальня + їдальня 32.58
    6. Кімната 13.19
    7. Ванна кімната 4.62 (5.38)
    8. Туалет 2.62
    9. Пральня 4.95
    10. Гараж 41.60 (43.63)
    11. Котельня 6.77
    План мансарди
    Мансарда 113.94 (133.94)
    1. Сходи 5.26 (5.26)
    2. Хол 4.26 (4.26)
    3. Сховище 2.09 (3.29)
    4. Гардероб 4.83 (6.42)
    5. Гардероб 4.26 (5.75)
    6. Кімната 16.86 (19.64)
    7. Хол 7.62 (7.62)
    8. Кімната 13.76 (13.76)
    9. Кімната 15.43 (18.20)
    10. Ванна кімната 7.60 (10.05)
    11. Утеплене горище 17.41 (21.93)
    12. Утеплене горище 14.56 (17.76)
    Поверхні
    Корисна площа 167.21 м2
    Поверхня котельні 6.77 м2
    Площа гаража 41.6 м2
    Площа горища 31.97 м2
    Площа будівництва 175.42 м2
    Площа підлоги 270.34 м2
    Загальна площа 346.7 м2
    Кубатура 1202.4 м3
    Висота будинку 8.98 м
    Технологія і конструкція
    Стіни пустотілий керамічний блок 25 см, пінопласт 20 см, штукатурка.
    Конструкція зовнішніх і внутрішніх стін може бути виконана з будь-якого матеріалу (керамічних або газобетонних блоків), з технічними параметрами не нижчими за ті, що зазначені в проєктних рішеннях. Зміна матеріалів має бути узгоджена з адаптаційним архітектором.
    Перекриття Монолітне залізобетонне (відливається за місцем)
    Колінна стінка 116 см
    Дах 2-скатний, Схил 40° , Кроквяна система дерев'яна, покрівля з керамічної черепиці
    Котел газовий, можливість заміни котлом на твердому паливі після адаптації
    Тепла підлога використовується в таких приміщеннях: Перший поверх: Тамбур (1), Кухня (3), Ванна кімната (7); Мансарда: Ванна кімната (10)
    Вентиляція гравітаційна
    Фасад Будинок в орегано вер.2
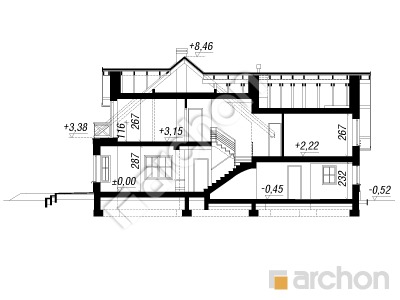
    Розріз
    Проєкт будинку ARCHON+ Будинок в орегано вер.2 Розріз будинку
    Контур будівлі
    Проєкт будинку ARCHON+ Будинок в орегано вер.2 Ситуація

    Вражаючий будинок на одну сім'ю з колекції: проєкти будинків з житловою мансардою, зі стильно скомпонованими фасадами та функціональним, але привабливим просторовим рішенням інтер'єру. Через просторий вестибюль ми потрапляємо до холу, з якого відкривається вид на відкриту житлову зону. Зона відпочинку у вітальні плавно сполучається з терасою та садом, а завдяки численним склінням весь інтер'єр ефективно висвітлюється природним світлом, тут панує приємна, сонячна атмосфера. Еркер, передбачений у проєкті, привабливо збільшує простір їдальні, з якою сусідить кухня. Додаткова кімната може бути спальнею для гостей або літньої людину, тим більше, що безпосередньо поруч з нею розташована ванна кімната. Простора господарська зона доступна із тамбуру. Є пральня, великий гараж із підсобним приміщенням та котельня на твердому паливі. Сходи, видимі із їдальні, ведуть у зручну приватну зону в мансарді. Тут були спроєктовані три просторі та чудово освітлені спальні, кожна з яких має балкон, а в спальні батьків є своя вбиральня. У мансарді є також спільний гардероб, комора та горище, який можна пристосувати під житлові цілі та влаштувати тут дві додаткові спальні або зону відпочинку, наприклад: домашній спортзал або ігрова кімната для дітей. Це зручний будинок для великої родини, де відкритий простір та гарне освітлення кімнат роблять його привабливим. Даний проєкт відноситься до категорії: проєкти будинків з гаражем на дві машини.

    Подібні проєкти:

    Підпишіться на розсилку АРХОН Україна

    Підписатися на розсилку!
    Чат з консультантом