Рассылка
    Подходящие проекты: 0
    Дом в вербене 2 (Г2)
    46 020 UAH

    Проект дома ARCHON+ Дом в вербене 2 (Г2) Вид 1

    - 4500 UAH
    Проект дома ARCHON+ Дом в вербене 2 (Г2) Вид 1 1/14
    Цена проекта:
    41 520 UAH 46 020 UAH
    Проект доступен на заказ
    ДО КОНЦА АКЦИИ ОСТАЛОСЬ ЕЩЁ

    Что входит в состав проекта?


    односемейный коттедж одноэтажный с жилой мансардой
    гараж, чердак, 5 комнат, 1 кухня, 2 ванных, 1 котельная, прачечная, гардеробная, хозяйственное помещение


    Полезная
    площадь
    124.16 м2
    Общая
    площадь
    261.74 м2
    комнат
    5
    кухня
    1
    туалет
    0
    ванных
    2
    гараж
    2

    Внимание! Только оригинальный проект, купленный в компании «Архон Украина» и официальных дилеров, дает Вам гарантию качества и четкое руководство по строительству дома. Также Вы получаете возможность бесплатно консультироваться у наших специалистов на любом этапе строительства. Убедитесь в оригинальности проекта!

    план первого этажа
    Подобрать к своему участку
    Первый этаж 98.16 (99.76)
    1. Тамбур 2.72
    2. Холл 6.36
    3. Кухня 9.03
    4. Гостиная 26.04
    5. Ванная 2.44
    6. Котельная 4.88
    7. Коридор 2.72 (4.32)
    8. Комната 9.04
    9. Гараж 34.93
    план мансарды
    Мансарда 82.11 (95.90)
    1. Лестница 4.33 (4.33)
    2. Холл 5.96 (5.96)
    3. Ванная 6.18 (8.30)
    4. Комната 14.62 (16.74)
    5. Комната 11.89 (14.00)
    6. Комната 9.66 (10.92)
    7. Гардероб 2.48 (3.25)
    8. Хозяйственное помещение 7.75 (9.18)
    9. Прачечная 2.94 (5.58)
    10. Утеплённый чердак 16.30 (17.64)
    Поверхности
    Полезная площадь 124.16 м2
    Поверхность котельной 4.88 м2
    Площадь гаража 34.93 м2
    Площадь чердака 16.3 м2
    Площадь строительства 132.49 м2
    Площадь пола 195.66 м2
    Общая площадь 261.74 м2
    Кубатура 864.5 м3
    Высота здания 8.68 м
    Технология и конструкция
    Стены пустотелый керамический блок 25 см, пенопласт 20 см, штукатурка.
    Конструкция наружных и внутренних стен может быть выполнена из любого материала (керамических или газобетонных блоков), с техническими параметрами не ниже тех, что указаны в проектных решениях. Изменение материалов должно быть согласовано с архитектором по адаптации.
    Перекрытие Монолитное железобетонное (отливается по месту)
    Коленная стенка 123 см
    Крыша 2-скатная, Скат 42° , Стропильная система деревянная, кровля из керамической черепицы
    Котёл на твердом топливе + как вариант, газовый
    Тёплый пол используется в следующих помещениях: Первый этаж: Тамбур (1), Кухня (3); Мансарда: Ванная (3)
    Вентиляция гравитационная
    Фасад Дом в вербене 2 (Г2)
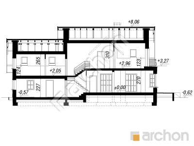
    Разрез
    Проект дома ARCHON+ Дом в вербене 2 (Г2) Розріз будинку
    Контур здания
    Проект дома ARCHON+ Дом в вербене 2 (Г2) Ситуація
    Похожие проекты:

    Подпишитесь на рассылку АРХОН Украина

    Подписаться на рассылку!
    Чат c консультантом