Розсилка
    Відповідні проєкти: 0
    Будинок в бугенвіліях (П)
    51 510 UAH

    Проєкт будинку ARCHON+ Будинок в бугенвіліях (П) Вид 1

    - 4500 UAH
    Проєкт будинку ARCHON+ Будинок в бугенвіліях (П) Вид 1 1/15
    Ціна проєкту:
    47 010 UAH 51 510 UAH
    Проєкт доступний на замовлення
    ДО КІНЦЯ АКЦІЇ ЗАЛИШИЛОСЯ ЩЕ

    Що входить до складу проєкту?


    односімейний котедж одноповерховий з житловою мансардою
    гараж, підвал, 6 кімнат, 1 кухня, 2 ванни, комора, 1 котельня, пральня, гардеробна, господарське приміщення


    Корисна
    площа
    152.02 м2
    Загальна
    площа
    354.72 м2
    кімнат
    6
    кухня
    1
    туалет
    0
    ванни
    2
    гараж
    1

    Увага! Тільки оригінальний проєкт, куплений в компанії «Архон Україна» і у офіційних дилерів, дає Вам гарантію якості і чітке керівництво над будівництвом будинку. Також Ви отримуєте можливість безкоштовно консультуватися у наших фахівців на будь-якому етапі будівництва. Переконайтеся в оригінальності проєкту!

    План підвалу
    Підвал 71.64 (74.73)
    1. Сходи 2.78
    2. Коридор 6.87 (9.96)
    3. Господарське приміщення 15.34
    4. Господарське приміщення 30.19
    5. Котельня 16.46
    План першого поверху
    Допасуйте до своєї ділянки
    Перший поверх 93.82
    1. Тамбур 2.95
    2. Хол 6.81
    3. Вітальня + їдальня 31.26
    4. Кухня 10.77
    5. Ванна кімната 4.97
    6. Кімната 10.32
    7. Сходи 1.86
    8. Комора 6.55
    9. Гараж 18.33
    План мансарди
    Мансарда 76.53 (98.41)
    1. Хол і сходи 14.23 (14.23)
    2. Кімната 10.12 (12.84)
    3. Ванна кімната 9.27 (9.82)
    4. Пральня 3.65 (5.43)
    5. Гардероб 3.05 (8.07)
    6. Кімната 13.47 (16.32)
    7. Кімната 13.41 (16.45)
    8. Кімната 9.33 (15.25)
    Поверхні
    Корисна площа 152.02 м2
    Площа гаража 18.33 м2
    Площа будівництва 129.32 м2
    Площа підлоги 266.96 м2
    Загальна площа 354.72 м2
    Кубатура 1032.78 м3
    Висота будинку 8.41 м
    Технологія і конструкція
    Стіни пустотілий керамічний блок 25 см, пінопласт 20 см, штукатурка.
    Конструкція зовнішніх і внутрішніх стін може бути виконана з будь-якого матеріалу (керамічних або газобетонних блоків), з технічними параметрами не нижчими за ті, що зазначені в проєктних рішеннях. Зміна матеріалів має бути узгоджена з адаптаційним архітектором.
    Перекриття Монолітне залізобетонне (відливається за місцем)
    Колінна стінка 128 см
    Дах 2-скатний, Схил 40° , Кроквяна система дерев'яна, покрівля з керамічної черепиці
    Котел на твердому паливі + як варіант, газовий
    Тепла підлога використовується в таких приміщеннях: Перший поверх: Тамбур (1), Кухня (4), Ванна кімната (5); Мансарда: Ванна кімната (3)
    Вентиляція гравітаційна
    Фасад Будинок в бугенвіліях (П)
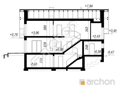
    Розріз
    Проєкт будинку ARCHON+ Будинок в бугенвіліях (П) Розріз будинку
    Контур будівлі
    Проєкт будинку ARCHON+ Будинок в бугенвіліях (П) Ситуація

    Якщо ви шукаєте сучасний, просторий будинок з житловою мансардою, який можна побудувати як на ділянках з входом з півдня, так і на ділянках на схилі, то проєкт "Будинок у бугенвіліях (П)" напевно заслуговує на увагу. Сучасний характер будівлі підкреслюється правильно підібраними деталями та способом оздоблення фасаду. Навіс над вхідною зоною утворює розширений карниз. Затишна вітальня, що вільно з'єднується зі їдальнею, і численні скління вносять в інтер'єр багато природного світла. Відпочити на свіжому повітрі пропонує кутова, частково крита тераса, на яку можна потрапити як із вітальні, так і зі їдальні. Планування кухні, відповідне розташування окремих функцій, велике вікно гарантує комфорт під час щоденної роботи. На кухні також є багато місця для зберігання, а додатковий простір пропонує комора, розташована в прохолодній частині будинку. Враховуючи максимальний рівень комфорту мешканців, програма першого поверху включає ванну кімнату з душем і додаткову кімнату, яка ідеально підходить в якості домашнього офісу, кабінету або кімнати для гостей. Поруч із сходами є прохід із житлової зони в одномісний гараж. Винятковий комфорт пропонує чудово освітлена мансардна зона, що включає чотири кімнати, гардеробну, пральню та велику ванну кімнату. У підвалі "Будинки в бугенвіліях (П)" є два підсобні приміщення та простора котельня для твердого палива. Цей унікальний проєкт розширює колекцію: проєкти сучасних будинків, проєкти будинків із житловою мансардою та проєкти будинків із підвалом, а також проєкти будинків для ділянок із входом із півдня.

    Подібні проєкти:

    Підпишіться на розсилку АРХОН Україна

    Підписатися на розсилку!
    Чат з консультантом