Рассылка
    Подходящие проекты: 0
    Дом в айдаредах 6 (Г2)
    46 020 UAH

    Проект дома ARCHON+ Дом в айдаредах 6 (Г2) Вид 1

    - 3500 UAH
    Проект дома ARCHON+ Дом в айдаредах 6 (Г2) Вид 1 1/15
    Цена проекта:
    42 520 UAH 46 020 UAH
    Проект доступен на заказ
    ДО КОНЦА АКЦИИ ОСТАЛОСЬ ЕЩЁ

    Что входит в состав проекта?


    односемейный коттедж одноэтажный с жилой мансардой
    гараж, 5 комнат, 1 кухня, 2 ванных, кладовая, 1 котельная, прачечная


    Полезная
    площадь
    145.18 м2
    Общая
    площадь
    286.38 м2
    комнат
    5
    кухня
    1
    туалет
    0
    ванных
    2
    гараж
    2

    Внимание! Только оригинальный проект, купленный в компании «Архон Украина» и официальных дилеров, дает Вам гарантию качества и четкое руководство по строительству дома. Также Вы получаете возможность бесплатно консультироваться у наших специалистов на любом этапе строительства. Убедитесь в оригинальности проекта!

    план первого этажа
    Подобрать к своему участку
    Первый этаж 121.65 (123.32)
    1. Тамбур 7.22
    2. Холл 4.21
    3. Гостиная + столовая 35.33
    4. Кухня 11.51
    5. Кладовая 2.39
    6. Ванная 3.31 (4.98)
    7. Котельная 16.44
    8. Гараж 41.24
    план мансарды
    Мансарда 81.21 (97.74)
    1. Лестница 6.75 (6.75)
    2. Комната 12.86 (13.80)
    3. Комната 11.62 (16.76)
    4. Холл 7.29 (7.29)
    5. Прачечная 6.12 (8.54)
    6. Комната 11.59 (14.40)
    7. Комната 15.76 (18.55)
    8. Ванная 9.22 (11.65)
    Поверхности
    Полезная площадь 145.18 м2
    Поверхность котельной 16.44 м2
    Площадь гаража 41.24 м2
    Площадь строительства 158.37 м2
    Площадь пола 221.06 м2
    Общая площадь 286.38 м2
    Кубатура 975.03 м3
    Высота здания 8.57 м
    Технология и конструкция
    Стены пустотелый керамический блок 25 см, пенопласт 20 см, штукатурка.
    Конструкция наружных и внутренних стен может быть выполнена из любого материала (керамических или газобетонных блоков), с техническими параметрами не ниже тех, что указаны в проектных решениях. Изменение материалов должно быть согласовано с архитектором по адаптации.
    Перекрытие Монолитное железобетонное (отливается по месту)
    Коленная стенка 127 см
    Крыша 2-скатная, Скат 40° , Стропильная система деревянная, кровля из керамической черепицы
    Котёл на твердом топливе + как вариант, газовый
    Тёплый пол используется в следующих помещениях: Первый этаж: Тамбур (1), Кухня (4), Ванная (6); Мансарда: Ванная (8)
    Вентиляция гравитационная
    Фасад Дом в айдаредах 6 (Г2)
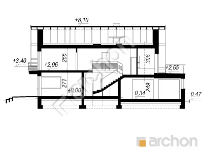
    Разрез
    Проект дома ARCHON+ Дом в айдаредах 6 (Г2) Розріз будинку
    Контур здания
    Проект дома ARCHON+ Дом в айдаредах 6 (Г2) Ситуація

    Комфортабельный дом с гаражом на две машины, отсылающий по своей форме к современным архитектурным тенденциям. Дизайн дома сочетает в себе экономичные решения и современные архитектурные детали. Гостиная открытой планировки, спроектированная в форме буквы L, занимает почти весь первый этаж; представительная гостиная с камином и телевизором, просторная кухня с большим количеством столешниц и столовая. В летние дни крытая терраса может служить обеденной зоной. Кухня оборудована кладовой, расположенной в холодной зоне дома - рядом с котельной. Проекты домов с боковым расположением гостиной и освещением ее с трех сторон позволяют дольше наслаждаться солнцем. Мансарда с высокой коленной стеной отлично использовала пространство. Были спроектированы четыре комфортабельные комнаты, а также ванная, прачечная и гардеробные. Компактный корпус здания был покрыт простой крышей, что позволило снизить как стоимость реализации, так и эксплуатации дома.

    Реализации проекта Дом в айдаредах 6 (Г2)
    Похожие проекты:

    Подпишитесь на рассылку АРХОН Украина

    Подписаться на рассылку!
    Чат c консультантом