Рассылка
    Подходящие проекты: 0
    Дом в каллах 2 (Г2) вер.2
    51 510 UAH

    Проект дома ARCHON+ Дом в каллах 2 (Г2) вер.2 Вид 1

    - 4500 UAH
    Проект дома ARCHON+ Дом в каллах 2 (Г2) вер.2 Вид 1 1/14
    Цена проекта:
    47 010 UAH 51 510 UAH
    Проект доступен на заказ
    ДО КОНЦА АКЦИИ ОСТАЛОСЬ ЕЩЁ

    Что входит в состав проекта?


    односемейный коттедж одноэтажный с жилой мансардой
    гараж, 7 комнат, 1 кухня, 2 ванных, кладовая, 1 котельная, прачечная, гардеробная


    Полезная
    площадь
    201.83 м2
    Общая
    площадь
    343.38 м2
    комнат
    7
    кухня
    1
    туалет
    0
    ванных
    2
    гараж
    2

    Внимание! Только оригинальный проект, купленный в компании «Архон Украина» и официальных дилеров, дает Вам гарантию качества и четкое руководство по строительству дома. Также Вы получаете возможность бесплатно консультироваться у наших специалистов на любом этапе строительства. Убедитесь в оригинальности проекта!

    план первого этажа
    Подобрать к своему участку
    Первый этаж 131.61 (133.84)
    1. Тамбур 3.10
    2. Кладовая 1.57
    3. Кухня 12.22
    4. Гостиная + столовая 35.63
    5. Комната 12.31
    6. Холл 9.57
    7. Гардероб 1.99
    8. Прачечная 3.48
    9. Ванная 2.71
    10. Коридор 3.12 (5.35)
    11. Гараж 34.77
    12. Котельная с прачечной 11.14
    план мансарды
    Мансарда 116.13 (133.47)
    1. Лестница 5.22 (5.22)
    2. Холл 8.27 (8.27)
    3. Комната 14.66 (16.73)
    4. Комната 14.17 (15.19)
    5. Гардероб 4.80 (5.84)
    6. Комната 29.03 (33.66)
    7. Гардероб 3.99 (6.24)
    8. Гардероб 4.00 (6.26)
    9. Ванная 8.85 (10.93)
    10. Комната 9.12 (9.12)
    11. Комната 14.02 (16.01)
    Поверхности
    Полезная площадь 201.83 м2
    Поверхность котельной 11.14 м2
    Площадь гаража 34.77 м2
    Площадь строительства 173.66 м2
    Площадь пола 267.31 м2
    Общая площадь 343.38 м2
    Кубатура 1208.73 м3
    Высота здания 9.36 м
    Технология и конструкция
    Стены пустотелый керамический блок 25 см, пенопласт 20 см, штукатурка.
    Конструкция наружных и внутренних стен может быть выполнена из любого материала (керамических или газобетонных блоков), с техническими параметрами не ниже тех, что указаны в проектных решениях. Изменение материалов должно быть согласовано с архитектором по адаптации.
    Перекрытие Монолитное железобетонное (отливается по месту)
    Коленная стенка 122 см
    Крыша 2-скатная, Скат 42° , Стропильная система деревянная, кровля из керамической черепицы
    Котёл газовый, возможность замены котлом на твердом топливе после адаптации
    Тёплый пол используется в следующих помещениях: Первый этаж: Тамбур (1), Кухня (3), Гардероб (7); Мансарда: Ванная (9)
    Вентиляция гравитационная
    Фасад Дом в каллах 2 (Г2) вер.2
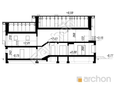
    Разрез
    Проект дома ARCHON+ Дом в каллах 2 (Г2) вер.2 Розріз будинку
    Контур здания
    Проект дома ARCHON+ Дом в каллах 2 (Г2) вер.2 Ситуація

    Дом предназначен для людей, которые ценят традиционный стиль и функциональную планировку интерьера. Фасад спроектирован с учетом стиля усадьбы. Вход в здание накрыт балконом, опирающимся на колонны и увенчан большой слуховой люкарней. Богатая функциональная программа гарантирует комфорт всех проживающих. На первом этаже, расположенном на солнечной стороне, крыло здания предназначено для жилой зоны. Преимущество этой зоны - открытые гостиная и кухня с просторным стеклянным эркером в боковой стене, что прекрасно организовало пространство большой столовой и создало дальний взгляд с перспективой на сад. Мансарда запроектирована продуманно и с максимальным использованием пространства. Спальня хозяев расположена над гаражом в мезонине, а выше находятся комнаты для детей, студия и комната для гостей с гардеробом. Просторный дом, где несложная форма здания идет рука об руку с практичными и выразительными деталями. Простые цвета, отказ от лишних элементов и изысканное сочетание фасадных материалов еще более подчеркивают его характер.

    Реализации проекта Дом в каллах 2 (Г2) вер.2
    Похожие проекты:

    Подпишитесь на рассылку АРХОН Украина

    Подписаться на рассылку!
    Чат c консультантом