Рассылка
    Подходящие проекты: 0
    Дом в каллах 2 вер.2
    46 020 UAH

    Проект дома ARCHON+ Дом в каллах 2 вер.2 Вид 1

    - 3500 UAH
    Проект дома ARCHON+ Дом в каллах 2 вер.2 Вид 1 1/10
    Цена проекта:
    42 520 UAH 46 020 UAH
    Проект доступен на заказ
    ДО КОНЦА АКЦИИ ОСТАЛОСЬ ЕЩЁ

    Что входит в состав проекта?


    односемейный коттедж одноэтажный с жилой мансардой
    гараж, 7 комнат, 1 кухня, 2 ванных, кладовая, 1 котельная, прачечная, гардеробная


    Полезная
    площадь
    184.21 м2
    Общая
    площадь
    294.87 м2
    комнат
    7
    кухня
    1
    туалет
    0
    ванных
    2
    гараж
    1

    Внимание! Только оригинальный проект, купленный в компании «Архон Украина» и официальных дилеров, дает Вам гарантию качества и четкое руководство по строительству дома. Также Вы получаете возможность бесплатно консультироваться у наших специалистов на любом этапе строительства. Убедитесь в оригинальности проекта!

    план первого этажа
    Подобрать к своему участку
    Первый этаж 111.08 (113.31)
    1. Тамбур 3.45
    2. Кладовая 1.57
    3. Кухня 12.22
    4. Гостиная + столовая 35.63
    5. Комната 12.31
    6. Холл 9.57
    7. Гардероб 2.18
    8. Прачечная 3.48
    9. Ванная 2.68
    10. Коридор 3.12 (5.35)
    11. Гараж 18.53
    12. Котельная 6.34
    план мансарды
    Мансарда 98.00 (112.70)
    1. Лестница 5.22 (5.22)
    2. Холл 8.27 (8.27)
    3. Комната 14.30 (16.71)
    4. Комната 14.00 (15.19)
    5. Гардероб 4.62 (5.84)
    6. Комната 15.85 (18.37)
    7. Гардероб 4.46 (6.98)
    8. Ванная 8.56 (10.99)
    9. Комната 9.04 (9.12)
    10. Комната 13.68 (16.01)
    Поверхности
    Полезная площадь 184.21 м2
    Поверхность котельной 6.34 м2
    Площадь гаража 18.53 м2
    Площадь строительства 149.41 м2
    Площадь пола 226.01 м2
    Общая площадь 294.87 м2
    Кубатура 1060.29 м3
    Высота здания 9.36 м
    Технология и конструкция
    Стены пустотелый керамический блок 25 см, пенопласт 20 см, штукатурка.
    Конструкция наружных и внутренних стен может быть выполнена из любого материала (керамических или газобетонных блоков), с техническими параметрами не ниже тех, что указаны в проектных решениях. Изменение материалов должно быть согласовано с архитектором по адаптации.
    Перекрытие Монолитное железобетонное (отливается по месту)
    Коленная стенка 122 см
    Крыша 2-скатная, Скат 42° , Стропильная система деревянная, кровля из керамической черепицы
    Котёл газовый, возможность замены котлом на твердом топливе после адаптации
    Тёплый пол используется в следующих помещениях: Первый этаж: Тамбур (1), Кухня (3), Гардероб (7); Мансарда: Ванная (8)
    Вентиляция гравитационная
    Фасад Дом в каллах 2 вер.2
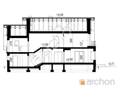
    Разрез
    Проект дома ARCHON+ Дом в каллах 2 вер.2 Розріз будинку
    Контур здания
    Проект дома ARCHON+ Дом в каллах 2 вер.2 Ситуація

    Комфортный проект дома, эффектное решение корпуса которого гармонично сочетается с функциональной планировкой помещений. Прикладные архитектурные детали подчеркивают традиционную отделку фасада. Первый этаж - это светлая и просторная жилая зона, которая состоит из большой гостиной, соединенной со столовой стеклянным эркером, и открытой кухни. Большое количество рабочих поверхностей, кладовая и практичная барная стойка - вот его главные достоинства. Многочисленные остекления привлекательно соединяют гостиную с садом и красиво освещают её. Дополнительная комната может служить в качестве кабинета. Подсобная зона включает в себя гараж, доступный из отдельного коридора, и котельную с собственным внешним выходом. Программа первого этажа дополнена прачечной, ванной комнатой и гардеробной. Мансарда представляет собой приватную зону для жильцов - четыре спальни с балконами, кабинет, удобная ванная комната и две гардеробные.

    Похожие проекты:

    Подпишитесь на рассылку АРХОН Украина

    Подписаться на рассылку!
    Чат c консультантом