Рассылка
    Подходящие проекты: 0
    Дом в каллах 5 (Г2Н)
    51 510 UAH

    Проект дома ARCHON+ Дом в каллах 5 (Г2Н) Вид 1

    - 3500 UAH
    Проект дома ARCHON+ Дом в каллах 5 (Г2Н) Вид 1 1/10
    Цена проекта:
    48 010 UAH 51 510 UAH
    Проект доступен на заказ
    ДО КОНЦА АКЦИИ ОСТАЛОСЬ ЕЩЁ

    Что входит в состав проекта?


    односемейный коттедж одноэтажный с жилой мансардой
    гараж, 6 комнат, 1 кухня, 3 ванных, кладовая, 1 котельная, прачечная, гардеробная


    Полезная
    площадь
    221.31 м2
    Общая
    площадь
    397.56 м2
    комнат
    6
    кухня
    1
    туалет
    0
    ванных
    3
    гараж
    2

    Внимание! Только оригинальный проект, купленный в компании «Архон Украина» и официальных дилеров, дает Вам гарантию качества и четкое руководство по строительству дома. Также Вы получаете возможность бесплатно консультироваться у наших специалистов на любом этапе строительства. Убедитесь в оригинальности проекта!

    план первого этажа
    Подобрать к своему участку
    Первый этаж 156.00 (158.14)
    1. Тамбур 6.96
    2. Холл 3.86
    3. Ванная 6.92
    4. Прачечная 9.34 (11.48)
    5. Гараж 33.01
    6. Котельная 12.45
    7. Кабинет 17.57
    8. Гостиная + столовая 49.90
    9. Кухня 13.89
    10. Кладовая 2.10
    план мансарды
    Мансарда 110.77 (156.11)
    1. Лестница 6.89
    2. Комната 16.84 (26.87)
    3. Гардероб 2.63 (8.49)
    4. Ванная 3.70 (7.39)
    5. Холл 9.48 (9.48)
    6. Комната 16.43 (17.98)
    7. Гардероб 6.12 (11.88)
    8. Гардероб 3.12 (3.12)
    9. Комната 19.40 (25.14)
    10. Комната 15.86 (17.86)
    11. Гардероб 3.40 (7.81)
    12. Ванная 6.90 (13.20)
    Поверхности
    Полезная площадь 221.31 м2
    Поверхность котельной 12.45 м2
    Площадь гаража 33.01 м2
    Площадь строительства 203.07 м2
    Площадь пола 314.25 м2
    Общая площадь 397.56 м2
    Кубатура 1282.1 м3
    Высота здания 9.03 м
    Технология и конструкция
    Стены пустотелый керамический блок 25 см, пенопласт 20 см, штукатурка.
    Конструкция наружных и внутренних стен может быть выполнена из любого материала (керамических или газобетонных блоков), с техническими параметрами не ниже тех, что указаны в проектных решениях. Изменение материалов должно быть согласовано с архитектором по адаптации.
    Перекрытие Монолитное железобетонное (отливается по месту)
    Коленная стенка 100 см
    Крыша 4-скатная, Скат 38° , Стропильная система деревянная, кровля из керамической черепицы
    Котёл на твердом топливе + как вариант, газовый
    Тёплый пол используется в следующих помещениях: Первый этаж: Тамбур (1), Ванная (3), Кухня (9); Мансарда: Ванная (4), Ванная (12)
    Вентиляция гравитационная
    Фасад Дом в каллах 5 (Г2Н)
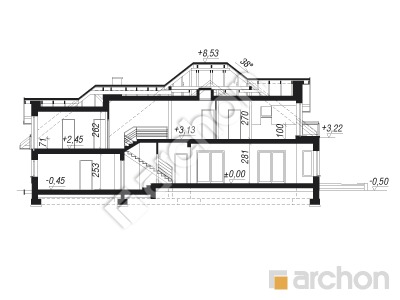
    Разрез
    Проект дома ARCHON+ Дом в каллах 5 (Г2Н) Розріз будинку
    Контур здания
    Проект дома ARCHON+ Дом в каллах 5 (Г2Н) Ситуація

    Проект функционального дома с классическим корпусом и эффектно отделанным фасадом. Аркада над входом подчеркивается привлекательной. Жилая зона состоит из просторной гостиной с удобной зоной отдыха перед домашним кинотеатром и камином, столовой в застекленном эркере и открытой кухни с кладовой. Дополнительная комната может быть успешно использована в качестве кабинета или библиотеки. Из прихожей можно попасть в хозяйственную зону - прачечную, просторный гараж и котельную на твердом топливе с отдельным выходом и местом для хранения топлива. Двойная лестница ведет в частную мансардную зону. Здесь была спроектирована впечатляющая родительская спальня с собственной ванной комнатой и гардеробной, три спальни с гардеробными и удобной ванной комнатой. Все эти комнаты исключительно удачно расположены и хорошо освещены. Представленный проект относится к коллекции: проекты современных домов.

    Похожие проекты:

    Подпишитесь на рассылку АРХОН Украина

    Подписаться на рассылку!
    Чат c консультантом