Рассылка
    Подходящие проекты: 0
    Дом в филодендронах 3
    39 480 UAH

    Проект дома ARCHON+ Дом в филодендронах 3 Вид 1

    - 3500 UAH
    Проект дома ARCHON+ Дом в филодендронах 3 Вид 1 1/13
    Цена проекта:
    35 980 UAH 39 480 UAH
    Проект доступен на заказ
    ДО КОНЦА АКЦИИ ОСТАЛОСЬ ЕЩЁ

    Что входит в состав проекта?


    односемейный коттедж одноэтажный с жилой мансардой
    5 комнат, 1 кухня, 2 ванных, кладовая, 1 котельная, прачечная, гардеробная


    Полезная
    площадь
    124.33 м2
    Общая
    площадь
    199.57 м2
    комнат
    5
    кухня
    1
    туалет
    0
    ванных
    2

    Внимание! Только оригинальный проект, купленный в компании «Архон Украина» и официальных дилеров, дает Вам гарантию качества и четкое руководство по строительству дома. Также Вы получаете возможность бесплатно консультироваться у наших специалистов на любом этапе строительства. Убедитесь в оригинальности проекта!

    план первого этажа
    Подобрать к своему участку
    Первый этаж 77.08 (77.88)
    1. Тамбур 4.07
    2. Холл 5.34
    3. Кухня 9.84
    4. Кладовая 1.46
    5. Гостиная 29.04
    6. Комната 11.03
    7. Лестница 4.80
    8. Ванная 4.16 (4.96)
    9. Котельная 7.34
    план мансарды
    Мансарда 54.59 (68.36)
    1. Холл 7.15
    2. Ванная 6.14 (11.54)
    3. Комната 14.08 (16.91)
    4. Гардероб 3.24 (3.24)
    5. Комната 9.77 (12.21)
    6. Прачечная 3.53 (4.95)
    7. Комната 10.68 (12.36)
    Поверхности
    Полезная площадь 124.33 м2
    Поверхность котельной 7.34 м2
    Площадь строительства 101.76 м2
    Площадь пола 146.24 м2
    Общая площадь 199.57 м2
    Кубатура 668.97 м3
    Высота здания 8.66 м
    Технология и конструкция
    Стены пустотелый керамический блок 25 см, пенопласт 20 см, штукатурка.
    Конструкция наружных и внутренних стен может быть выполнена из любого материала (керамических или газобетонных блоков), с техническими параметрами не ниже тех, что указаны в проектных решениях. Изменение материалов должно быть согласовано с архитектором по адаптации.
    Перекрытие Монолитное железобетонное (отливается по месту)
    Коленная стенка 110 см
    Крыша 2-скатная, Скат 40° , Стропильная система деревянная, кровля из керамической черепицы
    Котёл газовый, возможность замены котлом на твердом топливе после адаптации
    Тёплый пол используется во всех жилых помещениях
    Вентиляция гравитационная
    Фасад Дом в филодендронах 3
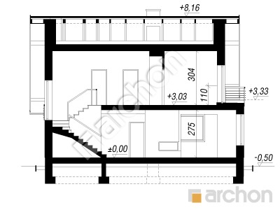
    Разрез
    Проект дома ARCHON+ Дом в филодендронах 3 Розріз будинку
    Контур здания
    Проект дома ARCHON+ Дом в филодендронах 3 Ситуація
    Похожие проекты:

    Подпишитесь на рассылку АРХОН Украина

    Подписаться на рассылку!
    Чат c консультантом