Розсилка
    Відповідні проєкти: 0
    Будинок в каллах 2 вер.2
    46 020 UAH

    Проєкт будинку ARCHON+ Будинок в каллах 2 вер.2 Вид 1

    - 4000 UAH
    Проєкт будинку ARCHON+ Будинок в каллах 2 вер.2 Вид 1 1/10
    Ціна проєкту:
    42 020 UAH 46 020 UAH
    Проєкт доступний на замовлення
    ДО КІНЦЯ АКЦІЇ ЗАЛИШИЛОСЯ ЩЕ

    Що входить до складу проєкту?


    односімейний котедж одноповерховий з житловою мансардою
    гараж, 7 кімнат, 1 кухня, 2 ванни, комора, 1 котельня, пральня, гардеробна


    Корисна
    площа
    184.21 м2
    Загальна
    площа
    294.87 м2
    кімнат
    7
    кухня
    1
    туалет
    0
    ванни
    2
    гараж
    1

    Увага! Тільки оригінальний проєкт, куплений в компанії «Архон Україна» і у офіційних дилерів, дає Вам гарантію якості і чітке керівництво над будівництвом будинку. Також Ви отримуєте можливість безкоштовно консультуватися у наших фахівців на будь-якому етапі будівництва. Переконайтеся в оригінальності проєкту!

    План першого поверху
    Допасуйте до своєї ділянки
    Перший поверх 111.08 (113.31)
    1. Тамбур 3.45
    2. Комора 1.57
    3. Кухня 12.22
    4. Вітальня + їдальня 35.63
    5. Кімната 12.31
    6. Хол 9.57
    7. Гардероб 2.18
    8. Пральня 3.48
    9. Ванна кімната 2.68
    10. Коридор 3.12 (5.35)
    11. Гараж 18.53
    12. Котельня 6.34
    План мансарди
    Мансарда 98.00 (112.70)
    1. Сходи 5.22 (5.22)
    2. Хол 8.27 (8.27)
    3. Кімната 14.30 (16.71)
    4. Кімната 14.00 (15.19)
    5. Гардероб 4.62 (5.84)
    6. Кімната 15.85 (18.37)
    7. Гардероб 4.46 (6.98)
    8. Ванна кімната 8.56 (10.99)
    9. Кімната 9.04 (9.12)
    10. Кімната 13.68 (16.01)
    Поверхні
    Корисна площа 184.21 м2
    Поверхня котельні 6.34 м2
    Площа гаража 18.53 м2
    Площа будівництва 149.41 м2
    Площа підлоги 226.01 м2
    Загальна площа 294.87 м2
    Кубатура 1060.29 м3
    Висота будинку 9.36 м
    Технологія і конструкція
    Стіни пустотілий керамічний блок 25 см, пінопласт 20 см, штукатурка.
    Конструкція зовнішніх і внутрішніх стін може бути виконана з будь-якого матеріалу (керамічних або газобетонних блоків), з технічними параметрами не нижчими за ті, що зазначені в проєктних рішеннях. Зміна матеріалів має бути узгоджена з адаптаційним архітектором.
    Перекриття Монолітне залізобетонне (відливається за місцем)
    Колінна стінка 122 см
    Дах 2-скатний, Схил 42° , Кроквяна система дерев'яна, покрівля з керамічної черепиці
    Котел газовий, можливість заміни котлом на твердому паливі після адаптації
    Тепла підлога використовується в таких приміщеннях: Перший поверх: Тамбур (1), Кухня (3), Гардероб (7); Мансарда: Ванна кімната (8)
    Вентиляція гравітаційна
    Фасад Будинок в каллах 2 вер.2
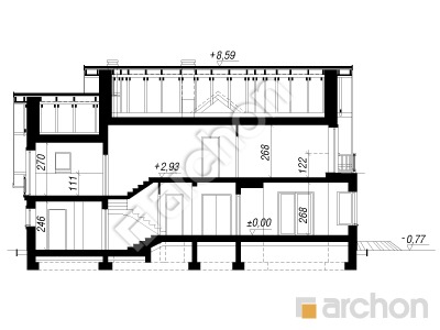
    Розріз
    Проєкт будинку ARCHON+ Будинок в каллах 2 вер.2 Розріз будинку
    Контур будівлі
    Проєкт будинку ARCHON+ Будинок в каллах 2 вер.2 Ситуація

    Комфортний проєкт будинку, ефектне рішення корпусу якого гармонійно поєднується із функціональним плануванням приміщень. Прикладні архітектурні деталі підкреслюють традиційне оздоблення фасаду. Перший поверх - це світла та простора житлова зона, що складається з великої вітальні, з'єднаної зі їдальнею скляним еркером, та відкритої кухні. Велика кількість робочих поверхонь, комора та практична барна стійка – ось його головні переваги. Численні скління привабливо поєднують вітальню з садом і красиво висвітлюють її. Додаткова кімната може служити як кабінет. Підсобна зона включає гараж, доступний з окремого коридору, і котельню з власним зовнішнім виходом. Програма першого поверху доповнена пральною, ванною кімнатою та вбиральнею. Мансарда являє собою приватну зону для мешканців - чотири спальні з балконами, кабінет, зручна ванна кімната та дві вбиральні.

    Подібні проєкти:

    Підпишіться на розсилку АРХОН Україна

    Підписатися на розсилку!
    Чат з консультантом