Рассылка
    Подходящие проекты: 0
    Дом в каллах 5 (Н)
    51 510 UAH

    Проект дома ARCHON+ Дом в каллах 5 (Н) Вид 1

    - 4500 UAH
    Проект дома ARCHON+ Дом в каллах 5 (Н) Вид 1 1/10
    Цена проекта:
    47 010 UAH 51 510 UAH
    Проект доступен на заказ
    ДО КОНЦА АКЦИИ ОСТАЛОСЬ ЕЩЁ

    Что входит в состав проекта?


    односемейный коттедж одноэтажный с жилой мансардой
    гараж, 6 комнат, 1 кухня, 2 ванных, кладовая, 1 котельная, прачечная, гардеробная


    Полезная
    площадь
    211.67 м2
    Общая
    площадь
    361.32 м2
    комнат
    6
    кухня
    1
    туалет
    0
    ванных
    2
    гараж
    1

    Внимание! Только оригинальный проект, купленный в компании «Архон Украина» и официальных дилеров, дает Вам гарантию качества и четкое руководство по строительству дома. Также Вы получаете возможность бесплатно консультироваться у наших специалистов на любом этапе строительства. Убедитесь в оригинальности проекта!

    план первого этажа
    Подобрать к своему участку
    Первый этаж 139.46 (141.78)
    1. Тамбур 6.96
    2. Холл 3.77
    3. Ванная 6.92
    4. Прачечная 9.08 (11.40)
    5. Гараж 22.20
    6. Котельная с прачечной 7.37
    7. Кабинет 16.68
    8. Гостиная + столовая 50.49
    9. Кухня 13.89
    10. Кладовая 2.10
    план мансарды
    Мансарда 101.78 (141.05)
    1. Лестница 5.58 (5.58)
    2. Комната 13.48 (20.80)
    3. Гардероб 2.81 (9.00)
    4. Холл 8.66 (8.66)
    5. Комната 16.43 (17.98)
    6. Гардероб 6.12 (11.88)
    7. Гардероб 3.12 (3.12)
    8. Комната 19.40 (25.14)
    9. Комната 15.86 (17.86)
    10. Гардероб 3.40 (7.81)
    11. Ванная 6.92 (13.22)
    Поверхности
    Полезная площадь 211.67 м2
    Поверхность котельной 7.37 м2
    Площадь гаража 22.2 м2
    Площадь строительства 184.95 м2
    Площадь пола 282.83 м2
    Общая площадь 361.32 м2
    Кубатура 1167.69 м3
    Высота здания 9.03 м
    Технология и конструкция
    Стены пустотелый керамический блок 25 см, пенопласт 20 см, штукатурка.
    Конструкция наружных и внутренних стен может быть выполнена из любого материала (керамических или газобетонных блоков), с техническими параметрами не ниже тех, что указаны в проектных решениях. Изменение материалов должно быть согласовано с архитектором по адаптации.
    Перекрытие Монолитное железобетонное (отливается по месту)
    Коленная стенка 100 см
    Крыша 4-скатная, Скат 38° , Стропильная система деревянная, кровля из керамической черепицы
    Котёл на твердом топливе + как вариант, газовый
    Тёплый пол используется в следующих помещениях: Первый этаж: Тамбур (1), Ванная (3), Кухня (9); Мансарда: Ванная (11)
    Вентиляция гравитационная
    Фасад Дом в каллах 5 (Н)
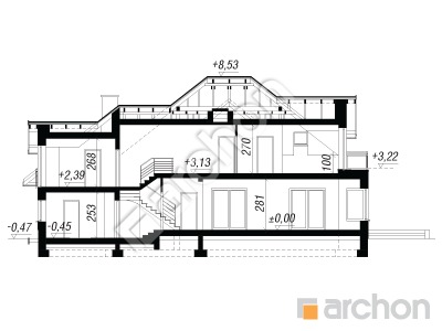
    Разрез
    Проект дома ARCHON+ Дом в каллах 5 (Н) Розріз будинку
    Контур здания
    Проект дома ARCHON+ Дом в каллах 5 (Н) Ситуація
    Похожие проекты:

    Подпишитесь на рассылку АРХОН Украина

    Подписаться на рассылку!
    Чат c консультантом