Рассылка
    Подходящие проекты: 0
    Дом в аурорах 3
    43 030 UAH

    Проект дома ARCHON+ Дом в аурорах 3 Вид 1

    - 4500 UAH
    Проект дома ARCHON+ Дом в аурорах 3 Вид 1 1/14
    Цена проекта:
    38 530 UAH 43 030 UAH
    Проект доступен на заказ
    ДО КОНЦА АКЦИИ ОСТАЛОСЬ ЕЩЁ

    Что входит в состав проекта?


    односемейный коттедж одноэтажный с жилой мансардой
    гараж, 5 комнат, 1 кухня, 2 ванных, кладовая, 1 котельная, прачечная, гардеробная


    Полезная
    площадь
    141.13 м2
    Общая
    площадь
    244.58 м2
    комнат
    5
    кухня
    1
    туалет
    0
    ванных
    2
    гараж
    1

    Внимание! Только оригинальный проект, купленный в компании «Архон Украина» и официальных дилеров, дает Вам гарантию качества и четкое руководство по строительству дома. Также Вы получаете возможность бесплатно консультироваться у наших специалистов на любом этапе строительства. Убедитесь в оригинальности проекта!

    план первого этажа
    Подобрать к своему участку
    Первый этаж 90.41 (92.11)
    1. Тамбур 6.75 (8.45)
    2. Холл 4.10
    3. Ванная 2.36
    4. Кухня 11.21
    5. Кладовая 1.70
    6. Гостиная + столовая 35.78
    7. Котельная 7.50
    8. Гараж 21.01
    план мансарды
    Мансарда 79.23 (92.09)
    1. Холл и лестница 13.82 (13.82)
    2. Комната 11.66 (13.23)
    3. Комната 10.08 (11.93)
    4. Прачечная 6.63 (8.00)
    5. Комната 10.72 (16.14)
    6. Ванная 8.79 (10.42)
    7. Гардероб 2.94 (2.94)
    8. Комната 14.59 (15.61)
    Поверхности
    Полезная площадь 141.13 м2
    Поверхность котельной 7.5 м2
    Площадь гаража 21.01 м2
    Площадь строительства 122.29 м2
    Площадь пола 184.2 м2
    Общая площадь 244.58 м2
    Кубатура 827.82 м3
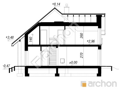
    Высота здания 8.61 м
    Технология и конструкция
    Стены пустотелый керамический блок 25 см, пенопласт 20 см, штукатурка.
    Конструкция наружных и внутренних стен может быть выполнена из любого материала (керамических или газобетонных блоков), с техническими параметрами не ниже тех, что указаны в проектных решениях. Изменение материалов должно быть согласовано с архитектором по адаптации.
    Перекрытие Монолитное железобетонное (отливается по месту)
    Коленная стенка 140 см
    Крыша 2-скатная, Скат 40° , Стропильная система деревянная, кровля из керамической черепицы
    Котёл на твердом топливе + как вариант, газовый
    Тёплый пол используется в следующих помещениях: Первый этаж: Тамбур (1), Кухня (4), Гостиная + столовая (6); Мансарда: Прачечная (4), Ванная (6)
    Вентиляция гравитационная
    Фасад Дом в аурорах 3
    Разрез
    Проект дома ARCHON+ Дом в аурорах 3 Розріз будинку
    Контур здания
    Проект дома ARCHON+ Дом в аурорах 3 Ситуація
    Реализации проекта Дом в аурорах 3
    Похожие проекты:

    Подпишитесь на рассылку АРХОН Украина

    Подписаться на рассылку!
    Чат c консультантом