Рассылка
    Подходящие проекты: 0
    Дом в рододендронах 3 (Г2)
    43 030 UAH

    Проект дома ARCHON+ Дом в рододендронах 3 (Г2) Вид 1

    - 4200 UAH
    Проект дома ARCHON+ Дом в рододендронах 3 (Г2) Вид 1 1/12
    Цена проекта:
    38 830 UAH 43 030 UAH
    Проект доступен на заказ
    ДО КОНЦА АКЦИИ ОСТАЛОСЬ ЕЩЁ

    Что входит в состав проекта?


    односемейный коттедж одноэтажный с жилой мансардой
    гараж, 6 комнат, 1 кухня, 2 ванных, кладовая, 1 котельная, гардеробная


    Полезная
    площадь
    130.64 м2
    Общая
    площадь
    253.55 м2
    комнат
    6
    кухня
    1
    туалет
    0
    ванных
    2
    гараж
    2

    Внимание! Только оригинальный проект, купленный в компании «Архон Украина» и официальных дилеров, дает Вам гарантию качества и четкое руководство по строительству дома. Также Вы получаете возможность бесплатно консультироваться у наших специалистов на любом этапе строительства. Убедитесь в оригинальности проекта!

    план первого этажа
    Подобрать к своему участку
    Первый этаж 93.42 (94.59)
    1. Тамбур 3.60
    2. Котельная 3.27
    3. Холл 4.05
    4. Ванная 2.92 (4.09)
    5. Комната 8.87
    6. Кладовая 1.72
    7. Кухня 9.89
    8. Гостиная 20.69
    9. Гараж 38.41
    план мансарды
    Мансарда 78.90 (96.61)
    1. Холл и лестница 7.21
    2. Ванная 8.81 (10.17)
    3. Комната 16.78 (19.14)
    4. Комната 9.00 (11.25)
    5. Помещение для отдыха 10.19 (11.39)
    6. Комната 19.87 (25.21)
    7. Гардероб 3.52 (6.12)
    8. Гардероб 3.52 (6.12)
    Поверхности
    Полезная площадь 130.64 м2
    Поверхность котельной 3.27 м2
    Площадь гаража 38.41 м2
    Площадь строительства 127.4 м2
    Площадь пола 191.2 м2
    Общая площадь 253.55 м2
    Кубатура 816.0 м3
    Высота здания 8.26 м
    Технология и конструкция
    Стены пустотелый керамический блок 25 см, пенопласт 20 см, штукатурка.
    Конструкция наружных и внутренних стен может быть выполнена из любого материала (керамических или газобетонных блоков), с техническими параметрами не ниже тех, что указаны в проектных решениях. Изменение материалов должно быть согласовано с архитектором по адаптации.
    Перекрытие Монолитное железобетонное (отливается по месту)
    Коленная стенка 113 см
    Крыша 2-скатная, Скат 40° , Стропильная система деревянная, кровля из керамической черепицы
    Котёл газовый
    Тёплый пол используется в следующих помещениях: Первый этаж: Тамбур (1), Ванная (4), Кухня (7); Мансарда: Ванная (2)
    Вентиляция гравитационная
    Фасад Дом в рододендронах 3 (Г2)
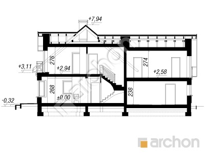
    Разрез
    Проект дома ARCHON+ Дом в рододендронах 3 (Г2) Розріз будинку
    Контур здания
    Проект дома ARCHON+ Дом в рододендронах 3 (Г2) Ситуація

    Проект односемейного дома с жилой мансардой и гаражом на две машины, который предлагает комфортные условия проживания для всей семьи. Стильная отделка здания представляет собой красивое сочетание светлой штукатурки с деревянной отделкой в оттенке теплого дерева, с которой плоская антрацитовая черепица образует гармоничную композицию. Переднюю часть здания украшает балкон, защищенный деревянной балюстрадой, которая также образует навес над входной зоной. У боковой стены была спроектирована терраса как зона отдыха на открытом воздухе. Гостиная первого этажа представляет собой привлекательно освещенное, открытое пространство с центрально встроенным камином. В гостиной, широко открытой на террасу, разместился удобный гостиный гарнитур, а столовая, расположенная в застекленном эркере, приобрела представительный характер. Кухня освещается двумя окнами, а комфортные условия для работы обеспечиваются тщательно продуманной хозяйственной программой, которую дополняет кладовая, расположенная по соседству. Дополнительная комната на первом этаже может быть использована в качестве кабинета или домашней библиотеки. Ванная комната находится рядом с лестницей. Котельная, доступная из тамбура, ведет в просторный гараж, в котором также размещается велосипедное оборудование и имеется дополнительный выход на улицу. В частной зоне мансарды площадь циркуляции была сведена к минимуму благодаря тщательному проектированию пространства. Большая, удобная спальня родителей с двумя гардеробными и домашним кинотеатром расположена над гаражом. Две детские спальни - это уютные, хорошо освещенные комнаты с выходом на балкон. В центральной части мансарды спроектирована общая комната отдыха, где можно организовать телевизионную зону с удобным диваном. Программу ночной части дополняет удобная, большая ванная комната. Представленный проект относится к коллекции: проекты домов с входом с юга.

    Похожие проекты:

    Подпишитесь на рассылку АРХОН Украина

    Подписаться на рассылку!
    Чат c консультантом