Рассылка
    Подходящие проекты: 0
    Дом в рододендронах 15 (НТ)
    39 480 UAH

    Проект дома ARCHON+ Дом в рододендронах 15 (НТ) Вид 1

    - 4000 UAH
    Проект дома ARCHON+ Дом в рододендронах 15 (НТ) Вид 1 1/11
    Цена проекта:
    35 480 UAH 39 480 UAH
    Проект доступен на заказ
    ДО КОНЦА АКЦИИ ОСТАЛОСЬ ЕЩЁ

    Что входит в состав проекта?


    односемейный коттедж одноэтажный с жилой мансардой
    гараж, 6 комнат, 1 кухня, 2 ванных, 1 котельная, гардеробная


    Полезная
    площадь
    117.9 м2
    Общая
    площадь
    213.75 м2
    комнат
    6
    кухня
    1
    туалет
    0
    ванных
    2
    гараж
    1

    Внимание! Только оригинальный проект, купленный в компании «Архон Украина» и официальных дилеров, дает Вам гарантию качества и четкое руководство по строительству дома. Также Вы получаете возможность бесплатно консультироваться у наших специалистов на любом этапе строительства. Убедитесь в оригинальности проекта!

    план первого этажа
    Подобрать к своему участку
    Первый этаж 82.63 (83.83)
    1. Тамбур 4.23
    2. Холл 2.82
    3. Кухня 6.62
    4. Гостиная + столовая 22.36
    5. Комната 7.80
    6. Лестница 5.48
    7. Хранилище 1.74 (2.94)
    8. Ванная 5.12
    9. Котельная 7.70
    10. Гараж 18.76
    план мансарды
    Мансарда 61.73 (73.28)
    1. Холл 3.75 (3.75)
    2. Ванная 4.65 (6.87)
    3. Комната 8.39 (10.46)
    4. Комната 12.25 (14.90)
    5. Комната 9.18 (10.45)
    6. Гардероб 7.51 (8.24)
    7. Комната 16.00 (18.61)
    Поверхности
    Полезная площадь 117.9 м2
    Поверхность котельной 7.7 м2
    Площадь гаража 18.76 м2
    Площадь строительства 108.48 м2
    Площадь пола 157.11 м2
    Общая площадь 213.75 м2
    Кубатура 726.89 м3
    Высота здания 8.45 м
    Технология и конструкция
    Стены пустотелый керамический блок 25 см, пенопласт 20 см, штукатурка.
    Конструкция наружных и внутренних стен может быть выполнена из любого материала (керамических или газобетонных блоков), с техническими параметрами не ниже тех, что указаны в проектных решениях. Изменение материалов должно быть согласовано с архитектором по адаптации.
    Перекрытие Cборно-монолитное Терива
    Коленная стенка 105 см
    Крыша 2-скатная, Скат 40° , Стропильная система деревянная, кровля из керамической черепицы
    Котёл на твердом топливе + как вариант, газовый
    Вентиляция гравитационная
    Фасад Дом в рододендронах 15 (НТ)
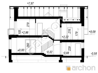
    Разрез
    Проект дома ARCHON+ Дом в рододендронах 15 (НТ) Розріз будинку
    Контур здания
    Проект дома ARCHON+ Дом в рододендронах 15 (НТ) Ситуація

    Дом в рододендронах 15 (НТ) - это современный и функциональный дом. Открытая гостиная и минимум коммуникаций увеличивают пространство дома. Гостиная соединена со столовой, благодаря чему здесь найдется место как для отдыха перед домашним кинотеатром или камином, так и для проведения семейного времени за совместными трапезами. Дополнительная комната, доступная прямо из гостиной, может служить в качестве кабинета или домашней библиотеки. Связь между кухней и гостиной обеспечивается расположением столовой в эркере с панорамным окном. Практичным решением является подсобное помещение, расположенное под лестницей, из которого можно попасть в гараж и котельную на твердом топливе с отдельным выходом. Стиральная машина находится в большой ванной комнате. Удобная лестница ведет в мансарду к приватной зоне жильцов. Здесь есть четыре комфортабельные спальни с балконами и ванная комната. В спальне родителей есть своя просторная гардеробная.

    Реализации проекта Дом в рододендронах 15 (НТ)
    Похожие проекты:

    Подпишитесь на рассылку АРХОН Украина

    Подписаться на рассылку!
    Чат c консультантом