Рассылка
    Подходящие проекты: 0
    Дом в рододендронах 16
    46 020 UAH

    Проект дома ARCHON+ Дом в рододендронах 16 Вид 1

    - 3500 UAH
    Проект дома ARCHON+ Дом в рододендронах 16 Вид 1 1/17
    Цена проекта:
    42 520 UAH 46 020 UAH
    Проект доступен на заказ
    ДО КОНЦА АКЦИИ ОСТАЛОСЬ ЕЩЁ

    Что входит в состав проекта?


    односемейный коттедж одноэтажный с жилой мансардой
    гараж, 6 комнат, 1 кухня, 2 ванных, кладовая, 1 котельная, прачечная, гардеробная


    Полезная
    площадь
    152.85 м2
    Общая
    площадь
    263.34 м2
    комнат
    6
    кухня
    1
    туалет
    0
    ванных
    2
    гараж
    1

    Внимание! Только оригинальный проект, купленный в компании «Архон Украина» и официальных дилеров, дает Вам гарантию качества и четкое руководство по строительству дома. Также Вы получаете возможность бесплатно консультироваться у наших специалистов на любом этапе строительства. Убедитесь в оригинальности проекта!

    план первого этажа
    Подобрать к своему участку
    Первый этаж 98.73 (101.29)
    1. Тамбур 3.51
    2. Холл 7.74
    3. Гостиная + столовая 32.46
    4. Кухня 8.32
    5. Ванная 3.97
    6. Котельная 6.40
    7. Кладовая 3.86 (6.42)
    8. Комната 9.32
    9. Гараж 23.15
    план мансарды
    Мансарда 83.67 (100.99)
    1. Холл и лестница 8.10 (8.10)
    2. Прачечная 5.15 (7.14)
    3. Комната 11.34 (13.33)
    4. Гардероб 3.05 (4.04)
    5. Комната 11.63 (13.12)
    6. Комната 14.71 (17.93)
    7. Комната 15.74 (20.26)
    8. Ванная 7.04 (10.16)
    9. Коридор 6.91 (6.91)
    Поверхности
    Полезная площадь 152.85 м2
    Поверхность котельной 6.4 м2
    Площадь гаража 23.15 м2
    Площадь строительства 131.67 м2
    Площадь пола 202.28 м2
    Общая площадь 263.34 м2
    Кубатура 904.14 м3
    Высота здания 8.85 м
    Технология и конструкция
    Стены силикатный кирпич 24 см, пенопласт 20 см, штукатурка.
    Конструкция наружных и внутренних стен может быть выполнена из любого материала (керамических или газобетонных блоков), с техническими параметрами не ниже тех, что указаны в проектных решениях. Изменение материалов должно быть согласовано с архитектором по адаптации.
    Перекрытие Монолитное железобетонное (отливается по месту)
    Коленная стенка 115 см
    Крыша 2-скатная, Скат 40° , Стропильная система деревянная, кровля из керамической черепицы
    Котёл на твердом топливе + как вариант, газовый
    Тёплый пол используется в следующих помещениях: Первый этаж: Тамбур (1), Кухня (4); Мансарда: Прачечная (2), Ванная (8)
    Вентиляция гравитационная
    Фасад Дом в рододендронах 16
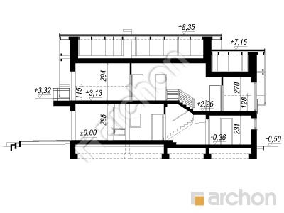
    Разрез
    Проект дома ARCHON+ Дом в рододендронах 16 Розріз будинку
    Контур здания
    Проект дома ARCHON+ Дом в рододендронах 16 Ситуація

    Представляем вашему вниманию чрезвычайно привлекательный проект дома, который отличается очень функциональной внутренней планировкой. Передняя часть здания привлекает внимание центрально расположенным главным входом, который обрамлен деревянной обшивкой и практически накрыт балконом сверху. В отделке фасада использовано стильное сочетание светлой штукатурки, стеклянных балюстрад и натуральной облицовки фасада. Расположение гостиной и террасы делает этот проект идеально подходящим для участков с входом с юга. Многочисленные остекления плавно соединяют интерьеры с садом, окружающим дом, и прекрасно освещают его. В просторной гостиной удобно разместился угловой диван у телевизора и камина, где жильцы могут приятно проводить время вместе. Открытая кухня может быть оснащена высоким встроенным шкафом, который выглядит очень привлекательно в современных интерьерах. Рядом с главным входом есть дополнительная комната, которую можно использовать в качестве кабинета или домашней библиотеки. Через кладовую мы переходим в хозяйственную часть дома - одноместный гараж с собственным внешним выходом и котельной для твердого топлива. Удобная лестница ведет в частную ночную зону в мансарде. Здесь спроектированы четыре спальни, ванная комната с ванной и душем и прачечная с местом для сушки одежды. Все комнаты получили естественное освещение благодаря высоким балконным дверям, в них также есть место для вместительных стенных шкафов и письменных столов для учебы и работы. В одной из спален есть своя гардеробная. Этот впечатляющий проект дома относится к популярной категории: проекты современных домов с входом с юга и с дополнительным кабинетом на первом этаже.

    Реализации проекта Дом в рододендронах 16
    Похожие проекты:

    Подпишитесь на рассылку АРХОН Украина

    Подписаться на рассылку!
    Чат c консультантом