Рассылка
    Подходящие проекты: 0
    Дом в рододендронах 5 вер.2
    43 030 UAH

    Проект дома ARCHON+ Дом в рододендронах 5 вер.2 Вид 1

    - 4200 UAH
    Проект дома ARCHON+ Дом в рододендронах 5 вер.2 Вид 1 1/11
    Цена проекта:
    38 830 UAH 43 030 UAH
    Проект доступен сразу
    ДО КОНЦА АКЦИИ ОСТАЛОСЬ ЕЩЁ

    Что входит в состав проекта?


    односемейный коттедж одноэтажный с жилой мансардой
    гараж, 6 комнат, 1 кухня, 2 ванных, кладовая, 1 котельная, гардеробная, хозяйственное помещение


    Полезная
    площадь
    144.27 м2
    Общая
    площадь
    245.63 м2
    комнат
    6
    кухня
    1
    туалет
    0
    ванных
    2
    гараж
    1

    Внимание! Только оригинальный проект, купленный в компании «Архон Украина» и официальных дилеров, дает Вам гарантию качества и четкое руководство по строительству дома. Также Вы получаете возможность бесплатно консультироваться у наших специалистов на любом этапе строительства. Убедитесь в оригинальности проекта!

    план первого этажа
    Подобрать к своему участку
    Первый этаж 95.29 (95.84)
    1. Тамбур 3.69
    2. Холл 3.14
    3. Кладовая 1.35
    4. Кухня 7.87
    5. Гостиная 28.84
    6. Комната 13.91
    7. Ванная 3.48 (4.03)
    8. Котельная с прачечной 4.74
    9. Гараж 18.78
    10. Хозяйственное помещение 4.62
    11. Лестница 4.87
    план мансарды
    Мансарда 72.50 (88.77)
    1. Коридор 4.69 (4.69)
    2. Ванная 7.81 (9.99)
    3. Комната 11.21 (14.11)
    4. Комната 18.04 (20.70)
    5. Комната 12.74 (15.71)
    6. Комната 12.71 (15.49)
    7. Гардероб 5.30 (8.08)
    Поверхности
    Полезная площадь 144.27 м2
    Поверхность котельной 4.74 м2
    Площадь гаража 18.78 м2
    Площадь строительства 123.97 м2
    Площадь пола 184.61 м2
    Общая площадь 245.63 м2
    Кубатура 835.51 м3
    Высота здания 8.61 м
    Технология и конструкция
    Стены пустотелый керамический блок 25 см, пенопласт 20 см, штукатурка.
    Конструкция наружных и внутренних стен может быть выполнена из любого материала (керамических или газобетонных блоков), с техническими параметрами не ниже тех, что указаны в проектных решениях. Изменение материалов должно быть согласовано с архитектором по адаптации.
    Перекрытие Монолитное железобетонное (отливается по месту)
    Коленная стенка 105 см
    Крыша 2-скатная, Скат 40° , Стропильная система деревянная, кровля из керамической черепицы
    Котёл газовый
    Тёплый пол используется в следующих помещениях: Первый этаж: Тамбур (1), Кухня (4); Мансарда: Ванная (2)
    Вентиляция гравитационная
    Фасад Дом в рододендронах 5 вер.2
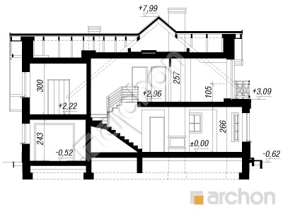
    Разрез
    Проект дома ARCHON+ Дом в рододендронах 5 вер.2 Розріз будинку
    Контур здания
    Проект дома ARCHON+ Дом в рододендронах 5 вер.2 Ситуація

    Волшебный дом с красивыми пропорциями фасада и привлекательным пространственным дизайном интерьера. Кухня с кладовой, полуоткрытая в гостиную, гостиная с камином и выходом на террасу, и столовая, расположенная в эркере, побуждают провести время вместе с семьей. На первом этаже также находится дополнительная комната, которую можно использовать как рабочий кабинет. Через котельную можно войти в гараж с подсобным помещением. На мансарде находятся три спальни и гостевая комната с гардеробной и ванная комната с душем и угловой ванной. Открытое пространство и хорошее освещение комнат делают их привлекательными.

    Похожие проекты:

    Подпишитесь на рассылку АРХОН Украина

    Подписаться на рассылку!
    Чат c консультантом