Розсилка
    Відповідні проєкти: 0
    Будинок у лаврах (Г2П)
    56 790 UAH

    Проєкт будинку ARCHON+ Будинок у лаврах (Г2П) Вид 1

    - 4000 UAH
    Проєкт будинку ARCHON+ Будинок у лаврах (Г2П) Вид 1 1/13
    Ціна проєкту:
    52 790 UAH 56 790 UAH
    Проєкт доступний на замовлення
    ДО КІНЦЯ АКЦІЇ ЗАЛИШИЛОСЯ ЩЕ

    Що входить до складу проєкту?


    односімейний котедж одноповерховий з житловою мансардою
    гараж, підвал, 4 кімнат, 1 кухня, 2 ванни, комора, 1 туалет, 1 котельня, пральня, гардеробна, господарське приміщення, антресоль


    Корисна
    площа
    161.13 м2
    Загальна
    площа
    425.43 м2
    кімнат
    4
    кухня
    1
    туалет
    1
    ванни
    2
    гараж
    2

    Увага! Тільки оригінальний проєкт, куплений в компанії «Архон Україна» і у офіційних дилерів, дає Вам гарантію якості і чітке керівництво над будівництвом будинку. Також Ви отримуєте можливість безкоштовно консультуватися у наших фахівців на будь-якому етапі будівництва. Переконайтеся в оригінальності проєкту!

    План підвалу
    Підвал 90.10 (94.46)
    1. Коридор 10.06 (14.42)
    2. Господарське приміщення 28.07
    3. Пральня 16.41
    4. Господарське приміщення 22.35
    5. Котельня 13.21
    План першого поверху
    Допасуйте до своєї ділянки
    Перший поверх 134.53
    1. Тамбур 4.35
    2. Коридор 10.77
    3. Сходовий майданчик 4.99
    4. Вітальня + їдальня 28.53
    5. Кухня 10.05
    6. Комора 2.86
    7. Туалет 2.39
    8. Ванна кімната 6.71
    9. Гардероб 4.44
    10. Кімната 12.36
    11. Гардероб 6.87
    12. Гараж 40.21
    План мансарди
    Мансарда 66.81 (77.42)
    1. Сходи 5.97 (5.97)
    2. Антресоль 22.48 (25.01)
    3. Ванна кімната 7.17 (9.18)
    4. Кімната 16.28 (19.26)
    5. Кімната 13.21 (15.60)
    6. Гардероб 1.70 (2.40)
    Поверхні
    Корисна площа 161.13 м2
    Площа гаража 40.21 м2
    Площа будівництва 177.69 м2
    Площа підлоги 306.41 м2
    Загальна площа 425.43 м2
    Кубатура 1313.29 м3
    Висота будинку 7.73 м
    Технологія і конструкція
    Стіни пустотілий керамічний блок 25 см, пінопласт 20 см, штукатурка.
    Конструкція зовнішніх і внутрішніх стін може бути виконана з будь-якого матеріалу (керамічних або газобетонних блоків), з технічними параметрами не нижчими за ті, що зазначені в проєктних рішеннях. Зміна матеріалів має бути узгоджена з адаптаційним архітектором.
    Перекриття Монолітне залізобетонне (відливається за місцем)
    Колінна стінка 133 см
    Дах 2-скатний, Схил 35° , Кроквяна система дерев'яна, покрівля з жерсті
    Котел на твердому паливі + як варіант, газовий
    Тепла підлога використовується в таких приміщеннях: Перший поверх: Тамбур (1), Сходовий майданчик (3), Вітальня + їдальня (4), Кухня (5), Ванна кімната (8), Гардероб (11); Мансарда: Ванна кімната (3)
    Вентиляція гравітаційна
    Фасад Будинок у лаврах (Г2П)
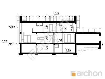
    Розріз
    Проєкт будинку ARCHON+ Будинок у лаврах (Г2П) Розріз будинку
    Контур будівлі
    Проєкт будинку ARCHON+ Будинок у лаврах (Г2П) Ситуація

    Сучасний проєкт будинку з простим корпусом та стильним оздобленням фасаду, особливо рекомендується для ділянок на схилі та з входом з півдня. Повсякденна зона винятково приваблива завдяки заскленій вітальні висотою у два поверхи. Панорамні вікна, що займають всю стіну, забезпечують відмінне освітлення і дозволяють саду плавно злитися з житловою зоною. Цей простір відображений у дизайні інтер'єру - вітальня із їдальнею та кухня є відкритими приміщеннями, функціональність яких поєднується один з одним. На задньому плані знаходиться спальня батьків, спроєктована як апартаменти з власним гардеробом та ванною кімнатою, а також виходом на терасу. У підвалі будинку розташована велика господарська зона. Є котельня для твердого палива, пральня з сушильною кімнатою та два великі підсобні приміщення. Гараж на дві машини доступний із першого поверху. У мансарді ми знайдемо дві добре розташовані та світлі спальні, зручну ванну кімнату та вбиральню. Хол був перетворений у привабливий мезонін із зоною відпочинку та видом на вітальню та сад. Велика тераса над гаражем є додатковою приватною зоною відпочинку.

    Подібні проєкти:

    Підпишіться на розсилку АРХОН Україна

    Підписатися на розсилку!
    Чат з консультантом