Розсилка
    Відповідні проєкти: 0
    Будинок в солодках 2 вер.2
    36 890 UAH

    Проєкт будинку ARCHON+ Будинок в солодках 2 вер.2 Вид 1

    - 4000 UAH
    Проєкт будинку ARCHON+ Будинок в солодках 2 вер.2 Вид 1 1/12
    Ціна проєкту:
    32 890 UAH 36 890 UAH
    Проєкт доступний на замовлення
    ДО КІНЦЯ АКЦІЇ ЗАЛИШИЛОСЯ ЩЕ

    Що входить до складу проєкту?


    односімейний котедж одноповерховий з житловою мансардою
    5 кімнат, 1 кухня, 2 ванни, їдальня, 1 котельня, гардеробна


    Корисна
    площа
    111.61 м2
    Загальна
    площа
    176.32 м2
    кімнат
    5
    кухня
    1
    туалет
    0
    ванни
    2

    Увага! Тільки оригінальний проєкт, куплений в компанії «Архон Україна» і у офіційних дилерів, дає Вам гарантію якості і чітке керівництво над будівництвом будинку. Також Ви отримуєте можливість безкоштовно консультуватися у наших фахівців на будь-якому етапі будівництва. Переконайтеся в оригінальності проєкту!

    План першого поверху
    Допасуйте до своєї ділянки
    Перший поверх 61.67 (64.90)
    1. Тамбур 4.79
    2. Котельня з пральнею 4.14
    3. Хол 3.39
    4. Ванна кімната 2.39
    5. Кімната 8.94
    6. Кухня 8.64
    7. Їдальня 7.26
    8. Вітальня 22.12 (25.35)
    План мансарди
    Мансарда 54.08 (66.24)
    1. Хол і сходи 9.22 (9.22)
    2. Ванна кімната 6.51 (7.83)
    3. Кімната 12.57 (15.72)
    4. Кімната 10.14 (13.14)
    5. Кімната 12.35 (15.49)
    6. Гардероб 3.29 (4.84)
    Поверхні
    Корисна площа 111.61 м2
    Поверхня котельні 4.14 м2
    Площа будівництва 88.13 м2
    Площа підлоги 131.14 м2
    Загальна площа 176.32 м2
    Кубатура 591.96 м3
    Висота будинку 8.27 м
    Технологія і конструкція
    Стіни пустотілий керамічний блок 25 см, пінопласт 20 см, штукатурка.
    Конструкція зовнішніх і внутрішніх стін може бути виконана з будь-якого матеріалу (керамічних або газобетонних блоків), з технічними параметрами не нижчими за ті, що зазначені в проєктних рішеннях. Зміна матеріалів має бути узгоджена з адаптаційним архітектором.
    Перекриття Монолітне залізобетонне (відливається за місцем)
    Колінна стінка 102 см
    Дах 2-скатний, Схил 42° , Кроквяна система дерев'яна, покрівля з керамічної черепиці
    Котел газовий, можливість заміни котлом на твердому паливі після адаптації
    Тепла підлога використовується в таких приміщеннях: Перший поверх: Тамбур (1), Кухня (6)
    Вентиляція гравітаційна
    Фасад Будинок в солодках 2 вер.2
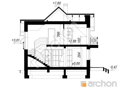
    Розріз
    Проєкт будинку ARCHON+ Будинок в солодках 2 вер.2 Розріз будинку
    Контур будівлі
    Проєкт будинку ARCHON+ Будинок в солодках 2 вер.2 Ситуація
    Реалізації проєкту Будинок в солодках 2 вер.2
    Подібні проєкти:

    Підпишіться на розсилку АРХОН Україна

    Підписатися на розсилку!
    Чат з консультантом