Розсилка
    Відповідні проєкти: 0
    Будинок у перлівці (БН)
    36 890 UAH

    Проєкт будинку ARCHON+ Будинок у перлівці (БН) Вид 1

    - 4000 UAH
    Проєкт будинку ARCHON+ Будинок у перлівці (БН) Вид 1 1/19
    Ціна проєкту:
    32 890 UAH 36 890 UAH
    Проєкт доступний на замовлення
    ДО КІНЦЯ АКЦІЇ ЗАЛИШИЛОСЯ ЩЕ

    Що входить до складу проєкту?


    котедж для зблокованої забудови одноповерховий з житловою мансардою
    гараж, 4 кімнат, 1 кухня, 2 ванни, 1 котельня, гардеробна, господарське приміщення


    Корисна
    площа
    92.78 м2
    Загальна
    площа
    174.68 м2
    кімнат
    4
    кухня
    1
    туалет
    0
    ванни
    2
    гараж
    1

    Увага! Тільки оригінальний проєкт, куплений в компанії «Архон Україна» і у офіційних дилерів, дає Вам гарантію якості і чітке керівництво над будівництвом будинку. Також Ви отримуєте можливість безкоштовно консультуватися у наших фахівців на будь-якому етапі будівництва. Переконайтеся в оригінальності проєкту!

    План першого поверху
    Допасуйте до своєї ділянки
    Перший поверх 62.93 (63.30)
    1. Тамбур 2.35
    2. Хол 3.91
    3. Ванна кімната 3.52
    4. Гардероб 2.17 (2.54)
    5. Гараж 17.91
    6. Котельня 5.44
    7. Вітальня + їдальня 19.16
    8. Кухня 8.47
    План мансарди
    Мансарда 53.20 (65.34)
    1. Хол 3.38
    2. Господарське приміщення 1.87 (3.80)
    3. Кімната 12.27 (14.25)
    4. Кімната 11.99 (13.96)
    5. Ванна кімната 5.66 (7.60)
    6. Кімната 13.59 (17.91)
    7. Сходи 4.44
    Поверхні
    Корисна площа 92.78 м2
    Поверхня котельні 5.44 м2
    Площа гаража 17.91 м2
    Площа будівництва 87.34 м2
    Площа підлоги 128.64 м2
    Загальна площа 174.68 м2
    Кубатура 568.65 м3
    Висота будинку 8.09 м
    Технологія і конструкція
    Стіни пустотілий керамічний блок 25 см, пінопласт 20 см, штукатурка.
    Конструкція зовнішніх і внутрішніх стін може бути виконана з будь-якого матеріалу (керамічних або газобетонних блоків), з технічними параметрами не нижчими за ті, що зазначені в проєктних рішеннях. Зміна матеріалів має бути узгоджена з адаптаційним архітектором.
    Перекриття Монолітне залізобетонне (відливається за місцем)
    Колінна стінка 113 см
    Дах 2-скатний, Схил 40° , Кроквяна система дерев'яна, покрівля з керамічної черепиці
    Котел на твердому паливі + як варіант, газовий
    Тепла підлога використовується в таких приміщеннях: Перший поверх: Тамбур (1), Ванна кімната (3), Кухня (8); Мансарда: Ванна кімната (5)
    Вентиляція гравітаційна
    Фасад Будинок у перлівці (БН)
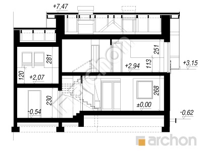
    Розріз
    Проєкт будинку ARCHON+ Будинок у перлівці (БН) Розріз будинку
    Контур будівлі
    Проєкт будинку ARCHON+ Будинок у перлівці (БН) Ситуація

    Проєкт будинку для зблокованої забудови, що характеризується сучасною архітектурою та функціонально вирішеним внутрішнім простором. Комфортабельна вітальня з каміном та домашнім кінотеатром, їдальня та відкрита кухня з практичною барною стійкою створюють світлу та простору житлову зону будинку. З передпокою можна потрапити в господарську зону - вбиральню, гараж та котельню на твердому паливі. Комфортна нічна зона в мансарді включає три спальні, вбиральню та ванну кімнату. Представлений проєкт відноситься до популярних категорій: проєкти невеликих будинків, проєкти будинків для вузької ділянки та проєкти будинків у сучасному стилі.

    Подібні проєкти:

    Підпишіться на розсилку АРХОН Україна

    Підписатися на розсилку!
    Чат з консультантом