Розсилка
    Відповідні проєкти: 0
    Будинок в лавровишнях 2 (Г)
    43 030 UAH

    Проєкт будинку ARCHON+ Будинок в лавровишнях 2 (Г) Вид 1

    - 4500 UAH
    Проєкт будинку ARCHON+ Будинок в лавровишнях 2 (Г) Вид 1 1/12
    Ціна проєкту:
    38 530 UAH 43 030 UAH
    Проєкт доступний на замовлення
    ДО КІНЦЯ АКЦІЇ ЗАЛИШИЛОСЯ ЩЕ

    Що входить до складу проєкту?


    односімейний котедж одноповерховий з житловою мансардою
    гараж, 6 кімнат, 1 кухня, 2 ванни, 1 котельня, пральня, гардеробна


    Корисна
    площа
    147.29 м2
    Загальна
    площа
    239.85 м2
    кімнат
    6
    кухня
    1
    туалет
    0
    ванни
    2
    гараж
    1

    Увага! Тільки оригінальний проєкт, куплений в компанії «Архон Україна» і у офіційних дилерів, дає Вам гарантію якості і чітке керівництво над будівництвом будинку. Також Ви отримуєте можливість безкоштовно консультуватися у наших фахівців на будь-якому етапі будівництва. Переконайтеся в оригінальності проєкту!

    План першого поверху
    Допасуйте до своєї ділянки
    Перший поверх 84.02 (87.93)
    1. Тамбур 3.61
    2. Хол 6.18
    3. Гараж 18.41 (21.59)
    4. Котельня 3.05 (3.78)
    5. Кухня 11.94
    6. Вітальня 28.42
    7. Ванна кімната 3.78
    8. Кімната 8.63
    План мансарди
    Мансарда 84.73 (95.74)
    1. Сходи 6.00
    2. Хол 8.90
    3. Гардероб 3.82 (4.80)
    4. Кімната 12.49 (14.05)
    5. Кімната 15.24 (16.79)
    6. Ванна кімната 6.79 (8.61)
    7. Пральня 4.77 (5.81)
    8. Кімната 11.48 (13.10)
    9. Кімната 11.48 (13.10)
    10. Гардероб 3.76 (4.58)
    Поверхні
    Корисна площа 147.29 м2
    Поверхня котельні 3.05 м2
    Площа гаража 18.41 м2
    Площа будівництва 124.56 м2
    Площа підлоги 183.67 м2
    Загальна площа 239.85 м2
    Кубатура 837.93 м3
    Висота будинку 8.53 м
    Технологія і конструкція
    Стіни пустотілий керамічний блок 25 см, пінопласт 20 см, штукатурка.
    Конструкція зовнішніх і внутрішніх стін може бути виконана з будь-якого матеріалу (керамічних або газобетонних блоків), з технічними параметрами не нижчими за ті, що зазначені в проєктних рішеннях. Зміна матеріалів має бути узгоджена з адаптаційним архітектором.
    Перекриття Монолітне залізобетонне (відливається за місцем)
    Колінна стінка 142 см
    Дах 2-скатний, Схил 40° , Кроквяна система дерев'яна, покрівля з керамічної черепиці
    Котел газовий
    Тепла підлога застосовано у всіх житлових приміщеннях
    Вентиляція гравітаційна
    Фасад Будинок в лавровишнях 2 (Г)
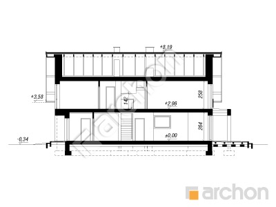
    Розріз
    Проєкт будинку ARCHON+ Будинок в лавровишнях 2 (Г) Розріз будинку
    Контур будівлі
    Проєкт будинку ARCHON+ Будинок в лавровишнях 2 (Г) Ситуація
    Подібні проєкти:

    Підпишіться на розсилку АРХОН Україна

    Підписатися на розсилку!
    Чат з консультантом