Розсилка
    Відповідні проєкти: 0
    Будинок в абрикосах (H) вер.2
    39 480 UAH

    Проєкт будинку ARCHON+ Будинок в абрикосах (H) вер.2 Вид 1

    - 3500 UAH
    Проєкт будинку ARCHON+ Будинок в абрикосах (H) вер.2 Вид 1 1/11
    Ціна проєкту:
    35 980 UAH 39 480 UAH
    Проєкт доступний відразу
    ДО КІНЦЯ АКЦІЇ ЗАЛИШИЛОСЯ ЩЕ

    Що входить до складу проєкту?


    односімейний котедж одноповерховий з житловою мансардою
    гараж, 6 кімнат, 1 кухня, 2 ванни, 1 котельня, гардеробна, господарське приміщення


    Корисна
    площа
    124.4 м2
    Загальна
    площа
    229.06 м2
    кімнат
    6
    кухня
    1
    туалет
    0
    ванни
    2
    гараж
    1

    Увага! Тільки оригінальний проєкт, куплений в компанії «Архон Україна» і у офіційних дилерів, дає Вам гарантію якості і чітке керівництво над будівництвом будинку. Також Ви отримуєте можливість безкоштовно консультуватися у наших фахівців на будь-якому етапі будівництва. Переконайтеся в оригінальності проєкту!

    План першого поверху
    Допасуйте до своєї ділянки
    Перший поверх 83.40 (85.04)
    1. Тамбур 2.89
    2. Хол 6.06
    3. Кабінет 7.98
    4. Ванна кімната 4.53
    5. Кухня 7.68
    6. Вітальня + їдальня 25.78
    7. Господарське приміщення 3.17 (4.81)
    8. Гараж 19.64
    9. Котельня з пральнею 5.67
    План мансарди
    Мансарда 66.31 (85.73)
    1. Сходи 4.81 (4.81)
    2. Хол 5.32 (5.32)
    3. Кімната 9.65 (11.97)
    4. Кімната 8.25 (11.08)
    5. Ванна кімната 5.08 (6.64)
    6. Кімната 12.54 (14.87)
    7. Гардероб 3.32 (5.48)
    8. Кімната 13.22 (17.33)
    9. Гардероб 4.12 (8.23)
    Поверхні
    Корисна площа 124.4 м2
    Поверхня котельні 5.67 м2
    Площа гаража 19.64 м2
    Площа будівництва 114.53 м2
    Площа підлоги 170.77 м2
    Загальна площа 229.06 м2
    Кубатура 741.43 м3
    Висота будинку 8.49 м
    Технологія і конструкція
    Стіни пустотілий керамічний блок 25 см, пінопласт 20 см, штукатурка.
    Конструкція зовнішніх і внутрішніх стін може бути виконана з будь-якого матеріалу (керамічних або газобетонних блоків), з технічними параметрами не нижчими за ті, що зазначені в проєктних рішеннях. Зміна матеріалів має бути узгоджена з адаптаційним архітектором.
    Перекриття Монолітне залізобетонне (відливається за місцем)
    Колінна стінка 107 см
    Дах 2-скатний, Схил 45° , 40° , Кроквяна система дерев'яна, покрівля з керамічної черепиці
    Котел газовий, можливість заміни котлом на твердому паливі після адаптації
    Тепла підлога використовується в таких приміщеннях: Перший поверх: Тамбур (1), Кухня (5); Мансарда: Ванна кімната (5)
    Вентиляція гравітаційна
    Фасад Будинок в абрикосах (H) вер.2
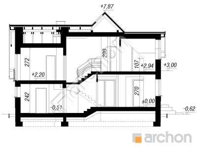
    Розріз
    Проєкт будинку ARCHON+ Будинок в абрикосах (H) вер.2 Розріз будинку
    Контур будівлі
    Проєкт будинку ARCHON+ Будинок в абрикосах (H) вер.2 Ситуація

    Проєкт будинку в сучасному стилі, який може стати альтернативою класичному стилю. Перевага цього проєкту полягає у виділенні просторових особливостей денної зони - завдяки плануванню кухні, зал і сходи були включені в зону вітальні. Це дозволило створити просторий інтер'єр, який освітлений сучасними оскління з виходом на терасу і візуально виглядає більшим. Додаткова кімната біля входу ідеально підходить для навчання і роботи, а через підсобне приміщення можна потрапити в гараж і котельню з окремим виходом. Враження від простору інтер'єру посилюється завдяки легким сходам, розташованим на протилежному боку вітальні, вони ведуть на мансарду, в приватну зону жителів. Там є чотири світлі спальні і ванна кімната з великим вікном. Дві спальні мають свій гардероб.

    Реалізації проєкту Будинок в абрикосах (H) вер.2
    Подібні проєкти:

    Підпишіться на розсилку АРХОН Україна

    Підписатися на розсилку!
    Чат з консультантом