Розсилка
    Відповідні проєкти: 0
    Будинок в аурорах 17 (Г2Е)
    47 120 UAH

    Проєкт будинку ARCHON+ Будинок в аурорах 17 (Г2Е) Вид 1

    - 4000 UAH
    Проєкт будинку ARCHON+ Будинок в аурорах 17 (Г2Е) Вид 1 1/13
    Ціна проєкту:
    43 120 UAH 47 120 UAH
    Проєкт доступний на замовлення
    ДО КІНЦЯ АКЦІЇ ЗАЛИШИЛОСЯ ЩЕ

    Що входить до складу проєкту?


    односімейний котедж одноповерховий з житловою мансардою
    гараж, 5 кімнат, 1 кухня, 2 ванни, комора, 1 котельня, пральня, гардеробна, антресоль


    Корисна
    площа
    143.67 м2
    Загальна
    площа
    278.23 м2
    кімнат
    5
    кухня
    1
    туалет
    0
    ванни
    2
    гараж
    2

    Увага! Тільки оригінальний проєкт, куплений в компанії «Архон Україна» і у офіційних дилерів, дає Вам гарантію якості і чітке керівництво над будівництвом будинку. Також Ви отримуєте можливість безкоштовно консультуватися у наших фахівців на будь-якому етапі будівництва. Переконайтеся в оригінальності проєкту!

    План першого поверху
    Допасуйте до своєї ділянки
    Перший поверх 122.19 (124.76)
    1. Тамбур 3.38
    2. Хол 10.98 (13.55)
    3. Ванна кімната 2.92
    4. Комора 1.52
    5. Кухня 10.30
    6. Вітальня + їдальня 29.51
    7. Кімната 17.82
    8. Гараж 34.93
    9. Котельня 10.83
    План мансарди
    Мансарда 67.24 (78.96)
    1. Сходи 4.10
    2. Коридор 12.48
    3. Кімната 10.09 (11.99)
    4. Кімната 9.94 (11.84)
    5. Пральня 4.85 (6.20)
    6. Гардероб 4.78 (6.10)
    7. Кімната 10.89 (13.00)
    8. Гардероб 4.41 (5.66)
    9. Ванна кімната 5.70 (7.59)
    Поверхні
    Корисна площа 143.67 м2
    Поверхня котельні 10.83 м2
    Площа гаража 34.93 м2
    Площа будівництва 159.35 м2
    Площа підлоги 203.72 м2
    Загальна площа 278.23 м2
    Кубатура 977.59 м3
    Висота будинку 8.48 м
    Технологія і конструкція
    Стіни пустотілий керамічний блок 25 см, пінопласт 20 см, штукатурка.
    Конструкція зовнішніх і внутрішніх стін може бути виконана з будь-якого матеріалу (керамічних або газобетонних блоків), з технічними параметрами не нижчими за ті, що зазначені в проєктних рішеннях. Зміна матеріалів має бути узгоджена з адаптаційним архітектором.
    Перекриття Монолітне залізобетонне (відливається за місцем)
    Колінна стінка 130 см
    Дах 2-скатний, Схил 37° , Кроквяна система дерев'яна, покрівля з жерсті
    Котел газовий, можливість заміни котлом на твердому паливі після адаптації
    Тепла підлога застосовано у всіх житлових приміщеннях
    Вентиляція механічна
    Фасад Будинок в аурорах 17 (Г2Е)
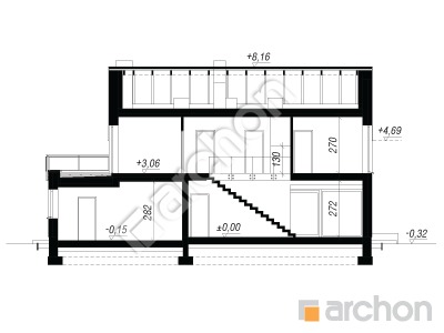
    Розріз
    Проєкт будинку ARCHON+ Будинок в аурорах 17 (Г2Е) Розріз будинку
    Контур будівлі
    Проєкт будинку ARCHON+ Будинок в аурорах 17 (Г2Е) Ситуація

    Сучасний будинок з житловою мансардою, який є цікавою пропозицією у відомому сімействі "Будинки в Аурорах". Документація включає проєкт механічної вентиляції, її використання у будівлі дозволить знизити витрати на опалення. Корпус будинку привертає увагу облицюванням, яке є вражаючою композицією зі світлої штукатурки, бетонної конструкції та дерев'яного облицювання. Мінімалістський характер будинку підкреслює двосхилий дах без карнизів, який покритий металевими листами. У будівлі було спроєктовано гараж на дві машини, його виступ із тіла будівлі дозволив створити сучасний навіс над головним входом після розширення перекриття. Терасна пергола надає атмосферу літньої зони відпочинку. Всередині у розпорядженні мешканців комфортна житлова зона, враження простору якої посилюється завдяки відкритій стелі над їдальнею. Це рішення дозволило використовувати високе скління в їдальні, яке винятково ефектно висвітлює інтер'єр. Розсувні двері тераси у вітальні розширюють можливості її облаштування та плавно з'єднують її з літньою зоною відпочинку. Розміри тераси дозволяють організувати кавовий куточок та зону відпочинку з набором садових меблів. На кухні оптимальні умови для приготування їжі гарантують просторі робочі поверхні, можна використовувати високі вбудовані меблі, проєктом також передбачена комора. Спроєктована на першому поверсі кімната може бути зручною спальнею для гостей, її перевагою є прямий, широкий вихід на терасу. Зручність користування будинком також підвищується за рахунок санвузла з душем, розташованого на першому поверсі, та з'єднання тамбуру з підсобним приміщенням, що дозволяє швидко отримати доступ до гаража та котельні. У мансарді ми спроєктували велику спальню батьків, до якої належить містка вбиральня, і дві дуже затишні кімнати дітей, які мають вихід на загальну терасу, передбачену над гаражем. Крім того, є ванна кімната з кутовою ванною, сучасним душем і набором раковин, загальна гардеробна та простора пральня. Цей проєкт обов'язково сподобається любителям сучасних тенденцій та оригінальних просторових рішень. Належить до колекції: проєкти сучасних будинків, проєкти будинків із житловою мансардою, проєкти будинків із гаражем на дві машини. Інші доступні проєкти з сімейства "Будинок в аурорах" включають: "Будинок в Аурорах (Н)" - проєкт з гаражем на одну машину, "Будинок в аурорах 6" - просте та дешеве будівництво з гаражем на одну машину, "Будинок в аурорах 8 (Г2)" - з гаражем на дві машини та терасою, покритою додатковою секцією даху, та багато інших.

    Подібні проєкти:

    Підпишіться на розсилку АРХОН Україна

    Підписатися на розсилку!
    Чат з консультантом