Розсилка
    Відповідні проєкти: 0
    Будинок під лічі вер.2
    39 480 UAH

    Проєкт будинку ARCHON+ Будинок під лічі вер.2 Вид 1

    - 4000 UAH
    Проєкт будинку ARCHON+ Будинок під лічі вер.2 Вид 1 1/30
    Ціна проєкту:
    35 480 UAH 39 480 UAH
    Проєкт доступний на замовлення
    ДО КІНЦЯ АКЦІЇ ЗАЛИШИЛОСЯ ЩЕ

    Що входить до складу проєкту?


    односімейний котедж одноповерховий з житловою мансардою
    гараж, 4 кімнат, 1 кухня, 1 ванна, 1 туалет, 1 котельня, гардеробна


    Корисна
    площа
    105.74 м2
    Загальна
    площа
    191.15 м2
    кімнат
    4
    кухня
    1
    туалет
    1
    ванна
    1
    гараж
    1

    Увага! Тільки оригінальний проєкт, куплений в компанії «Архон Україна» і у офіційних дилерів, дає Вам гарантію якості і чітке керівництво над будівництвом будинку. Також Ви отримуєте можливість безкоштовно консультуватися у наших фахівців на будь-якому етапі будівництва. Переконайтеся в оригінальності проєкту!

    План першого поверху
    Допасуйте до своєї ділянки
    Перший поверх 74.77 (76.83)
    1. Тамбур 5.39
    2. Хол 1.36
    3. Туалет 1.79
    4. Кухня 7.01
    5. Вітальня + їдальня 29.88 (31.94)
    6. Сходи 3.59
    7. Котельня з пральнею 6.08
    8. Гараж 19.67
    План мансарди
    Мансарда 56.72 (66.82)
    1. Хол 1.58 (1.58)
    2. Гардероб 4.55 (7.26)
    3. Кімната 15.31 (18.37)
    4. Кімната 12.42 (14.55)
    5. Ванна кімната 6.71 (7.48)
    6. Кімната 13.38 (14.81)
    7. Хол 2.77 (2.77)
    Поверхні
    Корисна площа 105.74 м2
    Поверхня котельні 6.08 м2
    Площа гаража 19.67 м2
    Площа будівництва 99.09 м2
    Площа підлоги 143.65 м2
    Загальна площа 191.15 м2
    Кубатура 635.57 м3
    Висота будинку 8.26 м
    Технологія і конструкція
    Стіни пустотілий керамічний блок 25 см, пінопласт 20 см, штукатурка.
    Конструкція зовнішніх і внутрішніх стін може бути виконана з будь-якого матеріалу (керамічних або газобетонних блоків), з технічними параметрами не нижчими за ті, що зазначені в проєктних рішеннях. Зміна матеріалів має бути узгоджена з адаптаційним архітектором.
    Перекриття Монолітне залізобетонне (відливається за місцем)
    Колінна стінка 106 см
    Дах 2-скатний, Схил 40° , Кроквяна система дерев'яна, покрівля з керамічної черепиці
    Котел газовий, можливість заміни котлом на твердому паливі після адаптації
    Тепла підлога використовується в таких приміщеннях: Перший поверх: Кухня (4)
    Вентиляція гравітаційна
    Фасад Будинок під лічі вер.2
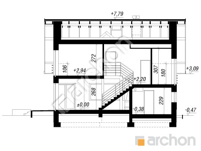
    Розріз
    Проєкт будинку ARCHON+ Будинок під лічі вер.2 Розріз будинку
    Контур будівлі
    Проєкт будинку ARCHON+ Будинок під лічі вер.2 Ситуація

    Ефектний будинок з сучасною лінією, з мансардою та гаражем. Відкрита денна зона на першому поверсі - це вітальня з їдальнею і кухнею - завдяки сходам, видимих з вітальні і великому склінню, є особливо привабливою зоною. У задній частині вітальні була відокремлена міні-кухня. Господарська частина будинку - це гараж, доступний з передпокою, з'єднаний з котельнею. На мансарді є три функціональні кімнати, дві шафи і простора ванна кімната з душем і кутовою ванною. Композиція з вікон в денній зоні, що виходить в сад, порадує найвимогливіших інвесторів. Це зручний, економний будинок з функціональним внутрішнім простором.

    Подібні проєкти:

    Підпишіться на розсилку АРХОН Україна

    Підписатися на розсилку!
    Чат з консультантом