Розсилка
    Відповідні проєкти: 0
    Будинок в лобеліях 3 вер.2
    43 030 UAH

    Проєкт будинку ARCHON+ Будинок в лобеліях 3 вер.2 Вид 1

    - 4500 UAH
    Проєкт будинку ARCHON+ Будинок в лобеліях 3 вер.2 Вид 1 1/10
    Ціна проєкту:
    38 530 UAH 43 030 UAH
    Проєкт доступний на замовлення
    ДО КІНЦЯ АКЦІЇ ЗАЛИШИЛОСЯ ЩЕ

    Що входить до складу проєкту?


    односімейний котедж одноповерховий з житловою мансардою
    гараж, 5 кімнат, 1 кухня, 2 ванни, комора, 1 котельня, пральня, гардеробна


    Корисна
    площа
    144.42 м2
    Загальна
    площа
    265.44 м2
    кімнат
    5
    кухня
    1
    туалет
    0
    ванни
    2
    гараж
    1

    Увага! Тільки оригінальний проєкт, куплений в компанії «Архон Україна» і у офіційних дилерів, дає Вам гарантію якості і чітке керівництво над будівництвом будинку. Також Ви отримуєте можливість безкоштовно консультуватися у наших фахівців на будь-якому етапі будівництва. Переконайтеся в оригінальності проєкту!

    План першого поверху
    Допасуйте до своєї ділянки
    Перший поверх 94.63 (97.03)
    1. Тамбур 3.54
    2. Гараж 20.09
    3. Котельня 4.65
    4. Хол 8.83 (11.23)
    5. Ванна кімната 3.20
    6. Кімната 10.57
    7. Вітальня + їдальня 31.96
    8. Кухня 9.23
    9. Комора 2.56
    План мансарди
    Мансарда 74.53 (104.38)
    1. Сходи 4.34 (4.34)
    2. Хол 6.75 (6.75)
    3. Кімната 13.60 (14.18)
    4. Гардероб 2.78 (5.74)
    5. Кімната 12.82 (15.83)
    6. Ванна кімната 6.59 (10.47)
    7. Пральня 8.51 (20.38)
    8. Кімната 13.80 (17.45)
    9. Гардероб 5.34 (9.24)
    Поверхні
    Корисна площа 144.42 м2
    Поверхня котельні 4.65 м2
    Площа гаража 20.09 м2
    Площа будівництва 134.9 м2
    Площа підлоги 201.41 м2
    Загальна площа 265.44 м2
    Кубатура 838.33 м3
    Висота будинку 8.37 м
    Технологія і конструкція
    Стіни силікатна цегла 24 см, пінопласт 20 см, штукатурка.
    Конструкція зовнішніх і внутрішніх стін може бути виконана з будь-якого матеріалу (керамічних або газобетонних блоків), з технічними параметрами не нижчими за ті, що зазначені в проєктних рішеннях. Зміна матеріалів має бути узгоджена з адаптаційним архітектором.
    Перекриття Монолітне залізобетонне (відливається за місцем)
    Колінна стінка 113 см
    Дах 4-скатний, Схил 40° , Кроквяна система дерев'яна, покрівля з керамічної черепиці
    Котел газовий, можливість заміни котлом на твердому паливі після адаптації
    Тепла підлога використовується в таких приміщеннях: Перший поверх: Тамбур (1), Ванна кімната (5), Кухня (8); Мансарда: Ванна кімната (6)
    Вентиляція гравітаційна
    Фасад Будинок в лобеліях 3 вер.2
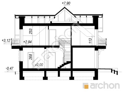
    Розріз
    Проєкт будинку ARCHON+ Будинок в лобеліях 3 вер.2 Розріз будинку
    Контур будівлі
    Проєкт будинку ARCHON+ Будинок в лобеліях 3 вер.2 Ситуація
    Реалізації проєкту Будинок в лобеліях 3 вер.2
    Подібні проєкти:

    Підпишіться на розсилку АРХОН Україна

    Підписатися на розсилку!
    Чат з консультантом