Розсилка
    Відповідні проєкти: 0
    Будинок в древнику (Г2) вер. 2
    48 860 UAH

    Проєкт будинку ARCHON+ Будинок в древнику (Г2) вер. 2 Вид 1

    - 4500 UAH
    Проєкт будинку ARCHON+ Будинок в древнику (Г2) вер. 2 Вид 1 1/12
    Ціна проєкту:
    44 360 UAH 48 860 UAH
    Проєкт доступний на замовлення
    ДО КІНЦЯ АКЦІЇ ЗАЛИШИЛОСЯ ЩЕ

    Що входить до складу проєкту?


    односімейний котедж одноповерховий з житловою мансардою
    гараж, 5 кімнат, 1 кухня, 2 ванни, комора, 1 котельня, гардеробна, господарське приміщення


    Корисна
    площа
    163.68 м2
    Загальна
    площа
    317.56 м2
    кімнат
    5
    кухня
    1
    туалет
    0
    ванни
    2
    гараж
    2

    Увага! Тільки оригінальний проєкт, куплений в компанії «Архон Україна» і у офіційних дилерів, дає Вам гарантію якості і чітке керівництво над будівництвом будинку. Також Ви отримуєте можливість безкоштовно консультуватися у наших фахівців на будь-якому етапі будівництва. Переконайтеся в оригінальності проєкту!

    План першого поверху
    Допасуйте до своєї ділянки
    Перший поверх 120.19 (122.72)
    1. Тамбур 6.38
    2. Хол 3.85
    3. Комора 1.47
    4. Кухня 11.53
    5. Вітальня 29.40
    6. Кабінет 12.07 (13.88)
    7. Ванна кімната 3.86 (4.58)
    8. Гараж 42.05
    9. Котельня 9.58
    План мансарди
    Мансарда 95.12 (118.03)
    1. Сходи 4.18 (4.18)
    2. Хол 10.16 (10.16)
    3. Ванна кімната 11.03 (11.59)
    4. Кімната 20.93 (25.43)
    5. Гардероб 2.85 (6.05)
    6. Кімната 14.90 (15.82)
    7. Гардероб 5.90 (10.12)
    8. Гардероб 1.93 (4.84)
    9. Кімната 13.60 (17.87)
    10. Господарське приміщення 9.64 (11.97)
    Поверхні
    Корисна площа 163.68 м2
    Поверхня котельні 9.58 м2
    Площа гаража 42.05 м2
    Площа будівництва 163.69 м2
    Площа підлоги 240.75 м2
    Загальна площа 317.56 м2
    Кубатура 1055.95 м3
    Висота будинку 8.84 м
    Технологія і конструкція
    Стіни пустотілий керамічний блок 25 см, пінопласт 20 см, штукатурка.
    Конструкція зовнішніх і внутрішніх стін може бути виконана з будь-якого матеріалу (керамічних або газобетонних блоків), з технічними параметрами не нижчими за ті, що зазначені в проєктних рішеннях. Зміна матеріалів має бути узгоджена з адаптаційним архітектором.
    Перекриття Монолітне залізобетонне (відливається за місцем)
    Колінна стінка 106 см
    Дах 4-скатний, Схил 42° , Кроквяна система дерев'яна, покрівля з керамічної черепиці
    Котел на твердому паливі + як варіант, газовий
    Тепла підлога використовується в таких приміщеннях: Перший поверх: Тамбур (1), Хол (2), Кухня (4), Вітальня (5), Кабінет (6), Ванна кімната (7); Мансарда: Ванна кімната (3)
    Вентиляція гравітаційна
    Фасад Будинок в древнику (Г2) вер. 2
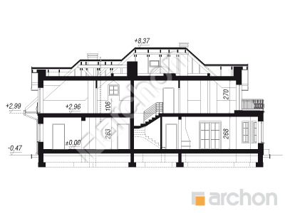
    Розріз
    Проєкт будинку ARCHON+ Будинок в древнику (Г2) вер. 2 Розріз будинку
    Контур будівлі
    Проєкт будинку ARCHON+ Будинок в древнику (Г2) вер. 2 Ситуація
    Реалізації проєкту Будинок в древнику (Г2) вер. 2
    Подібні проєкти:

    Підпишіться на розсилку АРХОН Україна

    Підписатися на розсилку!
    Чат з консультантом