Розсилка
    Відповідні проєкти: 0
    Будинок в буддлеях вер.3
    43 030 UAH

    Проєкт будинку ARCHON+ Будинок в буддлеях вер.3 Вид 1

    - 3500 UAH
    Проєкт будинку ARCHON+ Будинок в буддлеях вер.3 Вид 1 1/18
    Ціна проєкту:
    39 530 UAH 43 030 UAH
    Проєкт доступний на замовлення
    ДО КІНЦЯ АКЦІЇ ЗАЛИШИЛОСЯ ЩЕ

    Що входить до складу проєкту?


    односімейний котедж одноповерховий з житловою мансардою
    гараж, 5 кімнат, 1 кухня, 2 ванни, 1 котельня, гардеробна, господарське приміщення


    Корисна
    площа
    129.6 м2
    Загальна
    площа
    225.07 м2
    кімнат
    5
    кухня
    1
    туалет
    0
    ванни
    2
    гараж
    1

    Увага! Тільки оригінальний проєкт, куплений в компанії «Архон Україна» і у офіційних дилерів, дає Вам гарантію якості і чітке керівництво над будівництвом будинку. Також Ви отримуєте можливість безкоштовно консультуватися у наших фахівців на будь-якому етапі будівництва. Переконайтеся в оригінальності проєкту!

    План першого поверху
    Допасуйте до своєї ділянки
    Перший поверх 88.39 (89.84)
    1. Тамбур 2.82
    2. Хол 2.33
    3. Кухня 8.87
    4. Вітальня + їдальня 33.32
    5. Сходи 5.26
    6. Господарське приміщення 2.83 (4.28)
    7. Ванна кімната 6.54
    8. Котельня 8.51
    9. Гараж 17.91
    План мансарди
    Мансарда 67.63 (81.73)
    1. Хол 4.53 (4.53)
    2. Гардероб 3.75 (5.27)
    3. Кімната 14.74 (16.00)
    4. Кімната 10.52 (11.25)
    5. Кімната 9.38 (10.43)
    6. Ванна кімната 6.03 (7.51)
    7. Гардероб 5.79 (9.82)
    8. Кімната 12.89 (16.92)
    Поверхні
    Корисна площа 129.6 м2
    Поверхня котельні 8.51 м2
    Площа гаража 17.91 м2
    Площа будівництва 113.05 м2
    Площа підлоги 171.57 м2
    Загальна площа 225.07 м2
    Кубатура 724.06 м3
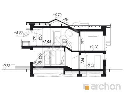
    Висота будинку 7.32 м
    Технологія і конструкція
    Стіни силікатна цегла 24 см, пінопласт 20 см, штукатурка.
    Конструкція зовнішніх і внутрішніх стін може бути виконана з будь-якого матеріалу (керамічних або газобетонних блоків), з технічними параметрами не нижчими за ті, що зазначені в проєктних рішеннях. Зміна матеріалів має бути узгоджена з адаптаційним архітектором.
    Перекриття Монолітне залізобетонне (відливається за місцем)
    Колінна стінка 178 см
    Дах 2-скатний, Схил 25° , Кроквяна система дерев'яна, покрівля з жерсті
    Котел на твердому паливі + як варіант, газовий
    Тепла підлога використовується в таких приміщеннях: Перший поверх: Тамбур (1), Хол (2), Кухня (3), Вітальня + їдальня (4), Ванна кімната (7); Мансарда: Ванна кімната (6)
    Вентиляція гравітаційна
    Фасад Будинок в буддлеях вер.3
    Розріз
    Проєкт будинку ARCHON+ Будинок в буддлеях вер.3 Розріз будинку
    Контур будівлі
    Проєкт будинку ARCHON+ Будинок в буддлеях вер.3 Ситуація

    Проєкт будинку з унікальним малюнком фасаду, що характеризується сучасним поєднанням облицювань. На першому поверсі немає окремих кімнат, завдяки такому плануванню вітальня, кухня та їдальня є відкритим простором, який здивує кожного відвідувача. Господарська частина була виконана у вигляді гаража, великої котельні для твердого палива та ванної кімнати з окремою частиною для пральні. Проєкт будинку в мансарді має чотири кімнати, дві з яких мають власні вбиральні та загальний санвузол. Проєкти будинків із цього сімейства характеризуються високою колінною стіною, що дозволяє ефективно використовувати мансардний простір. Проєкт Будинок у буддлеях вер.3 цінується інвесторами завдяки економічності реалізації та експлуатації.

    Реалізації проєкту Будинок в буддлеях вер.3
    Подібні проєкти:

    Підпишіться на розсилку АРХОН Україна

    Підписатися на розсилку!
    Чат з консультантом