Розсилка
    Відповідні проєкти: 0
    Будинок в рубінах 2 (Б)
    36 890 UAH

    Проєкт будинку ARCHON+ Будинок в рубінах 2 (Б) Вид 1

    - 4500 UAH
    Проєкт будинку ARCHON+ Будинок в рубінах 2 (Б) Вид 1 1/25
    Ціна проєкту:
    32 390 UAH 36 890 UAH
    Проєкт доступний на замовлення
    ДО КІНЦЯ АКЦІЇ ЗАЛИШИЛОСЯ ЩЕ

    Що входить до складу проєкту?


    котедж для зблокованої забудови одноповерховий з житловою мансардою
    5 кімнат, 1 кухня, 2 ванни, гардеробна


    Корисна
    площа
    92.54 м2
    Загальна
    площа
    137.82 м2
    кімнат
    5
    кухня
    1
    туалет
    0
    ванни
    2

    Увага! Тільки оригінальний проєкт, куплений в компанії «Архон Україна» і у офіційних дилерів, дає Вам гарантію якості і чітке керівництво над будівництвом будинку. Також Ви отримуєте можливість безкоштовно консультуватися у наших фахівців на будь-якому етапі будівництва. Переконайтеся в оригінальності проєкту!

    План першого поверху
    Допасуйте до своєї ділянки
    Перший поверх 49.13 (51.27)
    1. Тамбур 3.30
    2. Кухня 6.53
    3. Вітальня 23.06
    4. Кімната 8.33
    5. Передпокій 2.40 (2.52)
    6. Сховище 0.71 (2.73)
    7. Ванна кімната 4.80
    План мансарди
    Мансарда 43.41 (50.02)
    1. Сходи 3.96
    2. Передпокій 4.04
    3. Кімната 10.36 (11.32)
    4. Гардероб 1.29 (2.30)
    5. Ванна кімната 5.88 (7.19)
    6. Кімната 8.23 (9.72)
    7. Кімната 9.65 (11.49)
    Поверхні
    Корисна площа 92.54 м2
    Площа будівництва 68.91 м2
    Площа підлоги 101.29 м2
    Загальна площа 137.82 м2
    Кубатура 459.66 м3
    Висота будинку 8.15 м
    Технологія і конструкція
    Стіни пустотілий керамічний блок 25 см, пінопласт 20 см, штукатурка.
    Конструкція зовнішніх і внутрішніх стін може бути виконана з будь-якого матеріалу (керамічних або газобетонних блоків), з технічними параметрами не нижчими за ті, що зазначені в проєктних рішеннях. Зміна матеріалів має бути узгоджена з адаптаційним архітектором.
    Перекриття Монолітне залізобетонне (відливається за місцем)
    Колінна стінка 121 см
    Дах 2-скатний, Схил 42° , Кроквяна система дерев'яна, покрівля з керамічної черепиці
    Котел газовий
    Тепла підлога використовується в таких приміщеннях: Перший поверх: Тамбур (1), Кухня (2), Ванна кімната (7); Мансарда: Ванна кімната (5)
    Вентиляція гравітаційна
    Фасад Будинок в рубінах 2 (Б)
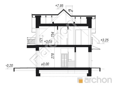
    Розріз
    Проєкт будинку ARCHON+ Будинок в рубінах 2 (Б) Розріз будинку
    Контур будівлі
    Проєкт будинку ARCHON+ Будинок в рубінах 2 (Б) Ситуація

    Простий та економічний будинок для зблокованої забудови з гармонійним та сучасним оздобленням фасаду. Перший поверх майже повністю відведено під відкриту житлову зону. Світла вітальня має вихід на терасу та місце для домашнього кінотеатру та каміна, великий стіл поєднує її з кухнею. Додаткова кімната може служити як кабінет. Зручні сходи ведуть у мансарду, де знаходяться три світлі та просторі спальні та ванна кімната. Поряд із спальнею батьків був спроєктований гардероб. Перевагою цього проєкту є раціональне використання простору при розміщенні кімнат, так що в цьому невеликому будинку розмістилися вітальня, чотири кімнати, кухня, дві ванні кімнати та вбиральня.

    Реалізації проєкту Будинок в рубінах 2 (Б)
    Подібні проєкти:

    Підпишіться на розсилку АРХОН Україна

    Підписатися на розсилку!
    Чат з консультантом