Розсилка
    Відповідні проєкти: 0
    Будинок в аурорах 2
    43 030 UAH

    Проєкт будинку ARCHON+ Будинок в аурорах 2 Вид 1

    - 4000 UAH
    Проєкт будинку ARCHON+ Будинок в аурорах 2 Вид 1 1/39
    Ціна проєкту:
    39 030 UAH 43 030 UAH
    Проєкт доступний відразу
    ДО КІНЦЯ АКЦІЇ ЗАЛИШИЛОСЯ ЩЕ

    Що входить до складу проєкту?


    односімейний котедж одноповерховий з житловою мансардою
    5 кімнат, 1 кухня, 2 ванни, комора, 1 котельня, пральня, гардеробна, господарське приміщення


    Корисна
    площа
    144.8 м2
    Загальна
    площа
    230.24 м2
    кімнат
    5
    кухня
    1
    туалет
    0
    ванни
    2

    Увага! Тільки оригінальний проєкт, куплений в компанії «Архон Україна» і у офіційних дилерів, дає Вам гарантію якості і чітке керівництво над будівництвом будинку. Також Ви отримуєте можливість безкоштовно консультуватися у наших фахівців на будь-якому етапі будівництва. Переконайтеся в оригінальності проєкту!

    План першого поверху
    Допасуйте до своєї ділянки
    Перший поверх 83.59 (85.90)
    1. Тамбур 5.53
    2. Хол 10.43 (12.74)
    3. Комора 2.39
    4. Кухня 11.21
    5. Вітальня + їдальня 31.42
    6. Кімната 10.39
    7. Ванна кімната 3.38
    8. Господарське приміщення 1.95
    9. Котельня 6.89
    План мансарди
    Мансарда 68.10 (86.73)
    1. Хол і сходи 11.94 (11.94)
    2. Кімната 11.85 (13.45)
    3. Кімната 12.37 (14.49)
    4. Гардероб 5.49 (6.58)
    5. Кімната 10.72 (15.94)
    6. Ванна кімната 8.34 (9.88)
    7. Пральня 3.88 (7.51)
    8. Гардероб 3.51 (6.94)
    Поверхні
    Корисна площа 144.8 м2
    Поверхня котельні 6.89 м2
    Площа будівництва 115.12 м2
    Площа підлоги 172.63 м2
    Загальна площа 230.24 м2
    Кубатура 765.08 м3
    Висота будинку 8.61 м
    Технологія і конструкція
    Стіни пустотілий керамічний блок 25 см, пінопласт 20 см, штукатурка.
    Конструкція зовнішніх і внутрішніх стін може бути виконана з будь-якого матеріалу (керамічних або газобетонних блоків), з технічними параметрами не нижчими за ті, що зазначені в проєктних рішеннях. Зміна матеріалів має бути узгоджена з адаптаційним архітектором.
    Перекриття Монолітне залізобетонне (відливається за місцем)
    Колінна стінка 140 см
    Дах 2-скатний, Схил 40° , Кроквяна система дерев'яна, покрівля з керамічної черепиці
    Котел на твердому паливі + як варіант, газовий
    Тепла підлога використовується в таких приміщеннях: Перший поверх: Тамбур (1), Кухня (4), Вітальня + їдальня (5), Ванна кімната (7); Мансарда: Ванна кімната (6)
    Вентиляція гравітаційна
    Фасад Будинок в аурорах 2
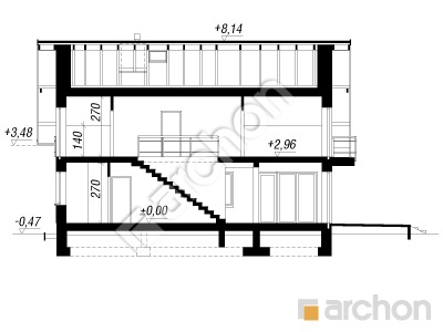
    Розріз
    Проєкт будинку ARCHON+ Будинок в аурорах 2 Розріз будинку
    Контур будівлі
    Проєкт будинку ARCHON+ Будинок в аурорах 2 Ситуація

    Сучасний дизайн будинку, що поєднує економічність рішень з привабливими архітектурними деталями. Крита тераса забезпечує відпочинок на відкритому повітрі у будь-яку погоду, а великі скління природним чином пов'язують будинок з садом. Увага звертається на ефективно організовану вхідну зону. Тамбур, в якому успішно розміщуються настінні шафи і місце для сидіння, через засклені розсувні двері, перетворюється в просторий хол, де домінують дуже вражаючі сходи. Ця зона плавно перетікає в репрезентативну денну частину. Простора вітальня забезпечує відпочинок перед каміном і домашнім кінотеатром, а їдальня, оформлена в скляному кутку, забезпечує природне освітлення під час їжі і чудовий вид на сад. Відкрита кухня освітлена кутовим вікном, і її перевагою є зручна комора і кухонний півострів, що поєднує її з їдальнею. Вихід на терасу створює можливість облаштувати затишний кавовий куточок. Додаткова кімната ідеально підходить як кабінет або кімната для гостей. Котельня з окремим виходом доступна з підсобного приміщення. Нічна зона розташована на мансарді і включає в себе три світлі спальні, зручну ванну кімнату і пральню з сушкою. Програму доповнюють дві шафи - одина призначена для хозяйскої спальні, а інша об'єднує дитячі кімнати. Будинок в аврорі 2 відноситься до колекції: проєкти дешевих в будівництві будинків і проєкти невеликих будинків.

    Реалізації проєкту Будинок в аурорах 2
    Подібні проєкти:

    Підпишіться на розсилку АРХОН Україна

    Підписатися на розсилку!
    Чат з консультантом